(1) (1)
  • Villanueva

Venta

Local

Precio

Buscar solo avisos en moneda:

Dorm|Amb

Más filtros Más filtros

Características

Superficie total

Nombre de calle y altura

Expensas

$

Tipo de urbanización

Plantas

Servicios

Tipos de ambientes

Estado de obra

Tipo de anunciante

Comparte comisión

39 Locales en Venta en Villanueva

1/17

0

USD 178.724

Local en Venta - Doral C.C - Primer Piso

Local en Venta en Villanueva, Countries y Barrios Cerrados en Tigre

Coldwell Banker Puerto Norte Group
  • 60 m² Total
  • 1 planta
  • A Estrenar

Local en Venta - Doral C.C - Primer Piso

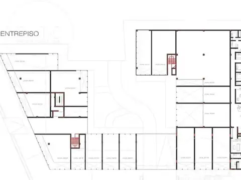
Local en venta ubicado en el primer piso de doral c.C 62m2 cubiertos para crear tu emprendimiento en un nuevo centro comercial - frente a avenida italia doral c.C se trata de un nuevo centro comercial en el corazón de villanueva., Distribuido en 10 pisos rodeado de barrios, colegios y locales comerciales, a pocos minutos del centro comercial nordelta ubicado sobre la avenida italia, nace doral c.C, un edificio con variedad de locales, residenciales con cocheras subterráneas y de cortesía contara en el ultimo piso con un bar para poder compartir de un espacio de break o para compartir un momento con amigos y familia 15 cocheras residenciales 4 cocheras cerradas 31 cocheras de cortesía del c.C 27 cocheras de oficinas las medidas, porcentuales, superficies y designaciones fueron proporcionadas por el propietario, las definitivas de cada planta son las que resultan del título de propiedad y del plano municipal. El precio puede estar sujeto a modificaciones. En cumplimiento con la normativa vigente, los asistentes no ejercen el corretaje inmobiliario. La intermediación y conclusión de las operaciones inmobiliarias es desarrollada por martilleros y corredores públicos. Esta oficina inmobiliaria se encuentra a cargo de maría virginia mattio csi 6752 y f. Lusarreta cucicba 9385, adheridas al sistema coldwell banker puerto norte group, domicilio pasaje de las ciencias 75, piso 8, nordelta provincia de buenos aires. 2025 coldwell banker real estate llc. Todos los derechos reservados. Cada oficina es de propiedad y operación independiente. Coldwell banker y el logo de coldwell banker están registrados y son marcas de servicio de propiedad de coldwell banker real estate llc.

Contactar
1/17

0

USD 153.160

Local en Venta - Doral C.C - Primer Piso

Local en Venta en Villanueva, Countries y Barrios Cerrados en Tigre

Coldwell Banker Puerto Norte Group
  • 51 m² Total
  • 1 planta
  • A Estrenar

Local en Venta - Doral C.C - Primer Piso

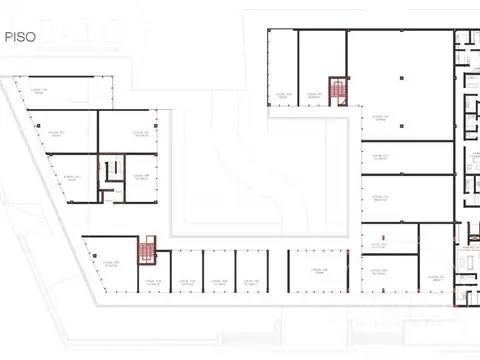
Local en venta ubicado en el primer piso de doral c.C 25,29m2 cubiertos para crear tu emprendimiento en un nuevo centro comercial - vista interna al centro comercial doral c.C se trata de un nuevo centro comercial en el corazón de villanueva., Distribuido en 10 pisos rodeado de barrios, colegios y locales comerciales, a pocos minutos del centro comercial nordelta ubicado sobre la avenida italia, nace doral c.C, un edificio con variedad de locales, residenciales con cocheras subterráneas y de cortesía contara en el ultimo piso con un bar para poder compartir de un espacio de break o para compartir un momento con amigos y familia 15 cocheras residenciales 4 cocheras cerradas 31 cocheras de cortesía del c.C 27 cocheras de oficinas las medidas, porcentuales, superficies y designaciones fueron proporcionadas por el propietario, las definitivas de cada planta son las que resultan del título de propiedad y del plano municipal. El precio puede estar sujeto a modificaciones. En cumplimiento con la normativa vigente, los asistentes no ejercen el corretaje inmobiliario. La intermediación y conclusión de las operaciones inmobiliarias es desarrollada por martilleros y corredores públicos. Esta oficina inmobiliaria se encuentra a cargo de maría virginia mattio csi 6752 y f. Lusarreta cucicba 9385, adheridas al sistema coldwell banker puerto norte group, domicilio pasaje de las ciencias 75, piso 8, nordelta provincia de buenos aires. 2025 coldwell banker real estate llc. Todos los derechos reservados. Cada oficina es de propiedad y operación independiente. Coldwell banker y el logo de coldwell banker están registrados y son marcas de servicio de propiedad de coldwell banker real estate llc.

Contactar
1/17

0

USD 166.740

Local en Venta - Doral C.C - Primer Piso

Local en Venta en Villanueva, Countries y Barrios Cerrados en Tigre

Coldwell Banker Puerto Norte Group
  • 56 m² Total
  • 1 planta
  • A Estrenar

Local en Venta - Doral C.C - Primer Piso

Local en venta ubicado en el primer piso de doral c.C 47m2 cubiertos para crear tu emprendimiento en un nuevo centro comercial - frente a avenida italia doral c.C se trata de un nuevo centro comercial en el corazón de villanueva., Distribuido en 10 pisos rodeado de barrios, colegios y locales comerciales, a pocos minutos del centro comercial nordelta ubicado sobre la avenida italia, nace doral c.C, un edificio con variedad de locales, residenciales con cocheras subterráneas y de cortesía contara en el ultimo piso con un bar para poder compartir de un espacio de break o para compartir un momento con amigos y familia 15 cocheras residenciales 4 cocheras cerradas 31 cocheras de cortesía del c.C 27 cocheras de oficinas las medidas, porcentuales, superficies y designaciones fueron proporcionadas por el propietario, las definitivas de cada planta son las que resultan del título de propiedad y del plano municipal. El precio puede estar sujeto a modificaciones. En cumplimiento con la normativa vigente, los asistentes no ejercen el corretaje inmobiliario. La intermediación y conclusión de las operaciones inmobiliarias es desarrollada por martilleros y corredores públicos. Esta oficina inmobiliaria se encuentra a cargo de maría virginia mattio csi 6752 y f. Lusarreta cucicba 9385, adheridas al sistema coldwell banker puerto norte group, domicilio pasaje de las ciencias 75, piso 8, nordelta provincia de buenos aires. 2025 coldwell banker real estate llc. Todos los derechos reservados. Cada oficina es de propiedad y operación independiente. Coldwell banker y el logo de coldwell banker están registrados y son marcas de servicio de propiedad de coldwell banker real estate llc.

Contactar
1/17

0

USD 153.440

Local en Venta - Doral C.C - Primer Piso

Local en Venta en Villanueva, Countries y Barrios Cerrados en Tigre

Coldwell Banker Puerto Norte Group
  • 53 m² Total
  • 1 planta
  • A Estrenar

Local en Venta - Doral C.C - Primer Piso

Local en venta ubicado en el primer piso de doral c.C 57,90m2 cubiertos para crear tu emprendimiento en un nuevo centro comercial - frente la calle doral y avenida italia doral c.C se trata de un nuevo centro comercial en el corazón de villanueva., Distribuido en 10 pisos rodeado de barrios, colegios y locales comerciales, a pocos minutos del centro comercial nordelta ubicado sobre la avenida italia, nace doral c.C, un edificio con variedad de locales, residenciales con cocheras subterráneas y de cortesía contara en el ultimo piso con un bar para poder compartir de un espacio de break o para compartir un momento con amigos y familia 15 cocheras residenciales 4 cocheras cerradas 31 cocheras de cortesía del c.C 27 cocheras de oficinas las medidas, porcentuales, superficies y designaciones fueron proporcionadas por el propietario, las definitivas de cada planta son las que resultan del título de propiedad y del plano municipal. El precio puede estar sujeto a modificaciones. En cumplimiento con la normativa vigente, los asistentes no ejercen el corretaje inmobiliario. La intermediación y conclusión de las operaciones inmobiliarias es desarrollada por martilleros y corredores públicos. Esta oficina inmobiliaria se encuentra a cargo de maría virginia mattio csi 6752 y f. Lusarreta cucicba 9385, adheridas al sistema coldwell banker puerto norte group, domicilio pasaje de las ciencias 75, piso 8, nordelta provincia de buenos aires. 2025 coldwell banker real estate llc. Todos los derechos reservados. Cada oficina es de propiedad y operación independiente. Coldwell banker y el logo de coldwell banker están registrados y son marcas de servicio de propiedad de coldwell banker real estate llc.

Contactar
1/17

0

USD 202.600

Local en Venta - Doral C.C - Primer Piso

Local en Venta en Villanueva, Countries y Barrios Cerrados en Tigre

Coldwell Banker Puerto Norte Group
  • 81 m² Total
  • 1 planta
  • A Estrenar

Local en Venta - Doral C.C - Primer Piso

Local en venta ubicado en el primer piso de doral c.C 31,55m2 cubiertos para crear tu emprendimiento en un nuevo centro comercial - vista a la calle doral y avenita italia doral c.C se trata de un nuevo centro comercial en el corazón de villanueva., Distribuido en 10 pisos rodeado de barrios, colegios y locales comerciales, a pocos minutos del centro comercial nordelta ubicado sobre la avenida italia, nace doral c.C, un edificio con variedad de locales, residenciales con cocheras subterráneas y de cortesía contara en el ultimo piso con un bar para poder compartir de un espacio de break o para compartir un momento con amigos y familia 15 cocheras residenciales 4 cocheras cerradas 31 cocheras de cortesía del c.C 27 cocheras de oficinas las medidas, porcentuales, superficies y designaciones fueron proporcionadas por el propietario, las definitivas de cada planta son las que resultan del título de propiedad y del plano municipal. El precio puede estar sujeto a modificaciones. En cumplimiento con la normativa vigente, los asistentes no ejercen el corretaje inmobiliario. La intermediación y conclusión de las operaciones inmobiliarias es desarrollada por martilleros y corredores públicos. Esta oficina inmobiliaria se encuentra a cargo de maría virginia mattio csi 6752 y f. Lusarreta cucicba 9385, adheridas al sistema coldwell banker puerto norte group, domicilio pasaje de las ciencias 75, piso 8, nordelta provincia de buenos aires. 2025 coldwell banker real estate llc. Todos los derechos reservados. Cada oficina es de propiedad y operación independiente. Coldwell banker y el logo de coldwell banker están registrados y son marcas de servicio de propiedad de coldwell banker real estate llc.

Contactar
1/30

0

USD 209.580

Avenida italia 3000

Local en Venta en Villanueva, Countries y Barrios Cerrados en Tigre

DaLo Propiedades
  • 74 m² Total
  • 1 cochera

Local en Venta en Villanueva, Tigre, G.B.A. Zona Norte

Del 6 al 9 piso. Unidad 1: departamento-oficina. Sobre av. Italia. Inversores y futuros propietarios! Listos para ser parte de la nueva joya de villanueva? Presentamos doral, el complejo de uso mixto que va a revolucionar la zona. Imaginate vivir, trabajar y disfrutar, todo en un mismo lugar. Doral te ofrece: deptos de 1, 2 y 3 ambientes con terminaciones de primera locales comerciales estratégicamente ubicados oficinas modernas con vistas increíbles gimnasio equipado y pileta para relajarte después de un dia de trabajo terraza compartida para tus asados de domingo bar en la azotea para tus after office y sabés qué es lo mejor?, Podés asegurar tu lugar en este proyecto único con solo el 30% de adelanto y hasta 36 cuotas en dólares. Así es! Invertí hoy y capitalizá la plusvalía desde el pozo. No te quedés afuera de esta oportunidad única en tigre. Ya sea para vivir o como inversión, doral es la jugada maestra que estabas esperando. Querés más info? Contactanos ya! Nuestros asesores están listos para mostrarte cómo doral puede ser tu próximo gran paso. No dejes pasar esta chance! La ciudad del futuro te espera en doral tigre. Te lo vas a perder? Llamá ahora y sé parte de algo grande. Doral tigre: tu inversión inteligente, tu futuro asegurado. Reservá tu unidad hoy mismo! Aviso legal: todas las medidas e información de : expensas, impuestos y servicios y datos sobre la arquitectura de esta propiedad son aproximados y se encuentran sujetos a revisión por el interesado. Pueden no estar actualizados al momento de su visualización, ya que fueron brindados por el propietario a la hora de su publicación. Ley 5115: excepto que en la descripción de la propiedad se indique lo contrario, el edificio puede no contar con rampa para personas con movilidad reducida, y no ser accesible para personas con discapacidades físicas.- Martillero y corredor publico, darío lorenzo, cmpcal 520 / cucicba 8741 la tasación, intermediación y la conclusión de las operaciones sobre esta propiedad son actividades exclusivas de este corredor matriculado, conforme las previsiones de la ley 20.266, la ley caba 2340, la ley provincial 10.973 y sus modif. Y las normas reglamentarias dictadas por los colegios departamentales.

Contactar
1/33

0

USD 632.800

Avenida italia 3000

Local en Venta en Villanueva, Countries y Barrios Cerrados en Tigre

DaLo Propiedades
  • 226 m² Total

Local en Venta en Villanueva, Tigre, G.B.A. Zona Norte

10 piso. Bar. Rooftop presentamos doral, el complejo de uso mixto que va a revolucionar la zona. Imaginate vivir, trabajar y disfrutar, todo en un mismo lugar. Doral te ofrece: deptos de 1, 2 y 3 ambientes con terminaciones de primera locales comerciales estratégicamente ubicados oficinas modernas con vistas increíbles gimnasio equipado y pileta para relajarte después de un dia de trabajo terraza compartida para tus asados de domingo bar en la azotea para tus after office y sabés qué es lo mejor?, Podés asegurar tu lugar en este proyecto único con solo el 30% de adelanto y hasta 36 cuotas en dólares. Así es! Invertí hoy y capitalizá la plusvalía desde el pozo. No te quedés afuera de esta oportunidad única en tigre. Ya sea para vivir o como inversión, doral es la jugada maestra que estabas esperando. Querés más info? Contactanos ya! Nuestros asesores están listos para mostrarte cómo doral puede ser tu próximo gran paso. No dejes pasar esta chance! La ciudad del futuro te espera en doral tigre. Te lo vas a perder? Llamá ahora y sé parte de algo grande. Doral tigre: tu inversión inteligente, tu futuro asegurado. Reservá tu unidad hoy mismo! Aviso legal: todas las medidas e información de : expensas, impuestos y servicios y datos sobre la arquitectura de esta propiedad son aproximados y se encuentran sujetos a revisión por el interesado. Pueden no estar actualizados al momento de su visualización, ya que fueron brindados por el propietario a la hora de su publicación. Ley 5115: excepto que en la descripción de la propiedad se indique lo contrario, el edificio puede no contar con rampa para personas con movilidad reducida, y no ser accesible para personas con discapacidades físicas.- Martillero y corredor publico, darío lorenzo, cmpcal 520 / cucicba 8741 la tasación, intermediación y la conclusión de las operaciones sobre esta propiedad son actividades exclusivas de este corredor matriculado, conforme las previsiones de la ley 20.266, la ley caba 2340, la ley provincial 10.973 y sus modif. Y las normas reglamentarias dictadas por los colegios departamentales.

Contactar
1/29

0

USD 146.625

Avenida italia 3000

Local en Venta en Villanueva, Countries y Barrios Cerrados en Tigre

DaLo Propiedades
  • 58 m² Total

Local en Venta en Villanueva, Tigre, G.B.A. Zona Norte

Del 6 al 9 piso. Unidad 3 departamento/oficina. Interno. Presentamos doral, el complejo de uso mixto que va a revolucionar la zona. Imaginate vivir, trabajar y disfrutar, todo en un mismo lugar. Doral te ofrece: deptos de 1, 2 y 3 ambientes con terminaciones de primera locales comerciales estratégicamente ubicados oficinas modernas con vistas increíbles gimnasio equipado y pileta para relajarte después de un dia de trabajo terraza compartida para tus asados de domingo bar en la azotea para tus after office y sabés qué es lo mejor?, Podés asegurar tu lugar en este proyecto único con solo el 30% de adelanto y hasta 36 cuotas en dólares. Así es! Invertí hoy y capitalizá la plusvalía desde el pozo. No te quedés afuera de esta oportunidad única en tigre. Ya sea para vivir o como inversión, doral es la jugada maestra que estabas esperando. Querés más info? Contactanos ya! Nuestros asesores están listos para mostrarte cómo doral puede ser tu próximo gran paso. No dejes pasar esta chance! La ciudad del futuro te espera en doral tigre. Te lo vas a perder? Llamá ahora y sé parte de algo grande. Doral tigre: tu inversión inteligente, tu futuro asegurado. Reservá tu unidad hoy mismo! Aviso legal: todas las medidas e información de : expensas, impuestos y servicios y datos sobre la arquitectura de esta propiedad son aproximados y se encuentran sujetos a revisión por el interesado. Pueden no estar actualizados al momento de su visualización, ya que fueron brindados por el propietario a la hora de su publicación. Ley 5115: excepto que en la descripción de la propiedad se indique lo contrario, el edificio puede no contar con rampa para personas con movilidad reducida, y no ser accesible para personas con discapacidades físicas.- Martillero y corredor publico, darío lorenzo, cmpcal 520 / cucicba 8741 la tasación, intermediación y la conclusión de las operaciones sobre esta propiedad son actividades exclusivas de este corredor matriculado, conforme las previsiones de la ley 20.266, la ley caba 2340, la ley provincial 10.973 y sus modif. Y las normas reglamentarias dictadas por los colegios departamentales.

Contactar
1/30

0

USD 147.500

Avenida italia 3000

Local en Venta en Villanueva, Countries y Barrios Cerrados en Tigre

DaLo Propiedades
  • 59 m² Total

Local en Venta en Villanueva, Tigre, G.B.A. Zona Norte

Segundo c. Departamento oficina. Residencial- inversores y futuros propietarios! Listos para ser parte de la nueva joya de villanueva? Presentamos doral, el complejo de uso mixto que va a revolucionar la zona. Imaginate vivir, trabajar y disfrutar, todo en un mismo lugar. Doral te ofrece: deptos de 1, 2 y 3 ambientes con terminaciones de primera locales comerciales estratégicamente ubicados oficinas modernas con vistas increíbles gimnasio equipado y pileta para relajarte después de un dia de trabajo terraza compartida para tus asados de domingo bar en la azotea para tus after office y sabés qué es lo mejor?, Podés asegurar tu lugar en este proyecto único con solo el 30% de adelanto y hasta 36 cuotas en dólares. Así es! Invertí hoy y capitalizá la plusvalía desde el pozo. No te quedés afuera de esta oportunidad única en tigre. Ya sea para vivir o como inversión, doral es la jugada maestra que estabas esperando. Querés más info? Contactanos ya! Nuestros asesores están listos para mostrarte cómo doral puede ser tu próximo gran paso. No dejes pasar esta chance! La ciudad del futuro te espera en doral tigre. Te lo vas a perder? Llamá ahora y sé parte de algo grande. Doral tigre: tu inversión inteligente, tu futuro asegurado. Reservá tu unidad hoy mismo! Aviso legal: todas las medidas e información de : expensas, impuestos y servicios y datos sobre la arquitectura de esta propiedad son aproximados y se encuentran sujetos a revisión por el interesado. Pueden no estar actualizados al momento de su visualización, ya que fueron brindados por el propietario a la hora de su publicación. Ley 5115: excepto que en la descripción de la propiedad se indique lo contrario, el edificio puede no contar con rampa para personas con movilidad reducida, y no ser accesible para personas con discapacidades físicas.- Martillero y corredor publico, darío lorenzo, cmpcal 520 / cucicba 8741 la tasación, intermediación y la conclusión de las operaciones sobre esta propiedad son actividades exclusivas de este corredor matriculado, conforme las previsiones de la ley 20.266, la ley caba 2340, la ley provincial 10.973 y sus modif. Y las normas reglamentarias dictadas por los colegios departamentales.

Contactar
1/30

0

USD 136.625

Avenida italia 3000

Local en Venta en Villanueva, Countries y Barrios Cerrados en Tigre

DaLo Propiedades
  • 54 m² Total

Local en Venta en Villanueva, Tigre, G.B.A. Zona Norte

Unidad 4. Departamento/oficina. Interno. Inversores y futuros propietarios! Listos para ser parte de la nueva joya de villanueva? Presentamos doral, el complejo de uso mixto que va a revolucionar la zona. Imaginate vivir, trabajar y disfrutar, todo en un mismo lugar. Doral te ofrece: deptos de 1, 2 y 3 ambientes con terminaciones de primera locales comerciales estratégicamente ubicados oficinas modernas con vistas increíbles gimnasio equipado y pileta para relajarte después de un dia de trabajo terraza compartida para tus asados de domingo bar en la azotea para tus after office y sabés qué es lo mejor?, Podés asegurar tu lugar en este proyecto único con solo el 30% de adelanto y hasta 36 cuotas en dólares. Así es! Invertí hoy y capitalizá la plusvalía desde el pozo. No te quedés afuera de esta oportunidad única en tigre. Ya sea para vivir o como inversión, doral es la jugada maestra que estabas esperando. Querés más info? Contactanos ya! Nuestros asesores están listos para mostrarte cómo doral puede ser tu próximo gran paso. No dejes pasar esta chance! La ciudad del futuro te espera en doral tigre. Te lo vas a perder? Llamá ahora y sé parte de algo grande. Doral tigre: tu inversión inteligente, tu futuro asegurado. Reservá tu unidad hoy mismo! Aviso legal: todas las medidas e información de : expensas, impuestos y servicios y datos sobre la arquitectura de esta propiedad son aproximados y se encuentran sujetos a revisión por el interesado. Pueden no estar actualizados al momento de su visualización, ya que fueron brindados por el propietario a la hora de su publicación. Ley 5115: excepto que en la descripción de la propiedad se indique lo contrario, el edificio puede no contar con rampa para personas con movilidad reducida, y no ser accesible para personas con discapacidades físicas.- Martillero y corredor publico, darío lorenzo, cmpcal 520 / cucicba 8741 la tasación, intermediación y la conclusión de las operaciones sobre esta propiedad son actividades exclusivas de este corredor matriculado, conforme las previsiones de la ley 20.266, la ley caba 2340, la ley provincial 10.973 y sus modif. Y las normas reglamentarias dictadas por los colegios departamentales.

Contactar
1/30

0

USD 103.600

Avenida italia 3000

Local en Venta en Villanueva, Countries y Barrios Cerrados en Tigre

DaLo Propiedades
  • 37 m² Total

Local en Venta en Doral Tigre, Benavidez, Tigre

Del 3 al 5 piso unidad 2. Departamento/oficina- sobre av. Italia- inversores y futuros propietarios! Listos para ser parte de la nueva joya de villanueva? Presentamos doral, el complejo de uso mixto que va a revolucionar la zona. Imaginate vivir, trabajar y disfrutar, todo en un mismo lugar. Doral te ofrece: deptos de 1, 2 y 3 ambientes con terminaciones de primera locales comerciales estratégicamente ubicados oficinas modernas con vistas increíbles gimnasio equipado y pileta para relajarte después de un dia de trabajo terraza compartida para tus asados de domingo bar en la azotea para tus after office y sabés qué es lo mejor?, Podés asegurar tu lugar en este proyecto único con solo el 30% de adelanto y hasta 36 cuotas en dólares. Así es! Invertí hoy y capitalizá la plusvalía desde el pozo. No te quedés afuera de esta oportunidad única en tigre. Ya sea para vivir o como inversión, doral es la jugada maestra que estabas esperando. Querés más info? Contactanos ya! Nuestros asesores están listos para mostrarte cómo doral puede ser tu próximo gran paso. No dejes pasar esta chance! La ciudad del futuro te espera en doral tigre. Te lo vas a perder? Llamá ahora y sé parte de algo grande. Doral tigre: tu inversión inteligente, tu futuro asegurado. Reservá tu unidad hoy mismo! Aviso legal: todas las medidas e información de : expensas, impuestos y servicios y datos sobre la arquitectura de esta propiedad son aproximados y se encuentran sujetos a revisión por el interesado. Pueden no estar actualizados al momento de su visualización, ya que fueron brindados por el propietario a la hora de su publicación. Ley 5115: excepto que en la descripción de la propiedad se indique lo contrario, el edificio puede no contar con rampa para personas con movilidad reducida, y no ser accesible para personas con discapacidades físicas.- Martillero y corredor publico, darío lorenzo, cmpcal 520 / cucicba 8741 la tasación, intermediación y la conclusión de las operaciones sobre esta propiedad son actividades exclusivas de este corredor matriculado, conforme las previsiones de la ley 20.266, la ley caba 2340, la ley provincial 10.973 y sus modif. Y las normas reglamentarias dictadas por los colegios departamentales.

Contactar
1/32

2

USD 162.960

Avenida italia 3000

Local en Venta en Villanueva, Countries y Barrios Cerrados en Tigre

DaLo Propiedades
  • 58 m² Total
  • A Estrenar
  • 1 cochera

Local en Venta en Villanueva, Tigre, G.B.A. Zona Norte

Unidad 3. Departamento/oficina-sobre av, italia. Atención emprendedores y empresarios! Buscás el lugar perfecto para que tu negocio explote? Doral tigre tiene la propuesta que estabas esperando. Imaginate un local comercial estratégicamente ubicado en el corazón de la zona norte, con acceso directo a barrios de ensueños como villanueva, nordelta y san isidro labrador. Nuestros locales comerciales ofrecen: superficies desde 71m2 hasta 667m2 frentes sobre av. Italia y calle doral visibilidad inmejorable flexibilidad para adaptar a tu rubro flujo constante de clientes potenciales ya sea que tengás un resto, un gimnasio o una tienda, acá vas a brillar. Estás a un paso de colegios, supermercados y zonas residenciales de alto poder adquisitivo. Tu negocio va a ser la estrella del barrio! Y sabés qué es lo mejor? Podés asegurar tu local con solo el 30% de adelanto y hasta 36 cuotas en dólares. Invertí hoy y capitalizá la plusvalía desde el pozo! .Esta oportunidad es única y los locales se están yendo como pan caliente. Llamá ya y coordiná una visita al showroom. Nuestros asesores están listos para mostrarte cómo tu negocio puede crecer en doral tigre. Hacé la diferencia! Invertí en tu futuro. Doral tigre: donde los negocios florecen y las oportunidades abundan. Reservá tu local ahora mismo! Aviso legal: todas las medidas e información de : expensas, impuestos y servicios y datos sobre la arquitectura de esta propiedad son aproximados y se encuentran sujetos a revisión por el interesado. Pueden no estar actualizados al momento de su visualización, ya que fueron brindados por el propietario a la hora de su publicación. Ley 5115: excepto que en la descripción de la propiedad se indique lo contrario, el edificio puede no contar con rampa para personas con movilidad reducida, y no ser accesible para personas con discapacidades físicas.- Martillero y corredor publico, darío lorenzo, cmpcal 520 / cucicba 8741 la tasación, intermediación y la conclusión de las operaciones sobre esta propiedad son actividades exclusivas de este corredor matriculado, conforme las previsiones de la ley 20.266, la ley caba 2340, la ley provincial 10.973 y sus modif. Y las normas reglamentarias dictadas por los colegios departamentales.

Contactar
1/30

0

USD 164.625

Avenida italia 3000

Local en Venta en Villanueva, Countries y Barrios Cerrados en Tigre

DaLo Propiedades
  • 65 m² Total

Local en Venta en Villanueva, Tigre, G.B.A. Zona Norte

Local 119 pp interno. Inversores y futuros propietarios! Listos para ser parte de la nueva joya de villanueva? Presentamos doral, el complejo de uso mixto que va a revolucionar la zona. Imaginate vivir, trabajar y disfrutar, todo en un mismo lugar. Doral te ofrece: deptos de 1, 2 y 3 ambientes con terminaciones de primera locales comerciales estratégicamente ubicados oficinas modernas con vistas increíbles gimnasio equipado y pileta para relajarte después de un dia de trabajo terraza compartida para tus asados de domingo bar en la azotea para tus after office y sabés qué es lo mejor?, Podés asegurar tu lugar en este proyecto único con solo el 35% de adelanto y hasta 36 cuotas en dólares. Así es! Invertí hoy y capitalizá la plusvalía desde el pozo. No te quedés afuera de esta oportunidad única en tigre. Ya sea para vivir o como inversión, doral es la jugada maestra que estabas esperando. Querés más info? Contactanos ya! Nuestros asesores están listos para mostrarte cómo doral puede ser tu próximo gran paso. No dejes pasar esta chance! La ciudad del futuro te espera en doral tigre. Te lo vas a perder? Llamá ahora y sé parte de algo grande. Doral tigre: tu inversión inteligente, tu futuro asegurado. Reservá tu unidad hoy mismo! Aviso legal: todas las medidas e información de : expensas, impuestos y servicios y datos sobre la arquitectura de esta propiedad son aproximados y se encuentran sujetos a revisión por el interesado. Pueden no estar actualizados al momento de su visualización, ya que fueron brindados por el propietario a la hora de su publicación. Ley 5115: excepto que en la descripción de la propiedad se indique lo contrario, el edificio puede no contar con rampa para personas con movilidad reducida, y no ser accesible para personas con discapacidades físicas.- Martillero y corredor publico, darío lorenzo, cmpcal 520 / cucicba 8741 la tasación, intermediación y la conclusión de las operaciones sobre esta propiedad son actividades exclusivas de este corredor matriculado, conforme las previsiones de la ley 20.266, la ley caba 2340, la ley provincial 10.973 y sus modif. Y las normas reglamentarias dictadas por los colegios departamentales.

Contactar
1/30

0

USD 112.650

Avenida italia 3000

Local en Venta en Villanueva, Countries y Barrios Cerrados en Tigre

DaLo Propiedades
  • 46 m² Total

Local en Venta en Villanueva, Tigre, G.B.A. Zona Norte

2a departamento oficina. Monoambiente. Inversores y futuros propietarios! Listos para ser parte de la nueva joya de villanueva? Presentamos doral, el complejo de uso mixto que va a revolucionar la zona. Imaginate vivir, trabajar y disfrutar, todo en un mismo lugar. Doral te ofrece: deptos de 1, 2 y 3 ambientes con terminaciones de primera locales comerciales estratégicamente ubicados oficinas modernas con vistas increíbles gimnasio equipado y pileta para relajarte después de un dia de trabajo terraza compartida para tus asados de domingo bar en la azotea para tus after office y sabés qué es lo mejor?, Podés asegurar tu lugar en este proyecto único con solo el 30% de adelanto y hasta 36 cuotas en dólares. Así es! Invertí hoy y capitalizá la plusvalía desde el pozo. No te quedés afuera de esta oportunidad única en tigre. Ya sea para vivir o como inversión, doral es la jugada maestra que estabas esperando. Querés más info? Contactanos ya! Nuestros asesores están listos para mostrarte cómo doral puede ser tu próximo gran paso. No dejes pasar esta chance! La ciudad del futuro te espera en doral tigre. Te lo vas a perder? Llamá ahora y sé parte de algo grande. Doral tigre: tu inversión inteligente, tu futuro asegurado. Reservá tu unidad hoy mismo! Aviso legal: todas las medidas e información de : expensas, impuestos y servicios y datos sobre la arquitectura de esta propiedad son aproximados y se encuentran sujetos a revisión por el interesado. Pueden no estar actualizados al momento de su visualización, ya que fueron brindados por el propietario a la hora de su publicación. Ley 5115: excepto que en la descripción de la propiedad se indique lo contrario, el edificio puede no contar con rampa para personas con movilidad reducida, y no ser accesible para personas con discapacidades físicas.- Martillero y corredor publico, darío lorenzo, cmpcal 520 / cucicba 8741 la tasación, intermediación y la conclusión de las operaciones sobre esta propiedad son actividades exclusivas de este corredor matriculado, conforme las previsiones de la ley 20.266, la ley caba 2340, la ley provincial 10.973 y sus modif. Y las normas reglamentarias dictadas por los colegios departamentales.

Contactar
1/31

0

USD 116.500

Avenida italia 3000

Local en Venta en Villanueva, Countries y Barrios Cerrados en Tigre

DaLo Propiedades
  • 46 m² Total
  • A Estrenar

Local en Venta en Villanueva, Tigre, G.B.A. Zona Norte

Pp local 113. Inversores y futuros propietarios! Listos para ser parte de la nueva joya de villanueva? Presentamos doral, el complejo de uso mixto que va a revolucionar la zona. Imaginate vivir, trabajar y disfrutar, todo en un mismo lugar. Doral te ofrece: deptos de 1, 2 y 3 ambientes con terminaciones de primera locales comerciales estratégicamente ubicados oficinas modernas con vistas increíbles gimnasio equipado y pileta para relajarte después de un dia de trabajo terraza compartida para tus asados de domingo bar en la azotea para tus after office y sabés qué es lo mejor?, Podés asegurar tu lugar en este proyecto único con solo el 30% de adelanto y hasta 36 cuotas en dólares. Así es! Invertí hoy y capitalizá la plusvalía desde el pozo. No te quedés afuera de esta oportunidad única en tigre. Ya sea para vivir o como inversión, doral es la jugada maestra que estabas esperando. Querés más info? Contactanos ya! Nuestros asesores están listos para mostrarte cómo doral puede ser tu próximo gran paso. No dejes pasar esta chance! La ciudad del futuro te espera en doral tigre. Te lo vas a perder? Llamá ahora y sé parte de algo grande. Doral tigre: tu inversión inteligente, tu futuro asegurado. Reservá tu unidad hoy mismo! Aviso legal: todas las medidas e información de : expensas, impuestos y servicios y datos sobre la arquitectura de esta propiedad son aproximados y se encuentran sujetos a revisión por el interesado. Pueden no estar actualizados al momento de su visualización, ya que fueron brindados por el propietario a la hora de su publicación. Ley 5115: excepto que en la descripción de la propiedad se indique lo contrario, el edificio puede no contar con rampa para personas con movilidad reducida, y no ser accesible para personas con discapacidades físicas.- Martillero y corredor publico, darío lorenzo, cmpcal 520 / cucicba 8741 la tasación, intermediación y la conclusión de las operaciones sobre esta propiedad son actividades exclusivas de este corredor matriculado, conforme las previsiones de la ley 20.266, la ley caba 2340, la ley provincial 10.973 y sus modif. Y las normas reglamentarias dictadas por los colegios departamentales.

Contactar
1/31

0

USD 242.250

Avenida italia 3000

Local en Venta en Villanueva, Countries y Barrios Cerrados en Tigre

DaLo Propiedades
  • 96 m² Total
  • A Estrenar

Local en Venta en Doral Tigre, Benavidez, Tigre

Pp: local 116 interno. Inversores y futuros propietarios! Listos para ser parte de la nueva joya de villanueva? Presentamos doral, el complejo de uso mixto que va a revolucionar la zona. Imaginate vivir, trabajar y disfrutar, todo en un mismo lugar. Doral te ofrece: deptos de 1, 2 y 3 ambientes con terminaciones de primera locales comerciales estratégicamente ubicados oficinas modernas con vistas increíbles gimnasio equipado y pileta para relajarte después de un dia de trabajo terraza compartida para tus asados de domingo bar en la azotea para tus after office y sabés qué es lo mejor?, Podés asegurar tu lugar en este proyecto único con solo el 30% de adelanto y hasta 36 cuotas en dólares. Así es! Invertí hoy y capitalizá la plusvalía desde el pozo. No te quedés afuera de esta oportunidad única en tigre. Ya sea para vivir o como inversión, doral es la jugada maestra que estabas esperando. Querés más info? Contactanos ya! Nuestros asesores están listos para mostrarte cómo doral puede ser tu próximo gran paso. No dejes pasar esta chance! La ciudad del futuro te espera en doral tigre. Te lo vas a perder? Llamá ahora y sé parte de algo grande. Doral tigre: tu inversión inteligente, tu futuro asegurado. Reservá tu unidad hoy mismo! Aviso legal: todas las medidas e información de : expensas, impuestos y servicios y datos sobre la arquitectura de esta propiedad son aproximados y se encuentran sujetos a revisión por el interesado. Pueden no estar actualizados al momento de su visualización, ya que fueron brindados por el propietario a la hora de su publicación. Ley 5115: excepto que en la descripción de la propiedad se indique lo contrario, el edificio puede no contar con rampa para personas con movilidad reducida, y no ser accesible para personas con discapacidades físicas.- Martillero y corredor publico, darío lorenzo, cmpcal 520 / cucicba 8741 la tasación, intermediación y la conclusión de las operaciones sobre esta propiedad son actividades exclusivas de este corredor matriculado, conforme las previsiones de la ley 20.266, la ley caba 2340, la ley provincial 10.973 y sus modif. Y las normas reglamentarias dictadas por los colegios departamentales.

Contactar
1/30

0

USD 179.760

Avenida italia 3000

Local en Venta en Villanueva, Countries y Barrios Cerrados en Tigre

DaLo Propiedades
  • 64 m² Total

Local en Venta en Villanueva, Tigre, G.B.A. Zona Norte

Del 6 al 9 piso. Unidad 2-departamento-oficina-sobre av. Italia. Presentamos doral, el complejo de uso mixto que va a revolucionar la zona. Imaginate vivir, trabajar y disfrutar, todo en un mismo lugar. Doral te ofrece: deptos de 1, 2 y 3 ambientes con terminaciones de primera locales comerciales estratégicamente ubicados oficinas modernas con vistas increíbles gimnasio equipado y pileta para relajarte después de un dia de trabajo terraza compartida para tus asados de domingo bar en la azotea para tus after office y sabés qué es lo mejor?, Podés asegurar tu lugar en este proyecto único con solo el 30% de adelanto y hasta 36 cuotas en dólares. Así es! Invertí hoy y capitalizá la plusvalía desde el pozo. No te quedés afuera de esta oportunidad única en tigre. Ya sea para vivir o como inversión, doral es la jugada maestra que estabas esperando. Querés más info? Contactanos ya! Nuestros asesores están listos para mostrarte cómo doral puede ser tu próximo gran paso. No dejes pasar esta chance! La ciudad del futuro te espera en doral tigre. Te lo vas a perder? Llamá ahora y sé parte de algo grande. Doral tigre: tu inversión inteligente, tu futuro asegurado. Reservá tu unidad hoy mismo! Aviso legal: todas las medidas e información de : expensas, impuestos y servicios y datos sobre la arquitectura de esta propiedad son aproximados y se encuentran sujetos a revisión por el interesado. Pueden no estar actualizados al momento de su visualización, ya que fueron brindados por el propietario a la hora de su publicación. Ley 5115: excepto que en la descripción de la propiedad se indique lo contrario, el edificio puede no contar con rampa para personas con movilidad reducida, y no ser accesible para personas con discapacidades físicas.- Martillero y corredor publico, darío lorenzo, cmpcal 520 / cucicba 8741 la tasación, intermediación y la conclusión de las operaciones sobre esta propiedad son actividades exclusivas de este corredor matriculado, conforme las previsiones de la ley 20.266, la ley caba 2340, la ley provincial 10.973 y sus modif. Y las normas reglamentarias dictadas por los colegios departamentales.

Contactar
1/29

0

USD 236.000

Avenida italia 3000

Local en Venta en Villanueva, Countries y Barrios Cerrados en Tigre

DaLo Propiedades
  • 94 m² Total
  • A Estrenar

Local en Venta en Villanueva, Tigre, G.B.A. Zona Norte

Local 117 - 1 piso anticipo del 30% 70.800u$s y saldo en 36 cuotas de 4589 u$s inversores y futuros propietarios! Listos para ser parte de la nueva joya de villanueva? Presentamos doral, el complejo de uso mixto que va a revolucionar la zona. Imaginate vivir, trabajar y disfrutar, todo en un mismo lugar. Doral te ofrece: deptos de 1, 2 y 3 ambientes con terminaciones de primera locales comerciales estratégicamente ubicados oficinas modernas con vistas increíbles gimnasio equipado y pileta para relajarte después de un dia de trabajo terraza compartida para tus asados de domingo bar en la azotea para tus after office y sabés qué es lo mejor?, Podés asegurar tu lugar en este proyecto único con solo el 35% de adelanto y hasta 36 cuotas en dólares. Así es! Invertí hoy y capitalizá la plusvalía desde el pozo. No te quedés afuera de esta oportunidad única en tigre. Ya sea para vivir o como inversión, doral es la jugada maestra que estabas esperando. Querés más info? Contactanos ya! Nuestros asesores están listos para mostrarte cómo doral puede ser tu próximo gran paso. No dejes pasar esta chance! La ciudad del futuro te espera en doral tigre. Te lo vas a perder? Llamá ahora y sé parte de algo grande. Doral tigre: tu inversión inteligente, tu futuro asegurado. Reservá tu unidad hoy mismo! Aviso legal: todas las medidas e información de : expensas, impuestos y servicios y datos sobre la arquitectura de esta propiedad son aproximados y se encuentran sujetos a revisión por el interesado. Pueden no estar actualizados al momento de su visualización, ya que fueron brindados por el propietario a la hora de su publicación. Ley 5115: excepto que en la descripción de la propiedad se indique lo contrario, el edificio puede no contar con rampa para personas con movilidad reducida, y no ser accesible para personas con discapacidades físicas.- Martillero y corredor publico, darío lorenzo, cmpcal 520 / cucicba 8741 la tasación, intermediación y la conclusión de las operaciones sobre esta propiedad son actividades exclusivas de este corredor matriculado, conforme las previsiones de la ley 20.266, la ley caba 2340, la ley provincial 10.973 y sus modif. Y las normas reglamentarias dictadas por los colegios departamentales.

Contactar
1/31

0

USD 202.600

Avenida italia 3000

Local en Venta en Villanueva, Countries y Barrios Cerrados en Tigre

DaLo Propiedades
  • 81 m² Total
  • A Estrenar

Local en Venta en Villanueva, Tigre, G.B.A. Zona Norte

Local pp 106- calle doral/interno-lote en esquina. Inversores y futuros propietarios! Listos para ser parte de la nueva joya de villanueva? Presentamos doral, el complejo de uso mixto que va a revolucionar la zona. Imaginate vivir, trabajar y disfrutar, todo en un mismo lugar. Doral te ofrece: deptos de 1, 2 y 3 ambientes con terminaciones de primera locales comerciales estratégicamente ubicados oficinas modernas con vistas increíbles gimnasio equipado y pileta para relajarte después de un dia de trabajo terraza compartida para tus asados de domingo bar en la azotea para tus after office y sabés qué es lo mejor?, Podés asegurar tu lugar en este proyecto único con solo el 30% de adelanto y hasta 36 cuotas en dólares. Así es! Invertí hoy y capitalizá la plusvalía desde el pozo. No te quedés afuera de esta oportunidad única en tigre. Ya sea para vivir o como inversión, doral es la jugada maestra que estabas esperando. Querés más info? Contactanos ya! Nuestros asesores están listos para mostrarte cómo doral puede ser tu próximo gran paso. No dejes pasar esta chance! La ciudad del futuro te espera en doral tigre. Te lo vas a perder? Llamá ahora y sé parte de algo grande. Doral tigre: tu inversión inteligente, tu futuro asegurado. Reservá tu unidad hoy mismo! Aviso legal: todas las medidas e información de : expensas, impuestos y servicios y datos sobre la arquitectura de esta propiedad son aproximados y se encuentran sujetos a revisión por el interesado. Pueden no estar actualizados al momento de su visualización, ya que fueron brindados por el propietario a la hora de su publicación. Ley 5115: excepto que en la descripción de la propiedad se indique lo contrario, el edificio puede no contar con rampa para personas con movilidad reducida, y no ser accesible para personas con discapacidades físicas.- Martillero y corredor publico, darío lorenzo, cmpcal 520 / cucicba 8741 la tasación, intermediación y la conclusión de las operaciones sobre esta propiedad son actividades exclusivas de este corredor matriculado, conforme las previsiones de la ley 20.266, la ley caba 2340, la ley provincial 10.973 y sus modif. Y las normas reglamentarias dictadas por los colegios departamentales.

Contactar