(1) (1)
  • Ituzaingo

Operación

Terreno

Precio

Buscar solo avisos en moneda:

Dorm|Amb

Más filtros Más filtros

Características

Superficie total

Nombre de calle y altura

Tipo de urbanización

Fot

Servicios

Tipo de anunciante

Comparte comisión

594 Terrenos en Ituzaingo

1/16

0

USD 400.000

Martín Fierro 5000

Terreno en Venta en Villa Gobernador Udaondo, Ituzaingo

REMAX Vita
  • 1.450 m² Total
  • Bueno

Terreno sobre Martín Fierro CMF2 1450m2

Corredor responsable: silvana inés palini cpi 8862 / cmcpm 2955 - contacto: daniel santillán ideal para desarrollo inmobiliario excelente lote sobre avenida martin fierro - udaondo 1450 m2. Frente sobre martín fierro: 25m fondo 50m zonificación cmf2 - comercial martín fierro densidad media baja - apto para 1160m2 cubiertos. Altura maxima permitida 15m. Densidad 150 h/h. Ideal para desarrollo inmobiliario . En un lote 1.450m2 este inmueble comprende una casa de buenas dimensiones, psicina y locales comerciales. Oportunidad - casa quinta - local - inversión la oportunidad ideal para capitalizar en el corredor de mayor crecimiento de la zona oeste! Cerca de autopista camino del buen ayre. Sobre martin fierro, villa udaondo. . 25 metros de frente sobre av. Martín fierro, 50m. De fondo. Orientación norte. *Los gastos de escritura quedan 100% a cuenta y óden del comprador rau s.R.L. No ejerce el corretaje inmobiliario. El presente sitio web es una plataforma en donde cada oficina inmobiliaria independiente que contrata los servicios re/max puede publicar las propiedades a su cargo. Cada oficina es de propiedad y gestión independiente, por lo que rau s.R.L. No interviene en los datos de la publicación, en la operación inmobiliaria, ni en la confección y/o firma del boleto de compraventa y/o escritura y/o contrato de alquiler. En cumplimiento de las leyes vigentes que regulan el corretaje inmobiliario, ley nacional 25.028, ley 22.802 de lealtad comercial, ley 24.240 de defensa al consumidor, las normas del código civil y comercial de la nación y constitucionales, los agentes/gestores no ejercen el corretaje inmobiliario. Todas las operaciones inmobiliarias son objeto de intermediación y conclusión por parte del corredor público inmobiliario colegiado a cargo de la publicación, cuyos datos se exhiben en la presente. La presente publicación describe las características esenciales del inmueble, debiéndose consultar al corredor público inmobiliario responsable de la operación por la eventual actualización de las medidas, descripciones arquitectónicas y funcionales, valores de expensas, servicios, impuestos, precios y demás información, cuyos valores son aproximados. Comprá la casa que querés! No la que podés. Accedé a un préstamo por hasta el 30% del valor de esta propiedad. Simulá tu cuota en lendar

Contactar
1/18

0

USD 229.990

Republica del Salvador 300

Terreno en Venta en Ituzaingo, Buenos Aires

Remax Net
  • 1.350 m² Total

LOTE DOBLE ITUZAINGO 1350 M2 - FINANCIACION PROPIA

Corredor responsable: graciela menazzi cmcpdjlm 841 / cpi 6344 - contacto: jonathan montiel se aceptan metros, financiacion propia o permuta lote doble en ituzaingó de 1.350 m² totales, (24.98 m² de frente y 55.85 m² de fondo). Ubicación extraordinaria, en la zona residencial mas atractiva de ituzaingó. A media cuadra de av. Rivadavia. A media cuadra del tren sarmiento (a 10 cuadras de la estación san antonio de padua). Según el análisis realizado sobre el terreno se podrían realizar alguno de los siguientes proyectos por ejemplo: (conforme a la legislación actual se puede construir hasta 9 metros de altura) - 5 casas de 4 ambientes y cochera de 300 m². - 8 dúplex de 3 ambientes con cochera y separación con una alameda. - 24 departamentos de 2 ambientes con cocheras en 3 pisos. Se ofrece financiacion propia, para desarrolladores o inversores. Se toman metros de proyecto como forma de pago. El terreno puede entregarse únicamente con las paredes en pie y listo para demoler la casa, ya que se cuenta con personal para desarmar toda la propiedad. Datos de la zona: colectivos: 136, 312, 322, 392, 395, 422, etc. Tren: estación san antonio de padua, tren sarmiento. Colegios: instituto general san martín, escuela de educación secundaria n°16, colegio general manuel belgrano, escuela bicultural ugo foscolo, instituto nicolás avellaneda, i.M.E.I. Instituto moderno de educación integral, instituto \"comandante luis piedrabuena\", etc. Universidades: universidad nacional del oeste y universidad abierta interamericana uai. Salud: hospital pedro chutro materno infantil, centro gelpi, centro médico san antonio, clinica noguera, etc. *Si tienes que vender para comprar, podemos ayudarte y realizar la operación simultánea* beneficio para clientes si te falta hasta un 30% del valor de esta propiedad, te ofrecemos solicitar un préstamo a través de lendar, servicio exclusivo para clientes re/max. Hace la simulación de tu cuota a través del simulador. Rau s.R.L. No ejerce el corretaje inmobiliario. El presente sitio web es una plataforma en donde cada oficina inmobiliaria independiente que contrata los servicios re/max puede publicar las propiedades a su cargo. Cada oficina es de propiedad y gestión independiente, por lo que rau s.R.L. No interviene en los datos de la publicación, en la operación inmobiliaria, ni en la confección y/o firma del boleto de compraventa y/o escritura y/o contrato de alquiler. En cumplimiento de las leyes vigentes que regulan el corretaje inmobiliario, ley nacional 25.028, ley 22.802 de lealtad comercial, ley 24.240 de defensa al consumidor, las normas del código civil y comercial de la nación y constitucionales, los agentes/gestores no ejercen el corretaje inmobiliario. Todas las operaciones inmobiliarias son objeto de intermediación y conclusión por parte del corredor público inmobiliario colegiado a cargo de la publicación, cuyos datos se exhiben en la presente. La presente publicación describe las características esenciales del inmueble, debiéndose consultar al corredor público inmobiliario responsable de la operación por la eventual actualización de las medidas, descripciones arquitectónicas y funcionales, valores de expensas, servicios, impuestos, precios y demás información, cuyos valores son aproximados. Comprá la casa que querés! No la que podés. Accedé a un préstamo por hasta el 30% del valor de esta propiedad. Simulá tu cuota en lendar

Contactar
1/5

0

USD 990.000

Julian Balvin al 4400

Terreno en Venta en Villa Gobernador Udaondo, Ituzaingo

Veronica Espinosa Negocios Inmobiliarios
  • 7.668 m² Total
  • 71 mts Frente
  • 108 mts Fondo

Terreno en Villa Gobernador Udaondo

Proyecto iniciado y aprobado en municipalidad. Planos aprobados por 19 lotes de 300 a 450 mts2 por lote. Terreno parquizado con añeja arbolada de 7668 mts2. El terreno es de 71mts de frente y 108mts de largo, con salida a ambas calles. Muro en 3 de los 4 laterales. Portón eléctrico en entrada principal y otro en salida por 2da calle. Cuenta con una casa con 4 habitaciones, una en suite. Dos baños. Cocina comedor diario. Living bajo nivel. Chimenea a leña. Cochera/galpón de 230 mts2, lugar para 4 autos. Sobre asfalto y líneas de colectivo. Escuela a una cuadra. Muy buena ubicación. Descubre las mejores oportunidades inmobiliarias siguiéndonos en instagram! Las descripciones, medidas, superficies y proporciones proporcionadas en esta ficha son aproximadas y se presentan únicamente a modo orientativo. Es importante tener en cuenta que la información brindada puede estar sujeta a cambios y actualizaciones, y que los inmuebles mencionados pueden ser retirados de la oferta sin previo aviso. Para obtener la información más precisa y actualizada sobre las propiedades disponibles, te recomendamos contactar a nuestro equipo de profesionales. Ellos estarán encantados de brindarte detalles adicionales y responder a todas tus preguntas. Agradecemos tu comprensión y estamos comprometidos en brindarte un servicio transparente y confiable. Espinosa negocios inmobiliarios

Contactar
1/12

0

USD 794.000

Gelpi al 800

Terreno en Venta en Ituzaingo, Buenos Aires

Veronica Espinosa Negocios Inmobiliarios
  • 1.490 m² Total
  • 34 mts Frente
  • 43 mts Fondo

Terreno en Ituzaingó Sur

Oportunidad única en ituzaingó sur! Terreno en venta en gelpi 850 ubicado en el corazón de ituzaingó sur, este terreno en gelpi 850 ofrece una ubicación privilegiada con acceso a una variedad de servicios y comodidades. Con una distancia de solo 350 metros de la avenida rivadavia y a 400 metros de la estación de tren de ituzaingó, disfrutarás de una conectividad excepcional para facilitar tu día a día. Características destacadas: proximidad a espacios verdes: a tan solo 300 metros del parque gorki grana, ideal para disfrutar de actividades al aire libre y tiempo en familia. Cercanía a grandes superficies comerciales: ubicado a 350 metros del hipermercado carrefour, facilitando tus compras diarias y de conveniencia. Corredor comercial dinámico: a 150 metros de un vibrante corredor comercial, brindándote acceso a una variedad de tiendas, restaurantes y servicios. Este terreno se presenta como una excelente inversión, ya sea para el desarrollo de proyectos residenciales o comerciales, gracias a su excelente ubicación y su cercanía a infraestructuras clave. No pierdas la oportunidad de adquirir un terreno en una de las zonas más demandadas de ituzaingó sur. Para construir: fot: 3= 1490mt2 x 3= superficie construible: 4.470mt2. Fos: 0.60= 894mt2 altura maxima= 27m2 para más información o para coordinar una visita, contáctanos hoy mismo! Descubre las mejores oportunidades inmobiliarias siguiéndonos en instagram! Las descripciones, medidas, superficies y proporciones proporcionadas en esta ficha son aproximadas y se presentan únicamente a modo orientativo. Es importante tener en cuenta que la información brindada puede estar sujeta a cambios y actualizaciones, y que los inmuebles mencionados pueden ser retirados de la oferta sin previo aviso. Para obtener la información más precisa y actualizada sobre las propiedades disponibles, te recomendamos contactar a nuestro equipo de profesionales. Ellos estarán encantados de brindarte detalles adicionales y responder a todas tus preguntas. Agradecemos tu comprensión y estamos comprometidos en brindarte un servicio transparente y confiable. Espinosa negocios inmobiliarios

Contactar
1/4

0

USD 275.000

De los Baqueanos 1100, Piso 0

Terreno en Venta en Barrio Parque Leloir, Ituzaingo

C21 Lamoisse Lorre
  • 1.615,38 m² Total

Venta Lote Ituzaingo Parque Leloir

Venta de lote en parque leloir, ituzaingó excelente lote en inmejorable ubicación residencial de parque leloir, cercana al circuito aeróbico y a las avenidas udaondo y martín fierro. Superficie de 1615,38 m2. Zonificación residencial parque. Fot: 0.5 y fos 0.3.- Gisela natalia lorré & verónica lamoisse matrícula cmcpm 3001 / cucicba 8846 teléfonos de contacto todas las propiedades que figuran en esta publicación se encuentran a cargo del profesional matriculado gisela natalia lorré & verónica lamoisse, matrícula cmcpm 3001 / cucicba 8846 por lo tanto la intermediación y la conclusión de las operaciones serán llevadas exclusivamente por él. En cumplimiento de la ley 10.973 de la provincia de buenos aires, ley nacional 25.028, ley nacional 20.266, ley 22.802 de lealtad comercial, ley 24.240 de defensa al consumidor, las normas del código civil y comercial de la nación y constitucionales, los asesores o agentes no ejercen el corretaje inmobiliario. Todas las operaciones inmobiliarias son objeto de intermediación y conclusión por parte del martillero y corredor colegiado, cuyos datos se exhiben en el nombre de la inmobiliaria. Ley 5115: excepto que en la descripción de la propiedad se indique lo contrario, el edificio puede no contar con rampa para personas con movilidad reducida, y no ser accesible para personas con discapacidades físicas. Venta sujeta a la obtención del coti por parte del propietario. Las medidas son aproximadas, las reales surgen del título o plano de mensura. Las reservas se toman exclusivamente en la inmobiliaria con el matriculado cmcpm 3001 / cucicba 8846

Contactar
1/6

0

$ 400.000

Martin Rodriguez 3400, Piso 0

Terreno en Alquiler en Ituzaingo, Buenos Aires

C21 Lamoisse Lorre
  • 312 m² Total
  • 10 mts Frente
  • 31 mts Fondo

Alquiler de terreno zona semi industrial Ituzaingo norte

Alquiler de lote con 10 metros de frente y 31 de fondo haciendo una superficie total de 312m² aprox. Posee una construcción precaria el gas natural pasa por la linea municipal zonificación semi industrial gisela natalia lorré & verónica lamoisse matrícula cmcpm 3001 / cucicba 8846 teléfonos de contacto todas las propiedades que figuran en esta publicación se encuentran a cargo del profesional matriculado gisela natalia lorré & verónica lamoisse, matrícula cmcpm 3001 / cucicba 8846 por lo tanto la intermediación y la conclusión de las operaciones serán llevadas exclusivamente por él. En cumplimiento de la ley 10.973 de la provincia de buenos aires, ley nacional 25.028, ley nacional 20.266, ley 22.802 de lealtad comercial, ley 24.240 de defensa al consumidor, las normas del código civil y comercial de la nación y constitucionales, los asesores o agentes no ejercen el corretaje inmobiliario. Todas las operaciones inmobiliarias son objeto de intermediación y conclusión por parte del martillero y corredor colegiado, cuyos datos se exhiben en el nombre de la inmobiliaria. Ley 5115: excepto que en la descripción de la propiedad se indique lo contrario, el edificio puede no contar con rampa para personas con movilidad reducida, y no ser accesible para personas con discapacidades físicas. Venta sujeta a la obtención del coti por parte del propietario. Las medidas son aproximadas, las reales surgen del título o plano de mensura. Las reservas se toman exclusivamente en la inmobiliaria con el matriculado cmcpm 3001 / cucicba 8846

Contactar
1/35

0

USD 88.000

Enrique Larreta 4600

Terreno en Venta en Villa Gobernador Udaondo, Ituzaingo

REMAX Vita
  • 810 m² Total

LOTE VENTA VILLA UDAONDO CON DOS CASAS DE 35 M C/U

Corredor responsable: silvana inés palini cpi 8862 / cmcpm 2955 - contacto: pablo alvaro de caso lote en venta en villa gobernador udaondo, ituzaingó excelente oportunidad de inversión. Lote de 18 metros de frente por 45 metros de fondo, ubicado a solo tres cuadras de la calle principal martín fierro, en una zona comercial consolidada con supermercados, locales y servicios. La propiedad cuenta con dos casas de 35 m² cada una, en muy buen estado y listas para alquilar, ideales para obtener renta inmediata. Además, dispone de un sector libre de 9 metros de ancho por 45 metros de fondo, formando una l en el fondo, perfecto para emprender nuevos proyectos de construcción o ampliar las edificaciones existentes. Ubicación estratégica, a una cuadra de mansilla y casi esquina tabaré, con fácil acceso y entorno residencial y comercial de gran crecimiento. Rau s.R.L. No ejerce el corretaje inmobiliario. El presente sitio web es una plataforma en donde cada oficina inmobiliaria independiente que contrata los servicios re/max puede publicar las propiedades a su cargo. Cada oficina es de propiedad y gestión independiente, por lo que rau s.R.L. No interviene en los datos de la publicación, en la operación inmobiliaria, ni en la confección y/o firma del boleto de compraventa y/o escritura y/o contrato de alquiler. En cumplimiento de las leyes vigentes que regulan el corretaje inmobiliario, ley nacional 25.028, ley 22.802 de lealtad comercial, ley 24.240 de defensa al consumidor, las normas del código civil y comercial de la nación y constitucionales, los agentes/gestores no ejercen el corretaje inmobiliario. Todas las operaciones inmobiliarias son objeto de intermediación y conclusión por parte del corredor público inmobiliario colegiado a cargo de la publicación, cuyos datos se exhiben en la presente. La presente publicación describe las características esenciales del inmueble, debiéndose consultar al corredor público inmobiliario responsable de la operación por la eventual actualización de las medidas, descripciones arquitectónicas y funcionales, valores de expensas, servicios, impuestos, precios y demás información, cuyos valores son aproximados. Comprá la casa que querés! No la que podés. Accedé a un préstamo por hasta el 30% del valor de esta propiedad. Simulá tu cuota en lendar

Contactar
1/18

0

USD 65.000

26 de Abril 3000

Terreno en Venta en Ituzaingo, Buenos Aires

REMAX Leven
  • 430 m² Total

LOTE TERRENO VENTA 430M2 ITUZAINGO NORTE

Corredor responsable: silvana inés palini cmcpm 2955 cpi 8862 - contacto: soledad chavez terreno de 430 m² en venta en ituzaingo norte, buenos aires actualmente cuanta con una superficie cubierta de 100m2 ubicación y entorno • a pasos del hospital del bicentenario pami ituzaingó • cerca del colegio thomas alva edison • próximo al polideportivo la torcaza • a unas cuadras de la plaza yupanqui • cercano a la parroquia san josé • sobre la av. Carlos ratti • accesible por las líneas de colectivo 395, 504, 269 y 443 características del terreno • superficie total de 430 m² • frente de 10 metros y profundidad de 43 metros • orientación sudoeste • servicios de agua corriente y cloacas disponibles oportunidades de desarrollo • ideal para inversión en vivienda multifamiliar de hasta 7 dormitorios (3 dúplex) según código edilicio • posibilidad de construir un local comercial de hasta 387 m² en dos plantas con altura máxima de 9 metros financiación remax ofrece la posibilidad de solicitar un préstamo a través de lendar, un servicio exclusivo para sus clientes que permite realizar el trámite 100% online y sin pasar por bancos. Puede simular su cuota a través del simulador disponible en el siguiente enlace: https: . Rau s.R.L. No ejerce el corretaje inmobiliario. El presente sitio web es una plataforma en donde cada oficina inmobiliaria independiente que contrata los servicios re/max puede publicar las propiedades a su cargo. Cada oficina es de propiedad y gestión independiente, por lo que rau s.R.L. No interviene en los datos de la publicación, en la operación inmobiliaria, ni en la confección y/o firma del boleto de compraventa y/o escritura y/o contrato de alquiler. En cumplimiento de las leyes vigentes que regulan el corretaje inmobiliario, ley nacional 25.028, ley 22.802 de lealtad comercial, ley 24.240 de defensa al consumidor, las normas del código civil y comercial de la nación y constitucionales, los agentes/gestores no ejercen el corretaje inmobiliario. Todas las operaciones inmobiliarias son objeto de intermediación y conclusión por parte del corredor público inmobiliario colegiado a cargo de la publicación, cuyos datos se exhiben en la presente. La presente publicación describe las características esenciales del inmueble, debiéndose consultar al corredor público inmobiliario responsable de la operación por la eventual actualización de las medidas, descripciones arquitectónicas y funcionales, valores de expensas, servicios, impuestos, precios y demás información, cuyos valores son aproximados. Comprá la casa que querés! No la que podés. Accedé a un préstamo por hasta el 30% del valor de esta propiedad. Simulá tu cuota en lendar

Contactar
1/62

0

USD 63.900

Colombia 1700

Terreno en Venta en Ituzaingo, Buenos Aires

REMAX Alfa
  • Bueno

VENTA LOTE C/CASA 3AMB

Corredor responsable: yanina delacour cucicba 5626 / cmcpm 2958 - contacto: natalia corrales hoy te invito a conocer lote con casa de 3 ambientes en ituzaingo. El mismo se encuentra sobre la calle colomgia al 1000. El lote esta nivelado ya que cuenta con una casa en el fondo del terreno, perfecta para habitar. Te cuento de la casa... Una vez que atravezás el jardín, entrás al amplio living-comedor, y luego accedés hacia la izquierda a una amplisima cocina-comedor con ventana al jardín. Al traspasar el living comedor tenes las dos habitaciones, una de ellas tambien con ventana al espacio verde y el baño completo de muy buen tamaño y el distribuidor. Cuando salis al patio, con parrilla, podes ves un ambiente ideal para reuniones familiares o con amigos, disfrutando del sol, el cesped y las flores que llenan el espacio. Como regalito tenes un tenes dos nisperos, un palto, una parra, un caqui, todos con frutas, y una gran variedad de plantas y flores. En resumen, esta es la casa ideal para vivir en familia. Esta casi original, funcionando, ideal para mudarte ya o modernizarla facilmente. Te cuento del barrio y sus atractivos... Ituzaingó es una ciudad y partido ubicado en la zona oeste del gran buenos aires, en la provincia de buenos aires, argentina. Es conocido por su tranquilidad, su perfil residencial y su carácter histórico. Si estás considerando vivir, invertir o simplemente visitar, aquí tienes un panorama desde una perspectiva inmobiliaria y turística: características generales ubicación estratégica: está a unos 25 km del centro de la ciudad de buenos aires, con fácil acceso gracias a la autopista del oeste y una amplia red de transporte público, incluyendo trenes y colectivos. Población: es una zona de clase media y media alta, con un crecimiento sostenido en los últimos años debido a su buena calidad de vida. Perfil inmobiliario zonas residenciales: ituzaingó se divide principalmente en ituzaingó norte y sur. El norte tiende a ser más exclusivo, con grandes propiedades y barrios cerrados, mientras que el sur es más accesible, pero también tiene casas espaciosas y arboladas. Desarrollo inmobiliario: en los últimos años, se ha visto un auge en la construcción de complejos de departamentos modernos y dúplex, sobre todo cerca de las estaciones de tren. Ideal para quienes buscan una mezcla de urbanidad y tranquilidad. Costo de vida y propiedades: comparado con barrios más céntricos de buenos aires, ituzaingó ofrece una excelente relación entre precio y calidad de vida, con propiedades más amplias y cómodas. Atractivos turísticos y culturales plaza 20 de febrero: el corazón de la ciudad, rodeada de cafeterías, comercios y con un aire familiar. Allí se realizan eventos culturales y ferias artesanales. Museo histórico de ituzaingó: perfecto para conocer la historia del lugar y su evolución desde la época colonial. Espacios verdes: ituzaingó es conocido por su vegetación abundante. Lugares como el parque la torcaza son ideales para actividades recreativas al aire libre. Gastronomía: cuenta con una variada oferta de restaurantes y cafeterías que combinan lo tradicional con propuestas más modernas. Ventajas para vivir o invertir conectividad: es ideal para quienes trabajan en la ciudad de buenos aires pero buscan un lugar más tranquilo para vivir. Seguridad: aunque como toda zona tiene áreas más seguras que otras, ituzaingó norte, en particular, es muy valorado por su perfil familiar. Calidad de vida: la combinación de espacios verdes, tranquilidad y acceso a servicios lo hace ideal para familias y profesionales. La casa cuenta con planos que deberán ser actualizados ya que se hicieron varias reformas. Hablame y te cuento más * corredor responsable: yanina delacour cpi 5626 / cmcpm 2958. La oficina es de operación y gestión independiente. La presente publicación describe las características esenciales del inmueble, debiéndose consultar al corredor público inmobiliario responsable de la operación por la eventual actualización de las medidas, descripciones arquitectónicas y funcionales, valores de expensas, servicios, impuestos, precios y demás información, cuyos valores son aproximados. Los agentes/gestores no ejercen el corretaje inmobiliario. Todas las operaciones inmobiliarias son objeto de intermediación y conclusión por parte del corredor público inmobiliario responsable de la presente publicación. El inmueble no es accesible para personas con discapacidades físicas. Las medidas publicadas son aproximadas y al solo efecto orientativo. Las medidas reales surgirán del estado parcelario actualizado, del plano y del titulo de propiedad respectivo. Rau s.R.L. No ejerce el corretaje inmobiliario. El presente sitio web es una plataforma en donde cada oficina inmobiliaria independiente que contrata los servicios re/max puede publicar las propiedades a su cargo. Cada oficina es de propiedad y gestión independiente, por lo que rau s.R.L. No interviene en los datos de la publicación, en la operación inmobiliaria, ni en la confección y/o firma del boleto de compraventa y/o escritura y/o contrato de alquiler. En cumplimiento de las leyes vigentes que regulan el corretaje inmobiliario, ley nacional 25.028, ley 22.802 de lealtad comercial, ley 24.240 de defensa al consumidor, las normas del código civil y comercial de la nación y constitucionales, los agentes/gestores no ejercen el corretaje inmobiliario. Todas las operaciones inmobiliarias son objeto de intermediación y conclusión por parte del corredor público inmobiliario colegiado a cargo de la publicación, cuyos datos se exhiben en la presente. La presente publicación describe las características esenciales del inmueble, debiéndose consultar al corredor público inmobiliario responsable de la operación por la eventual actualización de las medidas, descripciones arquitectónicas y funcionales, valores de expensas, servicios, impuestos, precios y demás información, cuyos valores son aproximados. Comprá la casa que querés! No la que podés. Accedé a un préstamo por hasta el 30% del valor de esta propiedad. Simulá tu cuota en lendar

Contactar
1/15

0

USD 1.300.000

Coronel Pablo Zufriategui 500

Terreno en Venta en Ituzaingo, Buenos Aires

REMAX DOWNTOWN
  • 1.199 m² Total
  • Excelente

Venta Lote 2500 m2 Construibles en Ituzaingó Norte

Corredor responsable: anabella brey cpi 9372 cpmclz 4168 - contacto: marita paganini la mejor ubicación para un desarrollo premium con departamentos de tres ambientes, parrilla propia y terraza con vista abierta! Ituzaingó lado norte a una cuadra del centro comercial de ituzaingó. A dos cuadras de la estación ituzaingó de la línea de tren sarmiento. 1199m2 libres para construir 10 pisos y 3 subsuelos para estacionamiento con una vista abierta hacia el lado norte! 2500 m2 construibles listos para desarrollar el producto que falta en ituzaingó, premium. Con un centro comercial en la planta baja. Escuchamos tu propuesta! El mejor lugar de ituzaingò para construir el desarrollo soñado, con amenities y todo lo necesario para la vida que deseas! Contactame rau s.R.L. No ejerce el corretaje inmobiliario. El presente sitio web es una plataforma en donde cada oficina inmobiliaria independiente que contrata los servicios re/max puede publicar las propiedades a su cargo. Cada oficina es de propiedad y gestión independiente, por lo que rau s.R.L. No interviene en los datos de la publicación, en la operación inmobiliaria, ni en la confección y/o firma del boleto de compraventa y/o escritura y/o contrato de alquiler. En cumplimiento de las leyes vigentes que regulan el corretaje inmobiliario, ley nacional 25.028, ley 22.802 de lealtad comercial, ley 24.240 de defensa al consumidor, las normas del código civil y comercial de la nación y constitucionales, los agentes/gestores no ejercen el corretaje inmobiliario. Todas las operaciones inmobiliarias son objeto de intermediación y conclusión por parte del corredor público inmobiliario colegiado a cargo de la publicación, cuyos datos se exhiben en la presente. La presente publicación describe las características esenciales del inmueble, debiéndose consultar al corredor público inmobiliario responsable de la operación por la eventual actualización de las medidas, descripciones arquitectónicas y funcionales, valores de expensas, servicios, impuestos, precios y demás información, cuyos valores son aproximados. Comprá la casa que querés! No la que podés. Accedé a un préstamo por hasta el 30% del valor de esta propiedad. Simulá tu cuota en lendar

Contactar
1/33

0

USD 490.000

Pedro Zanni 7900

Terreno en Venta en Ituzaingo, Buenos Aires

REMAX LINK
  • 753 m² Total
  • Muy Bueno

VENTA TERRENO COLECTORA ITUZAINGO CON OFICINAS

Corredor responsable: ezequiel miguel parola cmcpm 2921 / cpi 8017 - contacto: gimena garibaldi terreno en venta - colectora ituzaingó importante escucha ofertas y posibilidad de financiacion superficie total del terreno 749 mts mas oficinas en 2 plantas (a refaccionar) on un total de 135, 62 metros cuadrados zonificación: c3 si querés visitarlo no dudes en contactarme! Rau s.R.L. No ejerce el corretaje inmobiliario. El presente sitio web es una plataforma en donde cada oficina inmobiliaria independiente que contrata los servicios re/max puede publicar las propiedades a su cargo. Cada oficina es de propiedad y gestión independiente, por lo que rau s.R.L. No interviene en los datos de la publicación, en la operación inmobiliaria, ni en la confección y/o firma del boleto de compraventa y/o escritura y/o contrato de alquiler. En cumplimiento de las leyes vigentes que regulan el corretaje inmobiliario, ley nacional 25.028, ley 22.802 de lealtad comercial, ley 24.240 de defensa al consumidor, las normas del código civil y comercial de la nación y constitucionales, los agentes/gestores no ejercen el corretaje inmobiliario. Todas las operaciones inmobiliarias son objeto de intermediación y conclusión por parte del corredor público inmobiliario colegiado a cargo de la publicación, cuyos datos se exhiben en la presente. La presente publicación describe las características esenciales del inmueble, debiéndose consultar al corredor público inmobiliario responsable de la operación por la eventual actualización de las medidas, descripciones arquitectónicas y funcionales, valores de expensas, servicios, impuestos, precios y demás información, cuyos valores son aproximados. Comprá la casa que querés! No la que podés. Accedé a un préstamo por hasta el 30% del valor de esta propiedad. Simulá tu cuota en lendar

Contactar
1/5

0

USD 340.000

Domingo Olivera 600

Terreno en Venta en Ituzaingo, Buenos Aires

REMAX Buro II
  • 372 m² Total

Venta Lote zonificación AC Area Centro

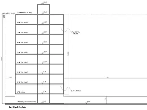
Corredor responsable: micaela perez csi 6671 / lucas federico delgado cucicba 6339 - contacto: carla berenice la porta venta lote ideal para emprendimiento, aceptan permuta por vivienda a estrenar o de pocos años, edificada en planta baja en las zonas de ituzaingó o parque leloir. Zonificación ac- area centro usos predominante: oficinas- comercio usos complementarios: vivienda multifamiliar desarrollo *subsuelo -6 módulos de cocheras proyectados *planta baja: hall y cocheras -9 módulos de cocheras proyectados *1° piso: oficina -uf 1: sup. Cubierta 100.70 m2, 6 habitantes. Requiere un modulo de cochera cada 100m2 de sup. Cubierta. *2° al 8° piso: vivienda multifamiliar -uf 2: sup. Cubierta 59.05 m2. 3 ambientes, 4 habitantes (dos dormitorios). -Uf 3: sup. Cubierta 30.28 m2. Monoambiente, 2 habitantes. Totales -total unidades funcionales: 15 uf (1 uf en1°p; 2 uf del 2°p al 8°p) -total habitantes: 48 hab. -Estacionamiento vivienda multifamiliar 1 módulo por uf= 14 cocheras exigidas -estacionamiento oficina 1 módulo cada 100 m2= 1 cochera exigida -total cocheras exigidas: 15 módulos -metros vendibles estimativos vivienda multif: 709.24m2- oficina: 100.70m2 - áreas comunes, circulaciones, planta baja libre y subsuelo: 513,98m2 indicadores urbanísticos ac ? Fos 0.6: 225.00 mt2 sup. Máxima a construir en planta baja ? Fot 3: 1125.00 mt2 sup. Máxima a construir pb, 1°al 8° piso (sin aplicar premios) ? Densidad neta poblacional residencial 1500 hab./ Ha: 56.25 (56 habitantes) sin aplicar premios ? Altura máxima c/ retiro voluntario: 27 mt ? Altura sobre línea municipal: 6 mt ? Retiro de fondo: centro libre de manzana art. 3.2.3.3- mínimo 8 mt. ? Estacionamiento: 1 módulos cochera por unidad funcional ? Superficie de suelo absorbente 50% de planta baja libre ? Subdivisión: ancho: 17 mt rau s.R.L. No ejerce el corretaje inmobiliario. El presente sitio web es una plataforma en donde cada oficina inmobiliaria independiente que contrata los servicios re/max puede publicar las propiedades a su cargo. Cada oficina es de propiedad y gestión independiente, por lo que rau s.R.L. No interviene en los datos de la publicación, en la operación inmobiliaria, ni en la confección y/o firma del boleto de compraventa y/o escritura y/o contrato de alquiler. En cumplimiento de las leyes vigentes que regulan el corretaje inmobiliario, ley nacional 25.028, ley 22.802 de lealtad comercial, ley 24.240 de defensa al consumidor, las normas del código civil y comercial de la nación y constitucionales, los agentes/gestores no ejercen el corretaje inmobiliario. Todas las operaciones inmobiliarias son objeto de intermediación y conclusión por parte del corredor público inmobiliario colegiado a cargo de la publicación, cuyos datos se exhiben en la presente. La presente publicación describe las características esenciales del inmueble, debiéndose consultar al corredor público inmobiliario responsable de la operación por la eventual actualización de las medidas, descripciones arquitectónicas y funcionales, valores de expensas, servicios, impuestos, precios y demás información, cuyos valores son aproximados. Comprá la casa que querés! No la que podés. Accedé a un préstamo por hasta el 30% del valor de esta propiedad. Simulá tu cuota en lendar

Contactar