Ecuador 500, Piso 0

USD 295.000

Venta en Ituzaingo, Buenos Aires

USD 295.000

  • Terreno

  • 2.949,75 m² Total

  • 40,87 mts Frente

  • 74 mts Fondo

VENTA LOTE ITUZAINGO NORTE 3000 m2

LOTE de 3000 m2 en Ituzaingó Norte, ubicado a tan sólo 9 cuadras de la estación de San Antonio de Padua.

Este terreno se emplaza en un entorno RESIDENCIAL consolidado, en una zona muy arbolada.
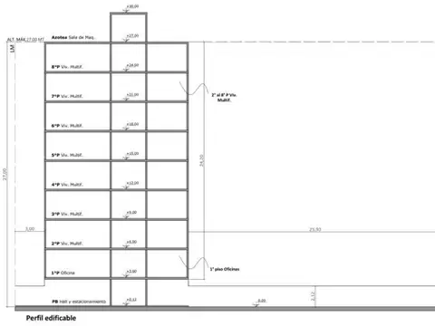
Este Lote, original por su superficie en la zona, es ideal para un EMPRENDIMIENTO HABITACIONAL: Condominio o un Complejo de Dúplexs.

Datos Clave para tu Proyecto:
Zonificación: Rm (RESIDENCIAL MIXTO)
F.O.S: 0.5
F.O.T: 0.8
Superficie Total: 2950 m²

Contactanos para coordinar una visita y descubrir su potencial real.
En cumplimiento con las leyes vigentes que regulan el corretaje inmobiliario, todas las operaciones inmobiliarias son objeto de intermediación y conclusión por la profesionales matriculadas Verónica Lamoisse CMCPM 3001 y Gisela Lorre CUCICBA 8846.
Cada Oficina es de Propiedad y operacion independiente.

Ubicación

Ituzaingo, G.B.A. Zona Oeste

Características

  • Long. Frente: 40,87 m

  • Long. Fondo: 74 m

  • Precio: USD 295.000

  • Sup. Total: 2.949,75 m2

Código de aviso: 65IV_294920-1

Contactá al anunciante

C21 Lamoisse Lorre