(1) (1)
  • San Fernando

Alquiler

Oficina

Precio

Buscar solo avisos en moneda:

Dorm|Amb

Ambientes

  • Mono.
  • 2
  • 3
  • 4
  • 5+

Más filtros Más filtros

Ambientes

  • Mono.
  • 2
  • 3
  • 4
  • 5+

Características

Superficie total

Superficie cubierta

Cocheras

Antiguedad

  • Indistinto
  • A estrenar
  • Hasta 5 años
  • Hasta 10 años
  • Hasta 20 años
  • Hasta 30 años
  • Más de 30 años

Nombre de calle y altura

Expensas

$

Tipo de urbanización

Servicios

Tipos de ambientes

Tipo de anunciante

Comparte comisión

30 Oficinas en Alquiler en San Fernando

1/20

0

USD 21.900

Buena Vista Business Park

Oficina en Alquiler en San Fernando, Buenos Aires

Tiscornia Propiedades
  • 1.043 m² cubie.
  • 1 baño
  • A Estrenar

Oficina en Alquiler en Buena Vista - 41 Cocheras - P8

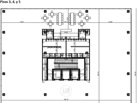
Oficina disponible en alquiler - p8 buena vista business park. Piso completo: 1.043 mts y 41 cocheras. Edificio de oficinas corporativas de alta categoria (a+) con seguidad 24 hs. Valor de alquiler a dólar oficial: 21 u$d por metro cuadrado + iva. Ubicación: - el edifico se ubica en buena vista, zona en amplio crecimiento con todo lo necesario a distancia caminable (restaurantes de alta categoria, supermercados, almacenes, entre otros). - Excelente acceso a panamericana. Especificaciones generales: - la planta de la oficina es un cuadrado de 33.33 mts de lado, con la posibildad de lograr hasta 40 despachos con vista de 3.03 m de ancho (17 en el semipiso). - Piso técnico. - Incluye núcleo sanitario con amplios baños y cocina, la que se integra con el espacio para el bar/comedor, todo oculto del ingreso a la oficina. - Doble vidriado hermético (dvh) con cara externa con control solar de última generación y cara interna laminada (control uv). - Aire acondicionado frío calor vrv independiente con compresores inverter. Renovación de aire controlable hasta 21 litros/seg/persona. - Luminarias led. - La altura libre entre piso técnico y cielorraso suspendido es 2.8 mts. - Generador diesel de energía eléctrica, partes comunes y ups de oficinas. - 3 ascensores de alta velocidad (schindler 5500). Motores de frecuencia variable para los ascensores. - Central de alarma, hidrantes y montantes para rociadores contra incendios. - Cargadores de autos eléctricos en el subsuelo. Seguridad: - seguridad privada 24 hs y control de acceso con tarjetas y molinetes. - Monitoreo de alarma independiente en cada oficina. - Uso de vidrios de seguridad en todo el perímetro de la pb y en los palieres de los subsuelos (se acceden sólo con tarjeta). - Cámaras ip con grabación continua. - Bunker de seguridad. - Monitoreo de video en la recepción. Edificio: - torre de perímetero libre desarrollada en pb + 7 pisos + 2 subsuelos. - Con fachadas íntegramente vidriadas, vistas privilegiadas al golf de boulogne, la calle central del business park, calle uruguay (edificio johnson), calle don francisco y autopista panamericana. - El frente del edificio está sobre una plaza seca de 800 m2 y cuenta con acceso vehicular imperial de cortesía y una recepción en triple altura de gran jerarquía. Las imágenes, medidas y superficies indicados son aproximados y al sólo efecto orientativo. Las medidas reales surgirán del título de propiedad respectivo. El valor consignado de expensas mensuales, impuesto municipal y impuesto provincial está sujeto a verificación y/o ajuste. Martillero responsable ricardo tiscornia cucicba 6020- cmcpsi 5963 para los casos de alquiler de vivienda en caba el monto máximo de comisión que se le puede requerir a los propietarios será el equivalente al cuatro con quince centésimos por ciento (4,15%) del valor total del respectivo contrato. Se encuentra prohibido cobrar a los inquilinos que sean personas físicas comisiones inmobiliarias y gastos de gestoría de informes.

Contactar
1/12

1

USD 21.903

Uruguay al 6900

Oficina en Alquiler en San Fernando, Buenos Aires

CBRE
  • 1.043 m² cubie.
  • A Estrenar
  • 41 cocheras

1° Piso - P8 Buenavista Business Park

Ubicación estratégica en el corredor norte sobre la autopista panamericana., Conjuga bajo tiempo de viaje en hora pico (22 minutos desde el obelisco, nordelta y/o el acceso oeste) con un ambiente de negocios y restaurantes de categoría. Características: - torre de perímetro libre desarrollada en pb + 7 pisos y 2 subsuelos, 333 cocheras con rampa doble, 73 en pb (20 de cortesía) - plaza de entrada de 800 m2 con entrada vehicular imperial, hall de recepción en triple altura - seguridad privada 24 horas, control de acceso con molinetes, cámaras de seguridad ip y sistema de grabación continua - helipuerto en la terraza - 3 ascensores de alta velocidad (schindler 5500) - fachadas íntegramente vidriadas (frame) con dvh de alta performance (saint-gobain glass cool lite ks ii 138) - generador diesel de energía eléctrica, partes comunes y ups de oficinas - cargadores de autos eléctricos en los subsuelos - 2 escaleras independientes con doble puerta - central de alarma, detectores, hidrantes y montantes para rociadores contra incendios (grundfos fire system, tableros nfpa) - piso técnico metálico (no combustible clase a) - aire frío/calor vrv independiente (hisense vrf hi-flexi s mavo series and s heat recovery) - renovación de aire controlable hasta 21 litros/seg/persona (3 veces la recomendación de la ashrae) - cielorraso suspendido en planta libre (2.8 m altura) cbre ha asumido que todos los documentos, datos e información proporcionados por, o a nombre del cliente, dueño del inmueble, o el representante del dueño son exactos, correctos a menos que se indique expresamente lo contrario en el informe. Cbre no asume ninguna responsabilidad (incluyendo cualquier obligación de procurar la misma) respecto a todos los documentos, datos o informaciones que no proporcionan a cbre o que se hubieran proporcionado erróneamente, incluyendo sin limitación cualquier inspección, planos de mensura o permisos de ocupación. Cucicba no2961 carlos mariano gowland acosta | cmcpsi no6574 iván jackson

Contactar
1/17

0

USD 9.429

Uruguay 6900, Piso 2

Oficina en Alquiler en San Fernando Vias / Panamericana, San Fernando

PREMIER REAL ESTATE SA - CPI 67717753 CMCPSI 6665
  • 1 año
  • Monoam.
  • 10 cocheras

Oficina Premium en Buenavista Business Park con Diseño Tecnología y Ubicación Estratégica en San Fer

Oficina corporativa clase a+ en alquiler – buenavista business park, victoria, san fernando disponible moderno piso completo de 449 m² con 18 cocheras propias, ubicado en una de las torres más exclusivas de zona norte, sobre calle uruguay, en el corazón de buenavista business park. Ubicación estratégica, con rápida conexión a panamericana y tiempos de viaje eficientes: 16-28 min desde nordelta 22-35 min desde el obelisco el edificio corporativo cuenta con fachadas completamente vidriadas y vistas panorámicas al golf de boulogne, calle uruguay y la autopista. Torre de perímetro libre, desarrollada en 2 subsuelos + pb + 7 pisos, con plaza seca de 800 m², acceso vehicular imperial y hall de recepción en triple altura. Características principales del piso de oficinas: superficie: 449 m² (planta cuadrada de 33,33 m de lado) logrando hasta 40 despachos con vista y luz natural (vidrios piso a techo mod. 1,52 m) altura libre: 2,8 m entre piso técnico y cielorraso núcleo sanitario central con baños y cocina sector bar/comedor oculto al ingreso tecnología y eficiencia energética: dvh con control solar y laminado uv aire frío/calor vrv con compresores inverter luminarias led ascensores con motores de frecuencia variable cargadores eléctricos para autos generador a diésel + ups para oficinas seguridad: monitoreo ip con grabación continua control de acceso con tarjetas y molinetes bunker de seguridad vidrios de seguridad y sistemas antiincendios nfpa comodidades del edificio: 3 ascensores de alta velocidad schindler agua, a/c, energía, cloaca y telecomunicaciones en montantes accesibles piso técnico metálico clase a, sin combustión 2 escaleras independientes con doble puerta valor mensual: usd 21/m² (dólar oficial) + iva expensas y servicios a consultar ideal para empresas que buscan prestigio, conectividad y tecnología en zona norte, en un entorno corporativo con restaurantes y comercios a pasos. Todas las medidas son aproximadas al solo efecto orientativo. Las medidas exactas serán las que surjan del título de propiedad. Las fotografías y videos no son contractuales. No se encuentran incluidos en el precio publicado los equipos de aire acondicionado, electrodomésticos, artefactos de iluminación ni accesorios que pudieran estar mencionados en la descripción o ilustrados en fotografías. Únicamente quedarán incluidos en el precio aquellos ítems que surjan de la reserva a conformar entre las partes. Si hubiera valores de expensas y/o impuestos detallados, los mismos son aproximados y sujetos a modificación. En caso de venta, la operación está sujeta a la tramitación del código de oferta de transferencia de inmuebles (coti) por parte del propietario. Ley 5115 de caba: excepto que en la descripción de la propiedad se indique lo contrario, el edificio puede no contar con rampa para personas con movilidad reducida, y no ser accesible para personas con discapacidades físicas. Premier real estate s.A. Matrículas m. Annoni cucicba 6771 - p. Kaminsky cucicba 7753/cmcpsi 6665. Teléfonos de contacto / . Todas las propiedades que figuran en esta publicación se encuentran a cargo de los profesionales matriculados de premier real estate s.A. Por lo que la intermediación y conclusión de las operaciones serán llevadas exclusivamente por ellos. En cumplimiento de la ley 10.973 de la provincia de buenos aires, ley nacional 25.028, ley nacional 20.266, ley 22.802 de lealtad comercial, ley 24.240 de defensa al consumidor, las normas del código civil y comercial de la nación y constitucionales, los asesores o agentes no ejercen el corretaje inmobiliario. Todas las operaciones inmobiliarias son objeto de intermediación y conclusión por parte de los martilleros y corredores colegiados. Las reservas se toman exclusivamente en la inmobiliaria con los matriculados m. Annoni cucicba 6771 - p. Kaminsky cucicba 7753/cmcpsi 6665.

Contactar
1/39

0

USD 21.900

Uruguay 6900, Piso 4

Oficina en Alquiler en San Fernando Vias / Panamericana, San Fernando

PREMIER REAL ESTATE SA - CPI 67717753 CMCPSI 6665
  • 10 baños
  • 1 año
  • 10 cocheras

ALQUILER Oficina de categoría en Buena Vista San Fernando

Alquiler de oficina buena vista, calle uruguay, en victoria, san fernando edificio de oficinas corporativas clase a+ con un piso de 1043 m2 de superficie y 41 cocheras en buenavista business park. Valor de alquiler mensual de dólar oficial usd 21/m2 dólar + iva. La ubicación conjuga bajo tiempo de viaje en hora pico (por ejemplo: 16-28 minutos desde nordelta y 22-35 minutos desde el obelisco) con un ambiente de negocios y restaurantes propios de puerto madero. Es una torre de perímetro libre con fachadas íntegramente vidriadas, desarrollada en 2 subsuelos + pb + 7 pisos, con vistas privilegiadas al golf de boulogne, la calle central del business park, calle uruguay (edificio johnson), calle don francisco, autopista panamericana. El frente del edificio está sobre una plaza seca de 800 m2 y cuenta con acceso vehicular imperial de cortesía y una recepción en triple altura de gran jerarquía. La planta de oficinas es un cuadrado de 33.33 m de lado con perímetro vidriado de piso a techo modulado en 1.52 m, logrando hasta 40 despachos con vista de 3.03 m de ancho. La altura libre entre piso técnico y cielorraso suspendido es 2.8 m. El núcleo sanitario central incluye amplios baños y cocina, la que se integra con el espacio para el bar/comedor, todo oculto del ingreso a la oficina. El consumo de energía eléctrica se minimiza utilizando doble vidriado hermético (dvh) con cara externa con control solar de última generación y cara interna laminada (control uv), aire acondicionado frío calor vrv con compresores inverter, motores de frecuencia variable para los ascensores y luminarias led. El diseño de la seguridad incluye monitoreo de alarma independiente en cada oficina, uso de vidrios de seguridad en todo el perímetro de la pb y en los palieres de los subsuelos (se acceden sólo con tarjeta), cámaras ip distribuidas en partes comunes con grabación continua, bunker de seguridad y monitoreo de video en la recepción. Características. Oficina comercial. Torre de perímetro libre desarrollada en pb + 7 pisos y 2 subsuelos. Fachadas íntegramente vidriadas (frame) con dvh de alta performance. 41 cocheras, y cocheras de cortesía en pb plaza de entrada de 800 m2 con entrada vehicular imperial . Hall de recepción en triple altura . Seguridad privada 24 horas . Control de acceso con tarjetas y molinetes . Cargadores de autos eléctricos en los subsuelos.. 3 ascensores de alta velocidad (schindler 5500) . Cámaras de seguridad ip y sistema de grabación continua (monitoreo en recepción) . Generador diesel de energía eléctrica, partes comunes y ups de oficinas. . Agua, cloaca, energía eléctrica, a/c y comunicaciones en montantes transitables de fácil acceso . 2 escaleras independientes con doble puerta . Central de alarma, hidrantes y montantes para rociadores contra incendios (grundfos fire system, tableros nfpa) . Planta libres, columnas, piso, y techo de hormigón (desnivel para recibir piso técnico) . Piso técnico metálico (no combustible clase a) . Aire frío/calor vrv independiente. Renovación de aire controlable hasta 21 litros/seg/persona (3 veces la recomendación de la ashrae). Baños y cocinas completos con mesadas de granito y detalles decorativos. Todas las medidas son aproximadas al solo efecto orientativo. Las medidas exactas serán las que surjan del título de propiedad. Las fotografías y videos no son contractuales. No se encuentran incluidos en el precio publicado los equipos de aire acondicionado, electrodomésticos, artefactos de iluminación ni accesorios que pudieran estar mencionados en la descripción o ilustrados en fotografías. Únicamente quedarán incluidos en el precio aquellos ítems que surjan de la reserva a conformar entre las partes. Si hubiera valores de expensas y/o impuestos detallados, los mismos son aproximados y sujetos a modificación. En caso de venta, la operación está sujeta a la tramitación del código de oferta de transferencia de inmuebles (coti) por parte del propietario. Ley 5115 de caba: excepto que en la descripción de la propiedad se indique lo contrario, el edificio puede no contar con rampa para personas con movilidad reducida, y no ser accesible para personas con discapacidades físicas. Premier real estate s.A. Matrículas m. Annoni cucicba 6771 - p. Kaminsky cucicba 7753/cmcpsi 6665. Teléfonos de contacto / . Todas las propiedades que figuran en esta publicación se encuentran a cargo de los profesionales matriculados de premier real estate s.A. Por lo que la intermediación y conclusión de las operaciones serán llevadas exclusivamente por ellos. En cumplimiento de la ley 10.973 de la provincia de buenos aires, ley nacional 25.028, ley nacional 20.266, ley 22.802 de lealtad comercial, ley 24.240 de defensa al consumidor, las normas del código civil y comercial de la nación y constitucionales, los asesores o agentes no ejercen el corretaje inmobiliario. Todas las operaciones inmobiliarias son objeto de intermediación y conclusión por parte de los martilleros y corredores colegiados. Las reservas se toman exclusivamente en la inmobiliaria con los matriculados m. Annoni cucicba 6771 - p. Kaminsky cucicba 7753/cmcpsi 6665.

Contactar
1/17

0

USD 9.429

Don francisco 2925 2900, Piso 1

Oficina en Alquiler en San Fernando Vias / Panamericana, San Fernando

PREMIER REAL ESTATE SA - CPI 67717753 CMCPSI 6665
  • 1 año
  • 10 cocheras
  • seguridad

ALQUILER Oficina de categoría en Buena Vista San Fernando Calle Uruguay

Alquiler de oficina buena vista, calle uruguay, en victoria, san fernando edificio de oficinas corporativas clase a+ con un piso de 449 m2 de superficie y 18 cocheras, en buenavista business park. Valor de alquiler mensual de dólar oficial usd 21/m2 dólar + iva. La ubicación conjuga bajo tiempo de viaje en hora pico (por ejemplo: 16-28 minutos desde nordelta y 22-35 minutos desde el obelisco) con un ambiente de negocios y restaurantes propios de puerto madero. Es una torre de perímetro libre con fachadas íntegramente vidriadas, desarrollada en 2 subsuelos + pb + 7 pisos, con vistas privilegiadas al golf de boulogne, la calle central del business park, calle uruguay (edificio johnson), calle don francisco, autopista panamericana. El frente del edificio está sobre una plaza seca de 800 m2 y cuenta con acceso vehicular imperial de cortesía y una recepción en triple altura de gran jerarquía. La planta de oficinas es un cuadrado de 33.33 m de lado con perímetro vidriado de piso a techo modulado en 1.52 m, logrando hasta 40 despachos con vista de 3.03 m de ancho. La altura libre entre piso técnico y cielorraso suspendido es 2.8 m. El núcleo sanitario central incluye amplios baños y cocina, la que se integra con el espacio para el bar/comedor, todo oculto del ingreso a la oficina. El consumo de energía eléctrica se minimiza utilizando doble vidriado hermético (dvh) con cara externa con control solar de última generación y cara interna laminada (control uv), aire acondicionado frío calor vrv con compresores inverter, motores de frecuencia variable para los ascensores y luminarias led. El diseño de la seguridad incluye monitoreo de alarma independiente en cada oficina, uso de vidrios de seguridad en todo el perímetro de la pb y en los palieres de los subsuelos (se acceden sólo con tarjeta), cámaras ip distribuidas en partes comunes con grabación continua, bunker de seguridad y monitoreo de video en la recepción. Características. Oficina comercial. Torre de perímetro libre desarrollada en pb + 7 pisos y 2 subsuelos. Fachadas íntegramente vidriadas (frame) con dvh de alta performance. 41 cocheras, y cocheras de cortesía en pb plaza de entrada de 800 m2 con entrada vehicular imperial . Hall de recepción en triple altura . Seguridad privada 24 horas . Control de acceso con tarjetas y molinetes . Cargadores de autos eléctricos en los subsuelos. . 3 ascensores de alta velocidad (schindler 5500) . Cámaras de seguridad ip y sistema de grabación continua (monitoreo en recepción) . Generador diesel de energía eléctrica, partes comunes y ups de oficinas. . Agua, cloaca, energía eléctrica, a/c y comunicaciones en montantes transitables de fácil acceso . 2 escaleras independientes con doble puerta . Central de alarma, hidrantes y montantes para rociadores contra incendios (grundfos fire system, tableros nfpa) . Planta libres, columnas, piso, y techo de hormigón (desnivel para recibir piso técnico) . Piso técnico metálico (no combustible clase a) . Aire frío/calor vrv independiente .Renovación de aire controlable hasta 21 litros/seg/persona (3 veces la recomendación de la ashrae). . Baños y cocinas completos con mesadas de granito y detalles decorativos. Todas las medidas son aproximadas al solo efecto orientativo. Las medidas exactas serán las que surjan del título de propiedad. Las fotografías y videos no son contractuales. No se encuentran incluidos en el precio publicado los equipos de aire acondicionado, electrodomésticos, artefactos de iluminación ni accesorios que pudieran estar mencionados en la descripción o ilustrados en fotografías. Únicamente quedarán incluidos en el precio aquellos ítems que surjan de la reserva a conformar entre las partes. Si hubiera valores de expensas y/o impuestos detallados, los mismos son aproximados y sujetos a modificación. En caso de venta, la operación está sujeta a la tramitación del código de oferta de transferencia de inmuebles (coti) por parte del propietario. Ley 5115 de caba: excepto que en la descripción de la propiedad se indique lo contrario, el edificio puede no contar con rampa para personas con movilidad reducida, y no ser accesible para personas con discapacidades físicas. Premier real estate s.A. Matrículas m. Annoni cucicba 6771 - p. Kaminsky cucicba 7753/cmcpsi 6665. Teléfonos de contacto / . Todas las propiedades que figuran en esta publicación se encuentran a cargo de los profesionales matriculados de premier real estate s.A. Por lo que la intermediación y conclusión de las operaciones serán llevadas exclusivamente por ellos. En cumplimiento de la ley 10.973 de la provincia de buenos aires, ley nacional 25.028, ley nacional 20.266, ley 22.802 de lealtad comercial, ley 24.240 de defensa al consumidor, las normas del código civil y comercial de la nación y constitucionales, los asesores o agentes no ejercen el corretaje inmobiliario. Todas las operaciones inmobiliarias son objeto de intermediación y conclusión por parte de los martilleros y corredores colegiados. Las reservas se toman exclusivamente en la inmobiliaria con los matriculados m. Annoni cucicba 6771 - p. Kaminsky cucicba 7753/cmcpsi 6665.

Contactar
1/9

0

USD 21.903

Uruguay Y Don Francisco

Oficina en Alquiler en San Fernando, Buenos Aires

Bridge Argentina
  • 1.043 m² cubie.
  • A Estrenar
  • 41 cocheras

Oficina en Alquiler Edificio P8 Buenavista

Edificio p8 ubicación estratégica en buenavista sobre el corredor norte de la autopista panamericana con un ambiente de negocios y restaurantes de categoría. Características del edificio: - torre de perímetro libre desarrollada en pb + 7 pisos y 2 subsuelos, 333 cocheras con rampa doble, 73 en pb (20 de cortesía) - plaza de entrada de 800 m2 con entrada vehicular imperial, hall de recepción en triple altura - seguridad privada 24 horas, control de acceso con molinetes, cámaras de seguridad ip y sistema de grabación continua - helipuerto en la terraza - 3 ascensores de alta velocidad (schindler 5500) - fachadas íntegramente vidriadas (frame) con dvh de alta performance (saint-gobain glass cool lite ks ii 138) - generador diesel de energía eléctrica, partes comunes y ups de oficinas - cargadores de autos eléctricos en los subsuelos - 2 escaleras independientes con doble puerta características de la oficina: - central de alarma, detectores, hidrantes y montantes para rociadores contra incendios (grundfos fire system, tableros nfpa) - piso técnico metálico (no combustible clase a) - aire frío/calor vrv independiente (hisense vrf hi-flexi s mavo series and s heat recovery) - renovación de aire controlable hasta 21 litros/seg/persona (3 veces la recomendación de la ashrae) - cielorraso suspendido en planta libre (2.8 m altura) gastos aprox: usd 4 x m2 (bna) hernán pisarenko c.S.I. 6839 / c.P.I 8274 zufriategui 627, piso 5, vicente lópez, gba cerrito 1070, piso 11 dpto. 136, caba para el caso de publicación de venta, dejamos asentado que la venta de este inmueble está sujeta a la tramitación del código de transferencia de inmuebles (coti), de conformidad con la normativa vigente (res. Afip 2371/08, 2439/08 y ccs.) Por parte del propietario. Ley 5859 para los casos de locaciones de inmuebles con destino habitacional en los que el locatario sea una persona física, el monto máximo de la comisión a cobrar será el equivalente al cuatro con quince centésimos por ciento (4,15%) del valor total del respectivo contrato, a cargo del locador. Este aviso cumple con lo regulado en la ley 5115 de c.A.B.A. Los avisos publicados por corredores inmobiliarios por cualquier medio gráfico o informático, que promuevan operaciones inmobiliarias, deberán contener información acerca de las condiciones de accesibilidad para las personas con discapacidades físicas.

Contactar
1/9

0

USD 21.903

Uruguay Y Don Francisco

Oficina en Alquiler en San Fernando, Buenos Aires

Bridge Argentina
  • 1.043 m² cubie.
  • A Estrenar
  • 41 cocheras

Oficina en Alquiler Edificio P8 Buenavista

Edificio p8 ubicación estratégica en buenavista sobre el corredor norte de la autopista panamericana con un ambiente de negocios y restaurantes de categoría. Características del edificio: - torre de perímetro libre desarrollada en pb + 7 pisos y 2 subsuelos, 333 cocheras con rampa doble, 73 en pb (20 de cortesía) - plaza de entrada de 800 m2 con entrada vehicular imperial, hall de recepción en triple altura - seguridad privada 24 horas, control de acceso con molinetes, cámaras de seguridad ip y sistema de grabación continua - helipuerto en la terraza - 3 ascensores de alta velocidad (schindler 5500) - fachadas íntegramente vidriadas (frame) con dvh de alta performance (saint-gobain glass cool lite ks ii 138) - generador diesel de energía eléctrica, partes comunes y ups de oficinas - cargadores de autos eléctricos en los subsuelos - 2 escaleras independientes con doble puerta características de la oficina: - central de alarma, detectores, hidrantes y montantes para rociadores contra incendios (grundfos fire system, tableros nfpa) - piso técnico metálico (no combustible clase a) - aire frío/calor vrv independiente (hisense vrf hi-flexi s mavo series and s heat recovery) - renovación de aire controlable hasta 21 litros/seg/persona (3 veces la recomendación de la ashrae) - cielorraso suspendido en planta libre (2.8 m altura) gastos aprox: usd 4 x m2 (bna) hernán pisarenko c.S.I. 6839 / c.P.I 8274 zufriategui 627, piso 5, vicente lópez, gba cerrito 1070, piso 11 dpto. 136, caba para el caso de publicación de venta, dejamos asentado que la venta de este inmueble está sujeta a la tramitación del código de transferencia de inmuebles (coti), de conformidad con la normativa vigente (res. Afip 2371/08, 2439/08 y ccs.) Por parte del propietario. Ley 5859 para los casos de locaciones de inmuebles con destino habitacional en los que el locatario sea una persona física, el monto máximo de la comisión a cobrar será el equivalente al cuatro con quince centésimos por ciento (4,15%) del valor total del respectivo contrato, a cargo del locador. Este aviso cumple con lo regulado en la ley 5115 de c.A.B.A. Los avisos publicados por corredores inmobiliarios por cualquier medio gráfico o informático, que promuevan operaciones inmobiliarias, deberán contener información acerca de las condiciones de accesibilidad para las personas con discapacidades físicas.

Contactar
1/9

0

USD 5.680

Uruguay Y Don Francisco

Oficina en Alquiler en San Fernando, Buenos Aires

Bridge Argentina
  • 284 m² cubie.
  • A Estrenar
  • 10 cocheras

Oficina en Alquiler Edificio P8 Buenavista

Edificio p8 ubicación estratégica en buenavista sobre el corredor norte de la autopista panamericana con un ambiente de negocios y restaurantes de categoría. Características del edificio: - torre de perímetro libre desarrollada en pb + 7 pisos y 2 subsuelos, 333 cocheras con rampa doble, 73 en pb (20 de cortesía) - plaza de entrada de 800 m2 con entrada vehicular imperial, hall de recepción en triple altura - seguridad privada 24 horas, control de acceso con molinetes, cámaras de seguridad ip y sistema de grabación continua - helipuerto en la terraza - 3 ascensores de alta velocidad (schindler 5500) - fachadas íntegramente vidriadas (frame) con dvh de alta performance (saint-gobain glass cool lite ks ii 138) - generador diesel de energía eléctrica, partes comunes y ups de oficinas - cargadores de autos eléctricos en los subsuelos - 2 escaleras independientes con doble puerta características de la oficina: - central de alarma, detectores, hidrantes y montantes para rociadores contra incendios (grundfos fire system, tableros nfpa) - piso técnico metálico (no combustible clase a) - aire frío/calor vrv independiente (hisense vrf hi-flexi s mavo series and s heat recovery) - renovación de aire controlable hasta 21 litros/seg/persona (3 veces la recomendación de la ashrae) - cielorraso suspendido en planta libre (2.8 m altura) gastos aprox: usd 4 x m2 (bna) hernán pisarenko c.S.I. 6839 / c.P.I 8274 zufriategui 627, piso 5, vicente lópez, gba cerrito 1070, piso 11 dpto. 136, caba para el caso de publicación de venta, dejamos asentado que la venta de este inmueble está sujeta a la tramitación del código de transferencia de inmuebles (coti), de conformidad con la normativa vigente (res. Afip 2371/08, 2439/08 y ccs.) Por parte del propietario. Ley 5859 para los casos de locaciones de inmuebles con destino habitacional en los que el locatario sea una persona física, el monto máximo de la comisión a cobrar será el equivalente al cuatro con quince centésimos por ciento (4,15%) del valor total del respectivo contrato, a cargo del locador. Este aviso cumple con lo regulado en la ley 5115 de c.A.B.A. Los avisos publicados por corredores inmobiliarios por cualquier medio gráfico o informático, que promuevan operaciones inmobiliarias, deberán contener información acerca de las condiciones de accesibilidad para las personas con discapacidades físicas.

Contactar
1/12

1

USD 9.450

Uruguay al 6900

Oficina en Alquiler en San Fernando, Buenos Aires

CBRE
  • 450 m² cubie.
  • A Estrenar
  • 10 cocheras

1° Piso - P8 Buenavista Business Park

Ubicación estratégica en el corredor norte sobre la autopista panamericana., Conjuga bajo tiempo de viaje en hora pico (22 minutos desde el obelisco, nordelta y/o el acceso oeste) con un ambiente de negocios y restaurantes de categoría. Características: - torre de perímetro libre desarrollada en pb + 7 pisos y 2 subsuelos, 333 cocheras con rampa doble, 73 en pb (20 de cortesía) - plaza de entrada de 800 m2 con entrada vehicular imperial, hall de recepción en triple altura - seguridad privada 24 horas, control de acceso con molinetes, cámaras de seguridad ip y sistema de grabación continua - helipuerto en la terraza - 3 ascensores de alta velocidad (schindler 5500) - fachadas íntegramente vidriadas (frame) con dvh de alta performance (saint-gobain glass cool lite ks ii 138) - generador diesel de energía eléctrica, partes comunes y ups de oficinas - cargadores de autos eléctricos en los subsuelos - 2 escaleras independientes con doble puerta - central de alarma, detectores, hidrantes y montantes para rociadores contra incendios (grundfos fire system, tableros nfpa) - piso técnico metálico (no combustible clase a) - aire frío/calor vrv independiente (hisense vrf hi-flexi s mavo series and s heat recovery) - renovación de aire controlable hasta 21 litros/seg/persona (3 veces la recomendación de la ashrae) - cielorraso suspendido en planta libre (2.8 m altura) cbre ha asumido que todos los documentos, datos e información proporcionados por, o a nombre del cliente, dueño del inmueble, o el representante del dueño son exactos, correctos a menos que se indique expresamente lo contrario en el informe. Cbre no asume ninguna responsabilidad (incluyendo cualquier obligación de procurar la misma) respecto a todos los documentos, datos o informaciones que no proporcionan a cbre o que se hubieran proporcionado erróneamente, incluyendo sin limitación cualquier inspección, planos de mensura o permisos de ocupación. Cucicba no2961 carlos mariano gowland acosta | cmcpsi no6574 iván jackson

Contactar
1/12

1

USD 21.903

Uruguay al 6900

Oficina en Alquiler en San Fernando, Buenos Aires

CBRE
  • 1.043 m² cubie.
  • A Estrenar
  • 41 cocheras

1° Piso - P8 Buenavista Business Park

Ubicación estratégica en el corredor norte sobre la autopista panamericana., Conjuga bajo tiempo de viaje en hora pico (22 minutos desde el obelisco, nordelta y/o el acceso oeste) con un ambiente de negocios y restaurantes de categoría. Características: - torre de perímetro libre desarrollada en pb + 7 pisos y 2 subsuelos, 333 cocheras con rampa doble, 73 en pb (20 de cortesía) - plaza de entrada de 800 m2 con entrada vehicular imperial, hall de recepción en triple altura - seguridad privada 24 horas, control de acceso con molinetes, cámaras de seguridad ip y sistema de grabación continua - helipuerto en la terraza - 3 ascensores de alta velocidad (schindler 5500) - fachadas íntegramente vidriadas (frame) con dvh de alta performance (saint-gobain glass cool lite ks ii 138) - generador diesel de energía eléctrica, partes comunes y ups de oficinas - cargadores de autos eléctricos en los subsuelos - 2 escaleras independientes con doble puerta - central de alarma, detectores, hidrantes y montantes para rociadores contra incendios (grundfos fire system, tableros nfpa) - piso técnico metálico (no combustible clase a) - aire frío/calor vrv independiente (hisense vrf hi-flexi s mavo series and s heat recovery) - renovación de aire controlable hasta 21 litros/seg/persona (3 veces la recomendación de la ashrae) - cielorraso suspendido en planta libre (2.8 m altura) para más información: nicolás ferrero broker cbre ha asumido que todos los documentos, datos e información proporcionados por, o a nombre del cliente, dueño del inmueble, o el representante del dueño son exactos, correctos a menos que se indique expresamente lo contrario en el informe. Cbre no asume ninguna responsabilidad (incluyendo cualquier obligación de procurar la misma) respecto a todos los documentos, datos o informaciones que no proporcionan a cbre o que se hubieran proporcionado erróneamente, incluyendo sin limitación cualquier inspección, planos de mensura o permisos de ocupación. Cucicba no2961 carlos mariano gowland acosta | cmcpsi no6574 iván jackson

Contactar
1/24

0

USD 1.485

Uruguay al 6900 4° piso UF 01 P8 Buenavista

Oficina en Alquiler en San Fernando, Buenos Aires

LJ RAMOS BROKERS INMOBILIARIOS
  • 55 m² cubie.
  • A Estrenar
  • 2 cocheras

Alquiler de oficina de 55 m2 en Buenavista

Edificio de oficinas corporativas clase a+ en buenavista business park. Oficina en planta libre. Se entrega con piso técnico y equipos de aire acondicionado frío/calor vrv, una cochera cada 30 m2. Cada oficina se complementa con un área común tipo coworking y espacios de uso social, ampliando su funcionalidad. Cocina equipada y baños compartidos. Valor de alquiler mensual usd 27/m2 + iva, dólar oficial. La ubicación conjuga bajo tiempo de viaje en hora pico (por ejemplo: 16-28 minutos desde nordelta y 22-35 minutos desde el obelisco) con un ambiente de negocios y restaurantes propios de puerto madero. Es una torre de perímetro libre con fachadas íntegramente vidriadas, desarrollada en 2 subsuelos + pb + 7 pisos, con vistas privilegiadas al golf de boulogne, la calle central del business park, calle uruguay (edificio johnson), calle don francisco, autopista panamericana. El frente del edificio está sobre una plaza seca de 800 m2 y cuenta con acceso vehicular imperial de cortesía y una recepción en triple altura de gran jerarquía. La planta de oficinas es un cuadrado de 33.33 m de lado con perímetro vidriado de piso a techo modulado en 1.52 m. La altura libre entre piso técnico y cielorraso suspendido es 2.8 m. El consumo de energía eléctrica se minimiza utilizando doble vidriado hermético (dvh) con cara externa con control solar de última generación y cara interna laminada (control uv), aire acondicionado frío calor vrv con compresores inverter, motores de frecuencia variable para los ascensores y luminarias led. El diseño de la seguridad incluye monitoreo de alarma independiente en cada oficina, uso de vidrios de seguridad en todo el perímetro de la pb y en los palieres de los subsuelos (se acceden sólo con tarjeta), cámaras ip distribuidas en partes comunes con grabación continua, bunker de seguridad y monitoreo de video en la recepción. Características . Oficina comercial . Torre de perímetro libre desarrollada en pb + 7 pisos y 2 subsuelos . Fachadas íntegramente vidriadas (frame) con dvh de alta performance . 41 cocheras, y cocheras de cortesía en pb . Plaza de entrada de 800 m2 con entrada vehicular imperial . Hall de recepción en triple altura . Seguridad privada 24 horas . Control de acceso con tarjetas y molinetes . Cargadores de autos eléctricos en los subsuelos. . 3 ascensores de alta velocidad (schindler 5500) . Cámaras de seguridad ip y sistema de grabación continua (monitoreo en recepción) . Generador diesel de energía eléctrica, partes comunes y ups de oficinas. . Agua, cloaca, energía eléctrica, a/c y comunicaciones en montantes transitables de fácil acceso . 2 escaleras independientes con doble puerta . Central de alarma, hidrantes y montantes para rociadores contra incendios (grundfos fire system, tableros nfpa) . Planta libres, columnas, piso, y techo de hormigón (desnivel para recibir piso técnico) . Piso técnico metálico (no combustible clase a) . Aire frío/calor vrv independiente. Renovación de aire controlable hasta 21 litros/seg/persona (3 veces la recomendación de la ashrae) . Baños y cocinas completos con mesadas de granito y detalles decorativos.

Contactar
1/22

56

USD 18.800

Don Francisco , Piso 4

Oficina en Alquiler en San Fernando Vias / Panamericana, San Fernando

BLUME PROPIEDADES
  • 1.049 m² cubie.
  • 4 baños
  • A Estrenar

Piso de Oficina en Alquiler Edificio Buenavista Business Park - a Estrenar

Edificio de oficinas corporativas clase a+. 1043 m2 de superficie rentable con 43 cocheras en buenavista business park. Es una torre de perímetro libre con fachadas íntegramente vidriadas, desarrollada en 2 subsuelos + pb + 7 pisos, con vistas privilegiadas al golf de boulogne, la calle central del business park, calle uruguay (edificio johnson), calle don francisco, autopista panamericana. El frente del edificio está sobre una plaza seca de 800 m2 y cuenta con acceso vehicular imperial de cortesía y una recepción en triple altura de gran jerarquía. La planta de oficinas es un cuadrado de 33.33 m de lado con perímetro vidriado de piso a techo modulado en 1.52 m, logrando hasta 40 despachos con vista de 3.03 m de ancho (17 en los semipisos). La altura libre entre piso técnico y cielorraso suspendido es 2.8 m. El núcleo sanitario central incluye amplios baños y cocina, la que se integra con el espacio para el bar/comedor, todo oculto del ingreso a la oficina. El consumo de energía eléctrica se minimiza utilizando doble vidriado hermético (dvh) con cara externa con control solar de última generación y cara interna laminada (control uv), aire acondicionado frío calor vrv con compresores invertir, motores de frecuencia variable para los ascensores y luminarias led. El diseño de la seguridad incluye monitoreo de alarma independiente en cada oficina, uso de vidrios de seguridad en todo el perímetro de la pb y en los palieres de los subsuelos (se acceden sólo con tarjeta), cámaras ip distribuidas en partes comunes con grabación continua, bunker de seguridad y monitoreo de video en la recepción. El desarrollo fue realizado por p8 buenavista s.A. El proyecto y dirección estuvieron a cargo del estudio de arquitectura speziale-linares.

Contactar
1/9

0

USD 9.400

Uruguay Y Don Francisco

Oficina en Alquiler en San Fernando, Buenos Aires

Bridge Argentina
  • 448 m² cubie.
  • A Estrenar
  • 18 cocheras

Oficina en Alquiler Edificio P8 Buenavista

Edificio p8 ubicación estratégica en buenavista sobre el corredor norte de la autopista panamericana con un ambiente de negocios y restaurantes de categoría. Características del edificio: - torre de perímetro libre desarrollada en pb + 7 pisos y 2 subsuelos, 333 cocheras con rampa doble, 73 en pb (20 de cortesía) - plaza de entrada de 800 m2 con entrada vehicular imperial, hall de recepción en triple altura - seguridad privada 24 horas, control de acceso con molinetes, cámaras de seguridad ip y sistema de grabación continua - helipuerto en la terraza - 3 ascensores de alta velocidad (schindler 5500) - fachadas íntegramente vidriadas (frame) con dvh de alta performance (saint-gobain glass cool lite ks ii 138) - generador diesel de energía eléctrica, partes comunes y ups de oficinas - cargadores de autos eléctricos en los subsuelos - 2 escaleras independientes con doble puerta características de la oficina: - central de alarma, detectores, hidrantes y montantes para rociadores contra incendios (grundfos fire system, tableros nfpa) - piso técnico metálico (no combustible clase a) - aire frío/calor vrv independiente (hisense vrf hi-flexi s mavo series and s heat recovery) - renovación de aire controlable hasta 21 litros/seg/persona (3 veces la recomendación de la ashrae) - cielorraso suspendido en planta libre (2.8 m altura) gastos aprox: usd 4 x m2 (bna) hernán pisarenko c.S.I. 6839 / c.P.I 8274 zufriategui 627, piso 5, vicente lópez, gba cerrito 1070, piso 11 dpto. 136, caba para el caso de publicación de venta, dejamos asentado que la venta de este inmueble está sujeta a la tramitación del código de transferencia de inmuebles (coti), de conformidad con la normativa vigente (res. Afip 2371/08, 2439/08 y ccs.) Por parte del propietario. Ley 5859 para los casos de locaciones de inmuebles con destino habitacional en los que el locatario sea una persona física, el monto máximo de la comisión a cobrar será el equivalente al cuatro con quince centésimos por ciento (4,15%) del valor total del respectivo contrato, a cargo del locador. Este aviso cumple con lo regulado en la ley 5115 de c.A.B.A. Los avisos publicados por corredores inmobiliarios por cualquier medio gráfico o informático, que promuevan operaciones inmobiliarias, deberán contener información acerca de las condiciones de accesibilidad para las personas con discapacidades físicas.

Contactar
1/24

0

USD 1.755

Uruguay al 6900 4° piso UF 02 P8 Buenavista

Oficina en Alquiler en San Fernando, Buenos Aires

LJ RAMOS BROKERS INMOBILIARIOS
  • 65 m² cubie.
  • A Estrenar
  • 2 cocheras

Alquiler de oficina de 65 m2 en Buenavista

Edificio de oficinas corporativas clase a+ en buenavista business park. Oficina en planta libre. Se entrega con piso técnico y equipos de aire acondicionado frío/calor vrv, una cochera cada 30 m2. Cada oficina se complementa con un área común tipo coworking y espacios de uso social, ampliando su funcionalidad. Cocina equipada y baños compartidos. Valor de alquiler mensual usd 27/m2 + iva, dólar oficial. La ubicación conjuga bajo tiempo de viaje en hora pico (por ejemplo: 16-28 minutos desde nordelta y 22-35 minutos desde el obelisco) con un ambiente de negocios y restaurantes propios de puerto madero. Es una torre de perímetro libre con fachadas íntegramente vidriadas, desarrollada en 2 subsuelos + pb + 7 pisos, con vistas privilegiadas al golf de boulogne, la calle central del business park, calle uruguay (edificio johnson), calle don francisco, autopista panamericana. El frente del edificio está sobre una plaza seca de 800 m2 y cuenta con acceso vehicular imperial de cortesía y una recepción en triple altura de gran jerarquía. La planta de oficinas es un cuadrado de 33.33 m de lado con perímetro vidriado de piso a techo modulado en 1.52 m. La altura libre entre piso técnico y cielorraso suspendido es 2.8 m. El consumo de energía eléctrica se minimiza utilizando doble vidriado hermético (dvh) con cara externa con control solar de última generación y cara interna laminada (control uv), aire acondicionado frío calor vrv con compresores inverter, motores de frecuencia variable para los ascensores y luminarias led. El diseño de la seguridad incluye monitoreo de alarma independiente en cada oficina, uso de vidrios de seguridad en todo el perímetro de la pb y en los palieres de los subsuelos (se acceden sólo con tarjeta), cámaras ip distribuidas en partes comunes con grabación continua, bunker de seguridad y monitoreo de video en la recepción. Características . Oficina comercial . Torre de perímetro libre desarrollada en pb + 7 pisos y 2 subsuelos . Fachadas íntegramente vidriadas (frame) con dvh de alta performance . 41 cocheras, y cocheras de cortesía en pb . Plaza de entrada de 800 m2 con entrada vehicular imperial . Hall de recepción en triple altura . Seguridad privada 24 horas . Control de acceso con tarjetas y molinetes . Cargadores de autos eléctricos en los subsuelos. . 3 ascensores de alta velocidad (schindler 5500) . Cámaras de seguridad ip y sistema de grabación continua (monitoreo en recepción) . Generador diesel de energía eléctrica, partes comunes y ups de oficinas. . Agua, cloaca, energía eléctrica, a/c y comunicaciones en montantes transitables de fácil acceso . 2 escaleras independientes con doble puerta . Central de alarma, hidrantes y montantes para rociadores contra incendios (grundfos fire system, tableros nfpa) . Planta libres, columnas, piso, y techo de hormigón (desnivel para recibir piso técnico) . Piso técnico metálico (no combustible clase a) . Aire frío/calor vrv independiente. Renovación de aire controlable hasta 21 litros/seg/persona (3 veces la recomendación de la ashrae) . Baños y cocinas completos con mesadas de granito y detalles decorativos.

Contactar
1/24

0

USD 3.915

Uruguay al 6900 4° piso UF 04 P8 Buenavista

Oficina en Alquiler en San Fernando, Buenos Aires

LJ RAMOS BROKERS INMOBILIARIOS
  • 145 m² cubie.
  • A Estrenar
  • 4 cocheras

Alquiler de oficina de 145 m2 en Buenavista

Edificio de oficinas corporativas clase a+ en buenavista business park. Oficina en planta libre. Se entrega con piso técnico y equipos de aire acondicionado frío/calor vrv, una cochera cada 30 m2. Cada oficina se complementa con un área común tipo coworking y espacios de uso social, ampliando su funcionalidad. Cocina equipada y baños compartidos. Valor de alquiler mensual usd 27/m2 + iva, dólar oficial. La ubicación conjuga bajo tiempo de viaje en hora pico (por ejemplo: 16-28 minutos desde nordelta y 22-35 minutos desde el obelisco) con un ambiente de negocios y restaurantes propios de puerto madero. Es una torre de perímetro libre con fachadas íntegramente vidriadas, desarrollada en 2 subsuelos + pb + 7 pisos, con vistas privilegiadas al golf de boulogne, la calle central del business park, calle uruguay (edificio johnson), calle don francisco, autopista panamericana. El frente del edificio está sobre una plaza seca de 800 m2 y cuenta con acceso vehicular imperial de cortesía y una recepción en triple altura de gran jerarquía. La planta de oficinas es un cuadrado de 33.33 m de lado con perímetro vidriado de piso a techo modulado en 1.52 m. La altura libre entre piso técnico y cielorraso suspendido es 2.8 m. El consumo de energía eléctrica se minimiza utilizando doble vidriado hermético (dvh) con cara externa con control solar de última generación y cara interna laminada (control uv), aire acondicionado frío calor vrv con compresores inverter, motores de frecuencia variable para los ascensores y luminarias led. El diseño de la seguridad incluye monitoreo de alarma independiente en cada oficina, uso de vidrios de seguridad en todo el perímetro de la pb y en los palieres de los subsuelos (se acceden sólo con tarjeta), cámaras ip distribuidas en partes comunes con grabación continua, bunker de seguridad y monitoreo de video en la recepción. Características . Oficina comercial . Torre de perímetro libre desarrollada en pb + 7 pisos y 2 subsuelos . Fachadas íntegramente vidriadas (frame) con dvh de alta performance . 41 cocheras, y cocheras de cortesía en pb . Plaza de entrada de 800 m2 con entrada vehicular imperial . Hall de recepción en triple altura . Seguridad privada 24 horas . Control de acceso con tarjetas y molinetes . Cargadores de autos eléctricos en los subsuelos. . 3 ascensores de alta velocidad (schindler 5500) . Cámaras de seguridad ip y sistema de grabación continua (monitoreo en recepción) . Generador diesel de energía eléctrica, partes comunes y ups de oficinas. . Agua, cloaca, energía eléctrica, a/c y comunicaciones en montantes transitables de fácil acceso . 2 escaleras independientes con doble puerta . Central de alarma, hidrantes y montantes para rociadores contra incendios (grundfos fire system, tableros nfpa) . Planta libres, columnas, piso, y techo de hormigón (desnivel para recibir piso técnico) . Piso técnico metálico (no combustible clase a) . Aire frío/calor vrv independiente. Renovación de aire controlable hasta 21 litros/seg/persona (3 veces la recomendación de la ashrae) . Baños y cocinas completos con mesadas de granito y detalles decorativos.

Contactar
1/24

0

USD 2.889

Uruguay al 6900 4° piso UF 05 P8 Buenavista

Oficina en Alquiler en San Fernando, Buenos Aires

LJ RAMOS BROKERS INMOBILIARIOS
  • 107 m² cubie.
  • A Estrenar
  • 3 cocheras

Alquiler de oficina de 107 m2 en Buenavista

Edificio de oficinas corporativas clase a+ en buenavista business park. Oficina en planta libre. Se entrega con piso técnico y equipos de aire acondicionado frío/calor vrv, una cochera cada 30 m2. Cada oficina se complementa con un área común tipo coworking y espacios de uso social, ampliando su funcionalidad. Cocina equipada y baños compartidos. Valor de alquiler mensual usd 27/m2 + iva, dólar oficial. La ubicación conjuga bajo tiempo de viaje en hora pico (por ejemplo: 16-28 minutos desde nordelta y 22-35 minutos desde el obelisco) con un ambiente de negocios y restaurantes propios de puerto madero. Es una torre de perímetro libre con fachadas íntegramente vidriadas, desarrollada en 2 subsuelos + pb + 7 pisos, con vistas privilegiadas al golf de boulogne, la calle central del business park, calle uruguay (edificio johnson), calle don francisco, autopista panamericana. El frente del edificio está sobre una plaza seca de 800 m2 y cuenta con acceso vehicular imperial de cortesía y una recepción en triple altura de gran jerarquía. La planta de oficinas es un cuadrado de 33.33 m de lado con perímetro vidriado de piso a techo modulado en 1.52 m. La altura libre entre piso técnico y cielorraso suspendido es 2.8 m. El consumo de energía eléctrica se minimiza utilizando doble vidriado hermético (dvh) con cara externa con control solar de última generación y cara interna laminada (control uv), aire acondicionado frío calor vrv con compresores inverter, motores de frecuencia variable para los ascensores y luminarias led. El diseño de la seguridad incluye monitoreo de alarma independiente en cada oficina, uso de vidrios de seguridad en todo el perímetro de la pb y en los palieres de los subsuelos (se acceden sólo con tarjeta), cámaras ip distribuidas en partes comunes con grabación continua, bunker de seguridad y monitoreo de video en la recepción. Características . Oficina comercial . Torre de perímetro libre desarrollada en pb + 7 pisos y 2 subsuelos . Fachadas íntegramente vidriadas (frame) con dvh de alta performance . 41 cocheras, y cocheras de cortesía en pb . Plaza de entrada de 800 m2 con entrada vehicular imperial . Hall de recepción en triple altura . Seguridad privada 24 horas . Control de acceso con tarjetas y molinetes . Cargadores de autos eléctricos en los subsuelos. . 3 ascensores de alta velocidad (schindler 5500) . Cámaras de seguridad ip y sistema de grabación continua (monitoreo en recepción) . Generador diesel de energía eléctrica, partes comunes y ups de oficinas. . Agua, cloaca, energía eléctrica, a/c y comunicaciones en montantes transitables de fácil acceso . 2 escaleras independientes con doble puerta . Central de alarma, hidrantes y montantes para rociadores contra incendios (grundfos fire system, tableros nfpa) . Planta libres, columnas, piso, y techo de hormigón (desnivel para recibir piso técnico) . Piso técnico metálico (no combustible clase a) . Aire frío/calor vrv independiente. Renovación de aire controlable hasta 21 litros/seg/persona (3 veces la recomendación de la ashrae) . Baños y cocinas completos con mesadas de granito y detalles decorativos.

Contactar