TUCUMAN al 600

USD 180.000

Venta en Microcentro, Centro

+ $200.000 expensas

USD 180.000

+ $200.000 expensas
  • Oficina

  • 240 m² Cubierta

  • 50 años

  • Muy Bueno

OFICINAS - OFICINAS - MICROCENTRO (COMERCIAL), CAPITAL FEDERAL

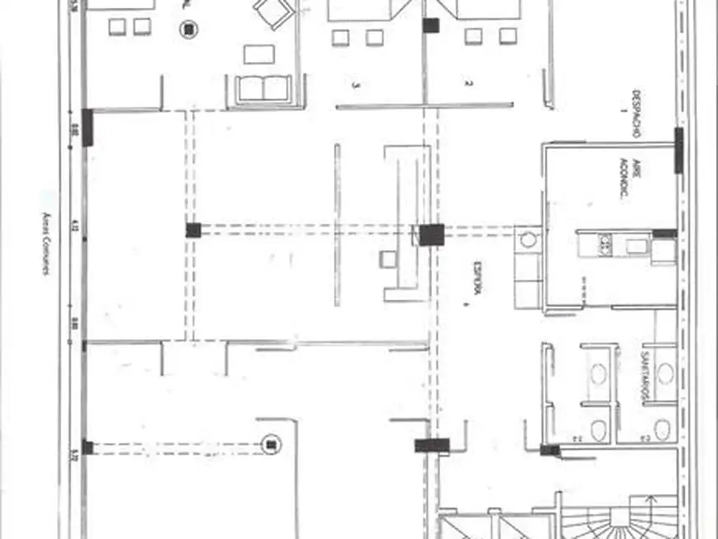
JUSTO EN LA ESQUINA DE FLORIDA Y TUCUMANREGIA PLANTA DE OFICINAS. 240 M2. TODO AL FRENTE. MUY LUMINOSA Y EN MUY BUEN ESTADO..AMPLIA RECEPCION. 6 DESPACHOS. SALA DE REUNIONES,, RACK INFORMATICO  Y OTRAS INSTALACIONES..AUDITORIO.SANITARIOS AMBOS SEXOS. COCINA.PISO TECNICO. DIVISIONES DE GRAN CATEGORÍA, CON MADERA CLARA Y VIDRIO. SALA INFORMATICAEQUIPO PROPIO DE AIRE ACONDICIONADO CENTRAL FRIO-CALOREDIFICIO DE CATEGORIA. PERSONAL PERMANENTE EN RECEPCION DE PLANTA BAJA.10 PLANTAS. 2 ASCENSORES




OFERTA PROVISTA POR SISTEMA SOM - CODIGO: ROD

Ubicación

Centro, Capital Federal

Características

  • Antiguedad: 50

  • Estado: Muy Bueno

  • Expensas: $ 200.000

  • Agua corriente

Código de aviso: ROD125388463

Contactá al anunciante

CARLOS H. RODRIGUEZ S.R.L.