(1) (1)
  • Centro

Venta

Negocio Especial

Precio

Buscar solo avisos en moneda:

Dorm|Amb

Más filtros Más filtros

Nombre de calle y altura

Tipo de anunciante

Comparte comisión

64 Negocios Especiales en Venta en Centro

1/20

2

USD 3.950.000

Mexico 100

Negocio especial en Venta en Centro, Capital Federal

GERMAN SCOPEL SERVICIOS INMOBILIARIOS

Edificio en Puerto Madero, Capital Federal

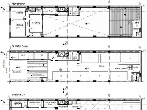
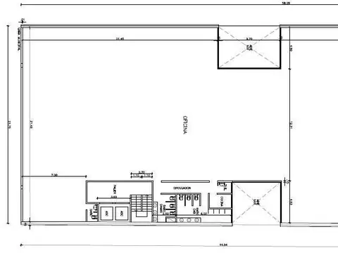
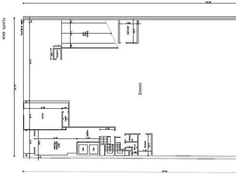
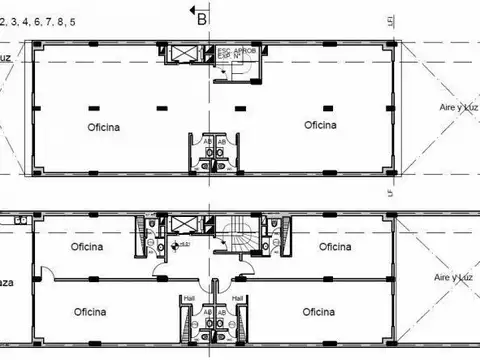
Edificio en puerto madero, capital federal  ideal uso empresarial, corporativo, institucional ; zonificación c2 ; tipologías de plantas flexibles permite diversos usos y destinos ; estrategica ubicación en nuevo madero (intersección de micro/macro centro, puerto madero y san telmo) mexico al 100 (entre av. Paseo colon y azopardo) rodeado de avenidas, corredores viales y acceso al amba de transporte publico (pasajeros y mercaderías) y futuro paseo del bajo, parques y diversas instituciones (educativas, organismos públicos, etc.) ; Edificio a estrenar importante estructura y solida construcción, estudiado y optimo uso de espacios y metros de alfombra (ver planos) ; con una superficie total aprox de 3.046m2 y sup total cub aprox de 2.633m2; repartidos en planta baja 1 subsuelo y 11 pisos (o entrepiso + 10 pisos) ; de 5 oficinas individuales, 7 plantas libres, 20 espacios guardacoches, vivienda o gerencial, expansiones de terrazas y jardín ecológico, totalizando una sup total de uso exclusivo de 1.906m2 y cub o de alfombra de aprox 1.805m2 + guardacoches y baulera (ver balance superficies) . Actualmente desarrolla:  1.- En sector de pb; y ss, sup tot aprox 710m2: - consta de pequeño hall de entrada y circulación vertical + áreas utilizables para: a) 20 espacios guardacoches en pb y ss ; o , b) en ss 10 espacios guardacoches + sector de deposito/guarda de mercaderías y/o atención secundaria (gran parte de la pb tiene 4,60ml de altura) asimismo, c) en el ss actualmente cuenta con un área de fosa p/reparación mecánica de vehículos.-  2.- En sector de entrepiso + piso 1, sup tot aprox 452m2 - consta en planta 1er piso 4 oficinas divisibles c/baño y antebaño tipo quartier 2 al fte a gran terraza y 2 al cte, sup tot aprox 256m2, con aprox 212m2 cubiertos y 143m2 repartidos en 2 terraza al fte y cfte y aprox 185m2 de alfombra + circulación vertical ; en entrepiso de 97m2, repartido en oficina de 70m2 + amplia baulera (puede continuarse la losa hacia el cfte por basamento dotando de mayor expansión y terrazas al conjunto)  3.- En sector de plana pisos 2 al 8, sup tot aprox 1.484m2 - consta de 7 amplias plantas libres de arpox 212m2 totales y 199m2 aprox de alfombra c/u, preparadas para zocaloductos y/o piso técnico, con 2 baños (hombre / mujer c/antebaño) por piso.-  4.- En sector del piso 9, vivienda o gerencial, sup tot aprox 230m2 - consta de 1 amplio piso de vivienda de categoría o gerencial, de 3 dormit/despachos (1 en suite) 2 baños cpltos, toilette, gran estar/área de trabajo, cocina comedor, profusión de placares, 2 balcones terraza en ?L?, Sup. Tot cub aprox 170m2, de alfombra/viv 157m2 aprox y 60m2 de terrazas  5.- En sector de piso 10, terraza ecológica, sup tot aprox 170m2 - compuesto de aprox 141m2 de terraza verde (posible solarium/duchas) + circulación vertical con terminaciones de calidad y cumplimentando estándares de edificio ecológico, con ecoterraza o jardín verde en azotea, preparado con diente de losa sobresaliente de 40cm en la fachada y contrafachas para la instalación de equipos de a/acc t/split frio/calor, ascensor automatizado capacidad para 6 personas ; servicios individuales: agua caliente por termotanques individuales ; doble sistema de doble bomba ; tanque de 25.000 lts, posibilidad de preparar instalación para grupo electrógeno y/o cámaras o cctv; contribuciones aproximadas: abl $ 50.000, aysa $ 17.000.- Verdadera oportunidad por su estrategica ubicación, gran flexibilidad de usos (ideal uso empresarial/corporativo, institucional privado o publico, educativo, etc) , edificio ecológico, zonif c2 ; bajas contribuciones de abl y aysa. Merece visitarse. No dude en consultarnos. Detalle de ubicación: a) avenidas: paseo colón, ing. Huergo, chile, belgrano, independencia, alcia m. Moreau de justo ; b) corredores viales: paseo colon ; ing. Huergo ; futuro paseo del bajo (corredor integral de transporte pesado y de pasajeros) ; c) accesos autopistas: bsas la plata ; y, autopista 25 de mayo (au 1) ; d) próximo puentes / paso fluviales: puente pueyrredon, autopista bs.As la plata, puerto bsas (retiro) ; e) variadas lineas de colectivos: 2, 4, 8, 20, 22, 24, 28, 29, 33, 61, 62, 64, 74, 86, 93, 103, 111, 126, 129, 130, 143, 152, 159, 195, entre otras.-  Notas: inmueble sin acceso para personas con movilidad reducida. Los detalles, descripciones arquitectónicas y funcionales, valores de diversos gastos y contribuciones (expensas, impuestos, servicios, etc.) Fotos y medidas y superficies son aproximados, referenciales y de carácter no contractual. Los datos expresados en el aviso son informados por la parte vendedora y/o cotejado con la correspondiente documentación que puede/n no estar temporalmente actualizado/s al momento de su visualización pudiendo sufrir modificaciones, arrojar inexactitudes y/o discordancias con las que surgen de facturas, servicios, títulos y/o planimetría legal del inmueble, diversos cuadros tarifarios vigentes, etc. Venta supeditada al cumplimiento por parte del propietario de los requisitos de la resolución general nº 2371 de la afip (coti) - - - - - - - videos: https: https: https: https: https: 360: http: www . Visita360 . Com.Ar/scopel/tour/mexico-100 mas info: telefono: 4 3 7 1 2 6 9 3  wspp: 1 1 5 0 0 1 5 4 9 2  email: i n f o @ s c o p e l . C o m . A r - - - - - - -  (scp-scp-20)

Contactar
1/101

350

USD 1.850.000

Tucumán al 400

Negocio especial en Venta en Microcentro, Centro

Polaris Real Estate Consulting

Edificio Comercial - Microcentro

Edificio comercial de casi 2.000m2 de 6 plantas ubicado a pocas cuadras de puerto madero, galerías pacífico, y de fácil acceso de avenidas lugones, alem y autopista buenos aires la plata. La propiedad ha sido reciclada pero mantiene la fachada, aberturas, escaleras y hasta algunos salones con el estilo original. Plantas: -sótano - planta baja de 419m2: gran hall de recepción + sectores de trabajo - primer piso: 5 oficinas + 3 salones de usos múltiples + baños - segundo piso: 8 oficinas + 3 salones de usos múltiples + baños - tercer piso: 8 oficinas + 3 salones de usos múltiples + baños - cuarto piso: 11 oficinas + espacio de 14 x 4.35 (para boxes) - mezzanina - azotea cocina lockers comedores baños ascensores grupo electrógeno ideal para destino comercial o turístico. La presente oferta está condicionada a la confección del coti por parte del propietario (res. Afip 2371). Las medidas, superficies y expensas consignadas en la presente son aproximadas y no resultan vinculantes. Los datos definitivos son los que surgen del título de propiedad y del recibo de expensas. Corredor responsable: sandra viviana tournier cuccicba: matr. 7679 para los casos de alquiler de vivienda, el monto máximo de comisión que se le puede requerir a los propietarios será el equivalente al cuatro con quince centésimos por ciento (4,15%) del valor total del respectivo contrato. Se encuentra prohibido cobrar a los inquilinos que sean personas físicas comisiones inmobiliarias y gastos de gestoría de informes".- La propiedad no es accesible (ley 5115). Aviso legal: las descripciones arquitectónicas y funcionales, valores de expensas, impuestos y servicios, fotos y medidas de este inmueble son aproximados. Los datos fueron proporcionados por el propietario y pueden no estar actualizados a la hora de la visualización de este aviso por lo cual pueden arrojar inexactitudes y discordancias con las que surgen de los impuestos, tasas y facturas. Las medidas exactas surgirían de los planos aprobados y del título de propiedad. El interesado deberá realizar las verificaciones respectivas previamente a la realización de cualquier operación, requiriendo por sí o sus profesionales las copias necesarias de la documentación que corresponda.

Contactar
1/25

0

USD 2.500.000

Tucumán 700

Negocio especial en Venta en Microcentro, Centro

MARATÓN PROPIEDADES

Edificio Comercial a refaccionar en Microcentro en venta -

Venta edificio en microcentro centro edificio en block en venta a refaccionar - 8 unidades funcionales y 2 locales con subsuelo sobre terreno de 15,60 x 36,35 mts valor de incidencia: u$s 855 /m2 edificio de estilo del año 1923, a reciclar 100% en el corazón del microcentro; sobre tucumán entre maipú y esmeralda, resuelto en pb con 2 locales y subsuelo + 4 pisos con 8 unidades funcionales. Hoy día son departamentos en semi-pisos, que se podría replantear dichas plantas, para destinarlos a: co-living; co-working; hostel; hotel, o bien para empresa, pudiendo incorporar una gran terraza con servicios de bar y expansión. En síntesis: les presentamos un edificio a reciclar a un valor terreno. Gran oportunidad para inversor, constructor o arquitectos que se deleitan con una gran reconversión. Atención inversores-rentistas: buscamos inversores agresivos que sientan adrenalina y pasión por ingresar a una propiedad que hay que rehacer a nuevo con la idea de transformarla en una nueva oportunidad para el mercado. Actualmente: el edificio está ocupado, pero se puede entregar liberado venta de locales y departamentos 2 locales: 941,14 m2 / 4 departamentos: 1011,74 m2 locales: son apto gastronomía. Departamentos: son aptos para convertirlos en hostel, residencia universitaria o bien, co-working. Locales: sup. Total: 941,14 m2 local 1 pb: 222,00 m2 subsuelo 1: 236,17 m2 local 2pb: 234,49 m2 subsuelo 2: 248,28 m2 departamentos: sup. Total: 1011,74 m2 uf 3: 267,57 m2 uf 5: 242,80 m2 uf 7: 242,78 m2 uf 8: 258,59 m2 superficie total edificio (locales + dptos): 1952,88 m2 medidas del terreno: 15,60x36,35 mts los valores de alquiler / venta y expensas están sujetos a modificación. Por favor consultar el valor actualizado si le interesa esta propiedad. Toda la información y medidas provistas son aproximadas y deberán ratificarse con la documentación pertinente y no compromete contractualmente a nuestra empresa. Los gastos expresados (expensas, abl, etc) se refieren a la última información recibida y deberán confirmarse. Fotografias no vinculantes ni contractuales. De acuerdo a ley 5.115, esta propiedad, tiene accesibilidad para las personas con discapacidades físicas.

Contactar
1/15

1

USD 11.000.000

SAN MARTIN 200

Negocio especial en Venta en Microcentro, Centro

BERRUETA INMOBILIARIA

Edificio - Venta - Argentina, Capital Federal - SAN MARTIN 200

Venta de edificio en centro / microcentro, capital federal "edificio lanusse" ubicado en san martin al 200 este edificio fue inaugurado en el año 1922, obra del arquitecto coni molina, como edificio corporativo, possee caracteristicas arquitectónicas, dentro del estilo italianizante, se distingue por la simetría en la composición de su fachada, el almohadillado en su superficie muraria, y sus puertas y ventanas rectangulares con arcos y frontis. La puesta en valor de la fachada, concluyó en mayo 2014, se trató de la restauración del basamento edilício, recuperando las características tectónicas y estilísticas de las carpinterías, del almohadillado murario y del basamento granítico. El edificio es de una gran estructura ornamentada y de estilo, habiendo pertenecido a la empresa de pedro y antonio lanusse. Desarrollado en dos cuerpos, con doble entrada independiente, importante hall de entrada con tres arcadas, sector destinado a vigilancia y un importante local con nave central. Posee planta baja, 2 subsuelos, entrepiso y seis pisos. Cuerpo 1: entrada por san martin 240 , por esta entrada se accede a los 2 subsuelos, planta baja, entrepiso y primer piso. Con ascensor. Tres arcadas revestidas de marmol se presentan para el ingreso al imponente salon, con techo de doble altura, ya que el primer piso posee balcones sobre el mismo. Cuerpo 2: entrada por san martin 232, por aqui se accede a los pisos 2º al 6º por 2 ascensores. Instalaciones: aire acondicionado central:2 equipos para el primer subsuelo. 1 equipo para planta baja. 2 equipos para el 1º piso calefacción : " calderas para vapor y/o agua caliente para gas natural. El edificio cuenta con: 3 ascensores manuales - automaticos y escalera principal. 1 escalera principal que recorre desde el 1º subsuelo al 1º piso. Sanitario en palier de todas las plantas. Frente: 17,45 m2 fondo: 60.62 m2 superficie del 1er. Cuerpo san martin 240 pb: 1.045.87 entrepiso, 1ºpisoy 2 subsuelo: 2.543,70 m2 total:3.525,24 m2 propia 2.865,06 m2 superficie del 2º cuerpo: san martin 232: pisos 2º,3º, 4º, 5º y 6º total: 3.481 m2 propia: 2.576.42 m2 venta: u$s 11.000.000 se deja constancia que las descripciones arquitectónicas y funcionales, fotos, memorias descriptivas, medidas de este inmueble, valores de expensas, impuestos y servicios son aproximados a título orientativo sujetos a verificación y/o ajustes. Los datos fueron proporcionados por el propietario y pueden no estar actualizados a la hora de la visualización de este aviso por lo cual pueden arrojar inexactitudes y discordancias con las que surgen de los las facturas, títulos y planos legales del inmueble. El interesado deberá realizar las verificaciones respectivas previamente a la realización de cualquier operación, requiriendo por sí o sus profesionales las copias necesarias de la documentación que corresponda. Berrueta inmobiliaria está a su total disposición para proveerlo de toda información que nos requiera. Si tuviese la mínima duda sobre cualquier información recibida, por favor consultar.

Contactar
1/15

1

USD 5.000.000

Tucumán y Reconquista

Negocio especial en Venta en Microcentro, Centro

MARTIN TRIGO

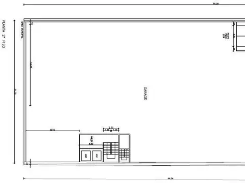
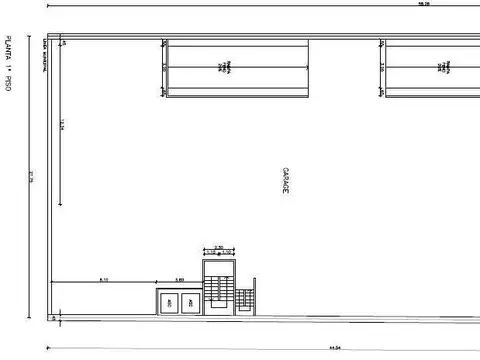
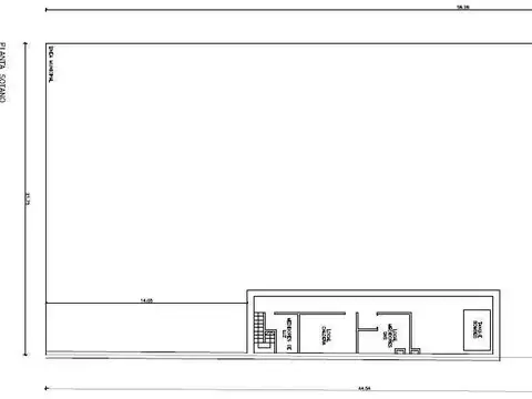
Edificio Comercial de 3500m2 en Microcentro. PB y 7 pisos con cocheras

Oportunidad excepcional en el microcentro de capital federal! Este es el momento de elevar tu empresa al siguiente nivel con esta joya arquitectónica en el corazón del microcentro de la capital federal. Ubicado en tucumán 300, este edificio de oficinas con pb + 7 plantas ofrece una combinación perfecta de estilo, funcionalidad y prestigio. Características destacadas: ubicación privilegiada: situado en el epicentro del distrito financiero de buenos aires, este edificio se encuentra en una de las zonas más codiciadas de la ciudad, ofreciendo acceso rápido y conveniente a una variedad de servicios y transporte público. Diseño moderno y funcional: las 7 plantas de este edificio están diseñadas para maximizar la eficiencia y la comodidad. Con un núcleo de escaleras y ascensores en el centro, el acceso a cada piso es rápido y conveniente. Además, las plantas son completamente libres, lo que te brinda la flexibilidad para adaptar el espacio según las necesidades específicas de tu empresa. Estilo vanguardista: la fachada de courtin wall no solo agrega un toque de elegancia y modernidad al edificio, sino que también garantiza un excelente aislamiento térmico y acústico, creando un ambiente de trabajo tranquilo y confortable. Comodidades premium: desde una cómoda sala para conferencias en la planta baja hasta una sala de servidores equipada en los pisos superiores, este edificio está diseñado pensando en la comodidad y la funcionalidad de sus ocupantes. Además, cuenta con instalación contra incendios, equipo de aire central, generador de luz diesel, 2 ascensores automáticos, control de acceso con molinete, cctv, cocheras, cableado por piso técnico y un sistema de alarma de última generación. Espacio amoblado: este edificio se entrega completamente equipado con muebles de alta calidad, tal como se ve en las imágenes, lo que significa que puedes comenzar a trabajar sin perder ni un minuto en amueblar tu espacio. Resumen: con una superficie cubierta de 480m2 por planta y una ubicación inmejorable en el corazón de buenos aires, este edificio representa una oportunidad única para empresas que buscan destacarse en un entorno empresarial competitivo y dinámico. No dejes pasar la oportunidad de ser parte de este proyecto excepcional. Contáctanos hoy mismo para más información y para programar una visita! Tu éxito empresarial comienza aquí.

Contactar
1/8

0

USD 990.000

CONFIDENCIAL - BI68176

Negocio especial en Venta en Centro, Capital Federal

Inmuebles - Hoteles
  • Edificio Comercial

Edificio apto hotel 600 Mts2

Propiedad apta hotel sup. Cub: 600 mts2 : terreno: 6 x 30 mts. a una cuadra del obelisco y a una del subte. La primer entrada consta de 2 pisos y terraza, 160/170 mts2 por piso y la terraza utilizable también. La otra entrada, también independiente es un local de 140 mts2 con zona de cocina , 3 baños (uno para discapacitados) usos varios. No afectado a aph se pueden construir 1600 mts2 oficinas a reciclar local en pb. Potencial constructivo 1.600 mts2. Área de alta mixtura de usos del suelo 4. Carácter corresponde a las áreas y corredores destinados a residencia, depósitos siempre que incluyan local de venta y servicios y comercios de afluencia metropolitana. Proteccion no se encuentran registros. Delimitacion la delimitación que resulte del plano de edificabilidad y usos. Usos los usos que resulten de aplicar las disposiciones del cuadro de usos del suelo n° 3.3, del código de planeamiento urbano. Edificio entre medianeras l.F.I.: 1/4 l.I.B.: 1/3 área edificable: hasta l.F.I. (29,53m.) – 6 metros mínimo (espacio urbano) altura máxima: 31m. Con una planta baja y un máximo de nueve pisos sobre l.O., Con contar los entresuelos que se proyecten de conformidad a la normativa de edificación. Retiro de frente: no contempla. Basamento: 6 metros. Metros cuadrados a construir y vendibles estimativos (a determinar según proyecto) superficie a construir según f.O.Taproximadamente 1500 mts2 (metros a construir vendibles) - se estima un 20% de espacios comunes en plantas tipo y un 40% de espacios comunes en plantas de basamentos y subsuelo superfices que no computan: superficies destinadas a estacionamiento, carga y descarga. - 50% de toda superficie semicubierta. - Superficies destinadas a instalaciones de incendio. - Unidad de vivienda del encargado / ayudante de portería. - Tanques de bombeo y reserva. - Salas de medidores de las instalaciones en general. - Salas de máquinas. - Pasadizos de ascensor. - Conductos de ventilación y/o servicios. No cuenta con gas ni ascensor u$s400.000 al contado y se aceptan propiedades a convenir  se da cumplimiento a la ley 5115 de accesibilidad a nuestra oficina de atención al público. Matrícula profesional cucicba no. 2726 la dirección exacta se dará en instancia de visita. Para el caso de inmuebles comerciales, el nombre y la renta se proporcionará en entrevista personal. Las medidas son aproximadas. Las superficies reales surgirán del título de propiedad del inmueble. El presente anuncio es sólo a título informativo, la venta de dicho inmueble está supeditada a que el propietario tramite ante la afip el c.O.T.I.

Contactar
1/6

0

USD 7.500.000

Consultar dirección

Negocio especial en Venta en Centro, Capital Federal

Inmuebles - Hoteles
  • Edificio Comercial

88 unidades funcionales

88 unidades funcionales sup. Cub.: 4.620 mts2 - terreno: 767 mts2. U. Funcionales incorporadas en distintas sa. Los dtos tienen piso de alfombras. Agua caliente individual. Salón desayunador de 120 mts2 cub. En pb. Posibilidad de adquirir 68 dtos y el auditorio y tener el 100 % del consorcio totalizando 158 unidades funcionales. 1er. Subsuelo con salón de 400 mts2 y 2do. Sub. Con area de servicios de 700 mts2. La titularidad de lo que se vende posee la mayoría del consorcio y también la administración. Monoambiente de 30 mts2 con una cama matrimonial o dos camas individuales. Tv cable, aire acondicionado individual, una mesa o escritorio con sillones, kitchenette, minibar y baño completo. Monoambiente de 35 mts2 con tres camas individuales. Tv cable, aire acondicionado individual, un escritorio con sillones, kitchenette, minibar, baño completo y balcón. Departamentos de 2 ambientes comunicados, cada uno de 35 mts2. Un dormitorio con cama matrimonial y otro con dos camas individuales. Cada habitación cuenta con su tv cable, aire acondicionado individual, mesa con sillones, kitchenette, minibar, baño completo y balcón. Cada departamento cuenta con su tv cable, aire acondicionado individual, mesa con sillones, kitchenette, minibar, baño completo y balcón. Departamentos de 3 ambientes de 30 mts cada habitacion. Posee un dormitorio matrimonial y otro con dos camas individuales, conectado entre si a través de un living-room central. Cada dormitorio cuenta con su tv cable, aire acondicionado individual, mesa con sillones, kitchenette, minibar, baño completo y balcón. Penthouse de 50 mts2 con espectacular vista el río. Dispone de un dormitorio con una cama matrimonial y un living-room. Tv cable, aire acondicionado individual, kitchenette, minibar, baño completo y un amplio balcón terraza. Puertas con cerraduras magnéticas. Aire acondicionado frío/calor individual. Tv cable 71 canales. Caja de seguridad individual. Piscina-solárium en temporada estival. Central telefónica con la capacidad de acceder a internet wi-fi con computadora personal. Alquileres temporarios mensuales para extranjeros la dirección exacta se dará en instancia de visita. Para el caso de inmuebles comerciales, el nombre y la renta se proporcionará en entrevista personal. Las medidas son aproximadas. Las superficies reales surgirán del título de propiedad del inmueble. El presente anuncio es sólo a título informativo, la venta de dicho inmueble está supeditada a que el propietario tramite ante la afip el c.O.T.I.

Contactar