(1) (1)
  • Lanus

Operación

Terreno

Precio

Buscar solo avisos en moneda:

Dorm|Amb

Más filtros Más filtros

Características

Superficie total

Nombre de calle y altura

Tipo de urbanización

Fot

Servicios

Tipo de anunciante

Comparte comisión

264 Terrenos en Lanus

1/100

0

USD 200.000

Amancio Alcorta 100

Terreno en Venta en Lanus Oeste, Lanus

REMAX Titanium
  • 190 m² Total
  • Bueno

VENTA LOTE ESTRATEGICO 8,66 X 21,91 PLENO LANUSITA

Corredor responsable: francisco d\'atri cpmcal 45 / leonel d\'atri cucicba 6618 - contacto: maría elena flederhasz lote en venta – pleno centro de lanusita ubicación: alcorta entre av. Hipólito yrigoyen y del valle iberlucea en el corazón de lanusita, una de las zonas de mayor crecimiento y valorización del sur del gran buenos aires, se ofrece este lote de 8,66 x 21,91 m (fot 2,5), ideal para desarrollo de edificio tipo torre residencial o de uso mixto. Su excelente ubicación, a metros de las principales avenidas y del polo gastronómico y comercial de lanusita, lo convierte en una oportunidad estratégica para desarrolladores que buscan invertir en una zona de alta demanda y con valorización sostenida. Características del lote: lote de 8,66 m de frente por 21,91 m de fondo. Fot 2,5, con proporciones óptimas para un proyecto moderno y eficiente. Construcciones existentes: planta baja: propiedad a reciclar o demoler, que puede integrarse al proyecto o liberar espacio. Planta alta: vivienda de 3 ambientes con terraza y parrilla. Potencial de desarrollo: la superficie y la ubicación permiten proyectar un edificio de unidades residenciales o de uso mixto, con local/es en planta baja y varios niveles de vivienda o estudios profesionales. La zona presenta alta demanda y sostenido crecimiento urbano, impulsado por la instalación de marcas gastronómicas, nuevos comercios y edificios modernos. Ventajas clave: ubicación estratégica, en el epicentro de lanusita entorno consolidado, con servicios, transporte y comercios lote de medidas ideales para emprendimientos de escala media zona de alta valorización y proyección a futuro una oportunidad única para quienes buscan desarrollar en una de las áreas más activas y valorizadas de lanús. Mirá el video completo en youtube: https: youtu.Be/kvlb3vtvui0 rau s.R.L. No ejerce el corretaje inmobiliario. El presente sitio web es una plataforma en donde cada oficina inmobiliaria independiente que contrata los servicios re/max puede publicar las propiedades a su cargo. Cada oficina es de propiedad y gestión independiente, por lo que rau s.R.L. No interviene en los datos de la publicación, en la operación inmobiliaria, ni en la confección y/o firma del boleto de compraventa y/o escritura y/o contrato de alquiler. En cumplimiento de las leyes vigentes que regulan el corretaje inmobiliario, ley nacional 25.028, ley 22.802 de lealtad comercial, ley 24.240 de defensa al consumidor, las normas del código civil y comercial de la nación y constitucionales, los agentes/gestores no ejercen el corretaje inmobiliario. Todas las operaciones inmobiliarias son objeto de intermediación y conclusión por parte del corredor público inmobiliario colegiado a cargo de la publicación, cuyos datos se exhiben en la presente. La presente publicación describe las características esenciales del inmueble, debiéndose consultar al corredor público inmobiliario responsable de la operación por la eventual actualización de las medidas, descripciones arquitectónicas y funcionales, valores de expensas, servicios, impuestos, precios y demás información, cuyos valores son aproximados. Comprá la casa que querés! No la que podés. Accedé a un préstamo por hasta el 30% del valor de esta propiedad. Simulá tu cuota en lendar

Contactar
1/5

262

USD 1.100.000

TUCUMAN 100

Terreno en Venta en Lanus, Buenos Aires

MEZADURIAN NEGOCIOS INMOBILIARIOS
  • 1.431 m² Total
  • Bueno

Terreno - Venta - Argentina, Lanús - TUCUMAN 40

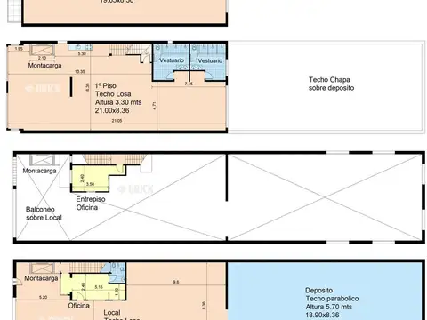
Venta de lote, lanús ubicado sobre la calle tucumán, a pocos metros de avenida hipólito yrigoyen, este lote representa una excelente oportunidad de inversión en una zona de constante crecimiento y alto movimiento dentro de la localidad. El entorno combina actividad comercial, residencias y nuevos desarrollos, configurando un área con gran proyección y demanda sostenida. Su proximidad a la ciudad de buenos aires, a tan solo 20 minutos, garantiza conectividad, visibilidad y atractivo tanto para proyectos residenciales como comerciales. El terreno posee un frente de 25,98 metros, con laterales de 46,52 y 37,86 metros, alcanzando una superficie total de 1.133 m². Actualmente, en el predio funciona un garage operativo, con sector descubierto y área cubierta distribuida en dos plantas, lo que brinda un uso inmediato o la posibilidad de reconvertirlo según las necesidades del proyecto. De acuerdo con los indicadores urbanísticos vigentes, cuenta con una capacidad edificable de 2.833 m², un f.O.S. De 0,6 y un f.O.T. De 2,5, permitiendo desarrollos de escala media o alta, adaptados al perfil urbano de la zona. Una alternativa sólida para desarrolladores o inversores que buscan posicionarse en un punto estratégico y de alto potencial dentro del corredor sur metropolitano. No deje de consultar y coordinar una visita el inmueble cuenta con ingreso adaptado para personas con movilidad reducida. Corredor responsable:insinga maria victoria - cmcpsi 7073 aviso legal: las descripciones arquitectónicas y funcionales, valores de expensas, impuestos y servicios, fotos y medidas de este inmueble son aproximados. Los datos fueron proporcionados por el propietario y pueden no estar actualizados a la hora de la visualización de este aviso por lo cual pueden arrojar inexactitudes y discordancias con las que surgen de los las facturas, títulos y planos legales del inmueble. El interesado deberá realizar las verificaciones respectivas previamente a la realización de cualquier operación, requiriendo por sí o sus profesionales las copias necesarias de la documentación que corresponda.

Contactar
1/8

0

USD 68.000

Manuel Ocampo 1400

Terreno en Venta en Lanus Oeste, Lanus

REMAX Titanium
  • 271 m² Total
  • Regular

LOTE DE 11,20 X 24,24 C/ PREFABRICADA A DEMOLER.

Corredor responsable: francisco d\'atri cpmcal 45 / leonel d\'atri cucicba 6618 - contacto: rodolfo fernández lote 270 m2 aproximados ubicado con frente a la calle manuel ocampo 1422 entre catamarca y canada. Dicha proiedad consta de un lote de 11,20 metros de frente por 24,24 metros de fondo. Ubicado: - a 150 mts de av. San martin. - A 250 mts de av. Int. Manuel quindimil. - A 150 del colegio santa faz. - A 200 mts de cnel. D´elia (centro comercial) ideal inversor las medidas son aproximadas, la reales surgen del titulo de propiedad. Si sos cliente re/max podes acceder a un préstamo \"lendar\" que te financia hasta el 30% del valor del inmueble, con mínimos requisitos. Simula tu préstamo en en cumplimiento de las normas legales aplicables, los agentes no ejercen el corretaje inmobiliario. Todas las operaciones inmobiliarias son objeto de intermediación y conclusión por parte del corredor matriculado de la oficina re/max titanium, francisco d\'atri cpmcal 45 rau s.R.L. No ejerce el corretaje inmobiliario. El presente sitio web es una plataforma en donde cada oficina inmobiliaria independiente que contrata los servicios re/max puede publicar las propiedades a su cargo. Cada oficina es de propiedad y gestión independiente, por lo que rau s.R.L. No interviene en los datos de la publicación, en la operación inmobiliaria, ni en la confección y/o firma del boleto de compraventa y/o escritura y/o contrato de alquiler. En cumplimiento de las leyes vigentes que regulan el corretaje inmobiliario, ley nacional 25.028, ley 22.802 de lealtad comercial, ley 24.240 de defensa al consumidor, las normas del código civil y comercial de la nación y constitucionales, los agentes/gestores no ejercen el corretaje inmobiliario. Todas las operaciones inmobiliarias son objeto de intermediación y conclusión por parte del corredor público inmobiliario colegiado a cargo de la publicación, cuyos datos se exhiben en la presente. La presente publicación describe las características esenciales del inmueble, debiéndose consultar al corredor público inmobiliario responsable de la operación por la eventual actualización de las medidas, descripciones arquitectónicas y funcionales, valores de expensas, servicios, impuestos, precios y demás información, cuyos valores son aproximados. Comprá la casa que querés! No la que podés. Accedé a un préstamo por hasta el 30% del valor de esta propiedad. Simulá tu cuota en lendar

Contactar
1/4

0

USD 229.000

Doctor Arturo Melo 4200

Terreno en Venta en Remedios De Escalada, Lanus

REMAX Titanium
  • 191 m² Total

Lote terreno

Corredor responsable: francisco d\'atri cpmcal 45 / leonel d\'atri cucicba 6618 - contacto: hernán valsecchi lote de terreno en remedios de escalada. Medidas 8,66 x 23, excelente para inversor. Escritura directa. Excelente ubicación, a 40 minutos de caba y 15 de lomas de zamora. Consúltenos por entrevista..... Rau s.R.L. No ejerce el corretaje inmobiliario. El presente sitio web es una plataforma en donde cada oficina inmobiliaria independiente que contrata los servicios re/max puede publicar las propiedades a su cargo. Cada oficina es de propiedad y gestión independiente, por lo que rau s.R.L. No interviene en los datos de la publicación, en la operación inmobiliaria, ni en la confección y/o firma del boleto de compraventa y/o escritura y/o contrato de alquiler. En cumplimiento de las leyes vigentes que regulan el corretaje inmobiliario, ley nacional 25.028, ley 22.802 de lealtad comercial, ley 24.240 de defensa al consumidor, las normas del código civil y comercial de la nación y constitucionales, los agentes/gestores no ejercen el corretaje inmobiliario. Todas las operaciones inmobiliarias son objeto de intermediación y conclusión por parte del corredor público inmobiliario colegiado a cargo de la publicación, cuyos datos se exhiben en la presente. La presente publicación describe las características esenciales del inmueble, debiéndose consultar al corredor público inmobiliario responsable de la operación por la eventual actualización de las medidas, descripciones arquitectónicas y funcionales, valores de expensas, servicios, impuestos, precios y demás información, cuyos valores son aproximados. Comprá la casa que querés! No la que podés. Accedé a un préstamo por hasta el 30% del valor de esta propiedad. Simulá tu cuota en lendar

Contactar
1/13

0

USD 133.000

Presidente Arturo Illia 1600

Terreno en Venta en Lanus Este, Lanus

REMAX Suma
  • 233 m² Total
  • A Refac.

LOTE EN VENTA POTENCIAL DESARROLLO-LANUS ESTE

Corredor responsable: diego mastrangelo cucicba 7615 csi 6609 - contacto: carolina catanese dos viviendas en esquina sobre lote de 233 m2, ideal emprendimiento -zonificación s1r1-fot 2.5-(583,5 mts2) fos 0.60 (139,8 mts2)-densidad 1000 hab/h-altura max; 21 mts /28 mts con retiro (entre 6 y 7 pisos)- con 25% de premio 728 m2 luz gas cloacas casa principal desarrollada en dos plantas, con entrada sobre ambas calles, estructura solida con orientación noreste. Cuenta con todos los servicios: luz, gas, agua y cloacas, planta baja: ingreso por calle a. Illía, con amplio hall recepción, living, comedor, cocina comedor diario con ventana amplia, muebles de bajo y sobre mesada, detalles de categoría, dos dormitorios, un baño completo, hall distribuidor, que comunica a escaleras. Patio libre amplio, cochera-garaje cubierto, baño de adicional , lavadero independiente. Planta alta: amplio dormitorio principal con placard y balcón al frente muy luminoso, quincho con terraza y parrilla. Segunda vivienda sobre calle córdoba cuenta con porch de ingreso, living-comedor, cocina completa, patio, baño completo, lavadero y un amplio dormitorio al frente. Ideal dos familias - inversores - proyecto p/constructoras, desarrolladores. Zonificación s1r1-fot 2.5-fos 0.60-densidad 100 hab/h-altura max; 21 mts /28 mts con retiro luz gas cloacas las medidas expresadas son solo para el efecto orientativo, las reales surgen de los respectivos planos, titulos y/o planchetas catastrales. Rau s.R.L. No ejerce el corretaje inmobiliario. El presente sitio web es una plataforma en donde cada oficina inmobiliaria independiente que contrata los servicios re/max puede publicar las propiedades a su cargo. Cada oficina es de propiedad y gestión independiente, por lo que rau s.R.L. No interviene en los datos de la publicación, en la operación inmobiliaria, ni en la confección y/o firma del boleto de compraventa y/o escritura y/o contrato de alquiler. En cumplimiento de las leyes vigentes que regulan el corretaje inmobiliario, ley nacional 25.028, ley 22.802 de lealtad comercial, ley 24.240 de defensa al consumidor, las normas del código civil y comercial de la nación y constitucionales, los agentes/gestores no ejercen el corretaje inmobiliario. Todas las operaciones inmobiliarias son objeto de intermediación y conclusión por parte del corredor público inmobiliario colegiado a cargo de la publicación, cuyos datos se exhiben en la presente. La presente publicación describe las características esenciales del inmueble, debiéndose consultar al corredor público inmobiliario responsable de la operación por la eventual actualización de las medidas, descripciones arquitectónicas y funcionales, valores de expensas, servicios, impuestos, precios y demás información, cuyos valores son aproximados. Comprá la casa que querés! No la que podés. Accedé a un préstamo por hasta el 30% del valor de esta propiedad. Simulá tu cuota en lendar

Contactar
1/14

0

USD 78.000

Coronel Molinedo 3100

Terreno en Venta en Lanus Oeste, Lanus

REMAX Titanium
  • 390 m² Total
  • Bueno

VIVIENDA MULTIFAMILIAR, DUEÑO FINANCIA 30%

Corredor responsable: francisco d\'atri cpmcal 45 / leonel d\'atri cucicba 6618 - contacto: sebastián vedovi venta de 3 departamentos en block. Fondo libre. Ideal multifamilia dueño ofrece hasta un 30 % de financiacion sin requisitos 50.000 usd y 28 cuotas de 1.000 usd los mismos cuentan con todos los servicios independientes, como asi tambien los accesos independientes a cada departamento terreno de 10 mts de frente por 39 mts.de fondo. Barrio tranquilo, a 50 metros de plaza giardino. 5 cuadras del puente olimpico (acceso a cap. Fed.) Y a 2 de av. 25 de mayo. Rau s.R.L. No ejerce el corretaje inmobiliario. El presente sitio web es una plataforma en donde cada oficina inmobiliaria independiente que contrata los servicios re/max puede publicar las propiedades a su cargo. Cada oficina es de propiedad y gestión independiente, por lo que rau s.R.L. No interviene en los datos de la publicación, en la operación inmobiliaria, ni en la confección y/o firma del boleto de compraventa y/o escritura y/o contrato de alquiler. En cumplimiento de las leyes vigentes que regulan el corretaje inmobiliario, ley nacional 25.028, ley 22.802 de lealtad comercial, ley 24.240 de defensa al consumidor, las normas del código civil y comercial de la nación y constitucionales, los agentes/gestores no ejercen el corretaje inmobiliario. Todas las operaciones inmobiliarias son objeto de intermediación y conclusión por parte del corredor público inmobiliario colegiado a cargo de la publicación, cuyos datos se exhiben en la presente. La presente publicación describe las características esenciales del inmueble, debiéndose consultar al corredor público inmobiliario responsable de la operación por la eventual actualización de las medidas, descripciones arquitectónicas y funcionales, valores de expensas, servicios, impuestos, precios y demás información, cuyos valores son aproximados. Comprá la casa que querés! No la que podés. Accedé a un préstamo por hasta el 30% del valor de esta propiedad. Simulá tu cuota en lendar

Contactar
1/19

0

USD 59.000

La Rioja 3000

Terreno en Venta en Lanus Oeste, Lanus

REMAX Titanium
  • 273 m² Total
  • A Refac.

LOTE DE 10 X 27,40 - LANUS OESTE, IDEAL INVERSOR

Corredor responsable: francisco d\'atri cpmcal 45 / leonel d\'atri cucicba 6618 - contacto: rodolfo fernández excelente lote de 273 m2 con frente a la calle la rioja 3072 entre aristobulo del valle y lavallol, lanus oeste. El mismo tiene 10 metros de frente por 27,45 en su lateral izquierdo y 27,34 en su lateral derecho. Actualmente cuenta con una edificación antigua a reciclar o demoler, ideal para construir una nueva vivienda o galpón. No dudes en pedir una visita. Las medidas son aproximadas, la reales surgen del titulo de propiedad. Si sos cliente re/max podes acceder a un préstamo \"lendar\" que te financia hasta el 30% del valor del inmueble, con mínimos requisitos. Simula tu préstamo en rau s.R.L. No ejerce el corretaje inmobiliario. El presente sitio web es una plataforma en donde cada oficina inmobiliaria independiente que contrata los servicios re/max puede publicar las propiedades a su cargo. Cada oficina es de propiedad y gestión independiente, por lo que rau s.R.L. No interviene en los datos de la publicación, en la operación inmobiliaria, ni en la confección y/o firma del boleto de compraventa y/o escritura y/o contrato de alquiler. En cumplimiento de las leyes vigentes que regulan el corretaje inmobiliario, ley nacional 25.028, ley 22.802 de lealtad comercial, ley 24.240 de defensa al consumidor, las normas del código civil y comercial de la nación y constitucionales, los agentes/gestores no ejercen el corretaje inmobiliario. Todas las operaciones inmobiliarias son objeto de intermediación y conclusión por parte del corredor público inmobiliario colegiado a cargo de la publicación, cuyos datos se exhiben en la presente. La presente publicación describe las características esenciales del inmueble, debiéndose consultar al corredor público inmobiliario responsable de la operación por la eventual actualización de las medidas, descripciones arquitectónicas y funcionales, valores de expensas, servicios, impuestos, precios y demás información, cuyos valores son aproximados. Comprá la casa que querés! No la que podés. Accedé a un préstamo por hasta el 30% del valor de esta propiedad. Simulá tu cuota en lendar

Contactar
1/5

0

USD 350.000

Anatole France 1500

Terreno en Venta en Lanus Este, Lanus

REMAX Titanium
  • 459 m² Total
  • Excelente

TERRENO DE 459M2 OPORTUNIDAD

Corredor responsable: francisco d\'atri cpmcal 45 / leonel d\'atri cucicba 6618 - contacto: maia infer lote en el centro de lanus de 8.66x 53m, ideal para construir. Ubicado a media cuadra de eva peron y a 4 de 9 de julio. El terreno cuenta con una superficie de 459m2 fot 2.5 (mas premios) y fos 0.6 actualmente, el terreno cuenta con un chalet de 4 ambientes en dos plantas con un galpón contra-frente de 200m2 aprox. Con techo tinglado en perfecto estado. Garage pasante. Ideal depósito/industria/cocheras. Se escuchan propuestas, no dude en llamarnos. Todos los ambientes con muy buen ingreso de aire/luz. Ideal inversores - ideal proyecto p/constructoras desarrollistas. Rau s.R.L. No ejerce el corretaje inmobiliario. El presente sitio web es una plataforma en donde cada oficina inmobiliaria independiente que contrata los servicios re/max puede publicar las propiedades a su cargo. Cada oficina es de propiedad y gestión independiente, por lo que rau s.R.L. No interviene en los datos de la publicación, en la operación inmobiliaria, ni en la confección y/o firma del boleto de compraventa y/o escritura y/o contrato de alquiler. En cumplimiento de las leyes vigentes que regulan el corretaje inmobiliario, ley nacional 25.028, ley 22.802 de lealtad comercial, ley 24.240 de defensa al consumidor, las normas del código civil y comercial de la nación y constitucionales, los agentes/gestores no ejercen el corretaje inmobiliario. Todas las operaciones inmobiliarias son objeto de intermediación y conclusión por parte del corredor público inmobiliario colegiado a cargo de la publicación, cuyos datos se exhiben en la presente. La presente publicación describe las características esenciales del inmueble, debiéndose consultar al corredor público inmobiliario responsable de la operación por la eventual actualización de las medidas, descripciones arquitectónicas y funcionales, valores de expensas, servicios, impuestos, precios y demás información, cuyos valores son aproximados. Comprá la casa que querés! No la que podés. Accedé a un préstamo por hasta el 30% del valor de esta propiedad. Simulá tu cuota en lendar

Contactar
1/6

0

USD 160.000

Anatole France 2200

Terreno en Venta en Lanus Este, Lanus

REMAX Raices
  • 219 m² Total
  • Muy Bueno

VENTA LOTE EN LANUS CENTRO PB + 10 PISOS

Corredor responsable: juan carlos treco cucicba 4037 / cmcpdjlm 740 - contacto: daniel lópez lote en venta en la esquina de anatole france y las piedras en lanus centro zonificación distrito s1r1 edificabilidad máxima: 599,50 m2 altura máxima permitida: 33,96 m. Cantidad de pisos: pb + 10 superficie resultante por planta: 60,95 m2 superficie del terreno: 219 m2 frente sobre calle las piedras: 9,75 m frente sobre calle anatole france: 22,55 m ¡Consúltanos para más información! Rau s.R.L. No ejerce el corretaje inmobiliario. El presente sitio web es una plataforma en donde cada oficina inmobiliaria independiente que contrata los servicios re/max puede publicar las propiedades a su cargo. Cada oficina es de propiedad y gestión independiente, por lo que rau s.R.L. No interviene en los datos de la publicación, en la operación inmobiliaria, ni en la confección y/o firma del boleto de compraventa y/o escritura y/o contrato de alquiler. En cumplimiento de las leyes vigentes que regulan el corretaje inmobiliario, ley nacional 25.028, ley 22.802 de lealtad comercial, ley 24.240 de defensa al consumidor, las normas del código civil y comercial de la nación y constitucionales, los agentes/gestores no ejercen el corretaje inmobiliario. Todas las operaciones inmobiliarias son objeto de intermediación y conclusión por parte del corredor público inmobiliario colegiado a cargo de la publicación, cuyos datos se exhiben en la presente. La presente publicación describe las características esenciales del inmueble, debiéndose consultar al corredor público inmobiliario responsable de la operación por la eventual actualización de las medidas, descripciones arquitectónicas y funcionales, valores de expensas, servicios, impuestos, precios y demás información, cuyos valores son aproximados. Comprá la casa que querés! No la que podés. Accedé a un préstamo por hasta el 30% del valor de esta propiedad. Simulá tu cuota en lendar

Contactar
1/23

0

USD 139.000

José Ignacio Rucci 800

Terreno en Venta en Valentin Alsina, Lanus

  • 263 m² Total
  • A Refac.

Lote Terreno Venta Valentin Alsina Lanus 260m2

Corredor responsable: luciano anfuso cmcpdjlz 4311 / cpi 8325 - contacto: german aldo garavelli terreno en venta en valentín alsina, buenos aires - apto crédito este terreno de 263 m² de superficie total, ubicado sobre la calle josé ignacio rucci en valentín alsina, buenos aires, ofrece una excelente oportunidad de inversión o desarrollo. Con una superficie cubierta de 180 m², la propiedad se encuentra en estado a refaccionar o demoler. El terreno cuenta con los servicios básicos de electricidad y gas, lo que facilita su acondicionamiento y puesta en valor. Su estratégica ubicación en valentín alsina, una zona en constante crecimiento y desarrollo, lo convierte en una opción atractiva tanto para proyectos residenciales como comerciales. Esta propiedad, apta para crédito, representa una oportunidad única para aquellos inversores o compradores que buscan un terreno con excelente potencial de valorización en una ubicación privilegiada del conurbano bonaerense. No dude en contactarnos para obtener más información y coordinar una visita. Rau s.R.L. No ejerce el corretaje inmobiliario. El presente sitio web es una plataforma en donde cada oficina inmobiliaria independiente que contrata los servicios re/max puede publicar las propiedades a su cargo. Cada oficina es de propiedad y gestión independiente, por lo que rau s.R.L. No interviene en los datos de la publicación, en la operación inmobiliaria, ni en la confección y/o firma del boleto de compraventa y/o escritura y/o contrato de alquiler. En cumplimiento de las leyes vigentes que regulan el corretaje inmobiliario, ley nacional 25.028, ley 22.802 de lealtad comercial, ley 24.240 de defensa al consumidor, las normas del código civil y comercial de la nación y constitucionales, los agentes/gestores no ejercen el corretaje inmobiliario. Todas las operaciones inmobiliarias son objeto de intermediación y conclusión por parte del corredor público inmobiliario colegiado a cargo de la publicación, cuyos datos se exhiben en la presente. La presente publicación describe las características esenciales del inmueble, debiéndose consultar al corredor público inmobiliario responsable de la operación por la eventual actualización de las medidas, descripciones arquitectónicas y funcionales, valores de expensas, servicios, impuestos, precios y demás información, cuyos valores son aproximados. Comprá la casa que querés! No la que podés. Accedé a un préstamo por hasta el 30% del valor de esta propiedad. Simulá tu cuota en lendar

Contactar