Riobamba al 300

USD 210.000

Venta en Abasto, Rosario

USD 210.000

  • Terreno

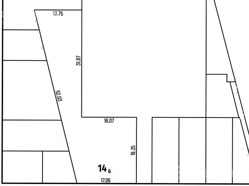
  • 691 m² Total

  • 17 mts Frente

  • 52 mts Fondo

Terreno en Abasto

Terreno En área de Tejido 2. Altura máxima edificable 11.50mts. (PB + 3 pisos).
Superficie: 691m2.
Frente de 17.06mts sobre calle Riobamba.
LAS MEDIDAS, DETALLES CONSTRUCTIVOS E INFORMACIóN EN GENERAL NO SON CONTRACTUALES SIENDO FACTIBLES DE SER MODIFICADAS

Ubicación

Abasto, Rosario, Departamento de Rosario, Santa Fe

Características

  • Long. Frente: 17 m

  • Long. Fondo: 52 m

  • Precio: USD 210.000

  • Sup. Total: 691 m2

  • Agua cloaca
  • Agua corriente
  • Electricidad
  • Luz eléctrica
  • Agua corriente
  • Electricidad
  • Gas natural

Código de aviso: PRO-1384077

Contactá al anunciante

BELTRAN INMOBILIARIA SRL