(1) (1)
  • Pichincha

Venta

PH

Precio

Buscar solo avisos en moneda:

Dorm | 4 amb.

Dormitorios

  • 1
  • 2
  • 3
  • 4
  • 5+

Ambientes

  • Mono.
  • 2
  • 3
  • 4
  • 5+

Más filtros (1) Más filtros

Dormitorios

  • 1
  • 2
  • 3
  • 4
  • 5+

Ambientes

  • Mono.
  • 2
  • 3
  • 4
  • 5+

Características

Superficie cubierta

Cocheras

Baños

Antiguedad

  • Indistinto
  • A estrenar
  • Hasta 5 años
  • Hasta 10 años
  • Hasta 20 años
  • Hasta 30 años
  • Más de 30 años

Nombre de calle y altura

Expensas

$

Servicios

Tipos de ambientes

Tipo de anunciante

Comparte comisión

14 PH en Venta en Pichincha de 4 ambientes

1/5

1

USD 295.000

Brown 2700

PH en Venta en Pichincha, Rosario

EMA Bienes Raices
  • 154,10 m² cubie.
  • 3 dorm.
  • A Estrenar

Venta PH a estrenar 3 dormitorios en Pichincha

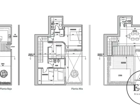
Ubicado en la tranquila calle brown al 2700, en el barrio de pichincha, rosario, este espectacular ph a estrenar combina elegancia y funcionalidad en un entorno privilegiado. Al ingresar, un amplio patio de acceso te recibe con luz natural, creando un ambiente acogedor ideal para disfrutar del aire libre. La cocina, equipada con una isla, es un espacio independiente que ofrece comodidad y una superficie adicional para la preparación de deliciosas comidas. El estar comedor, amplio y versátil, se convierte en el lugar perfecto para compartir momentos en familia o con amigos, complementado por un práctico toilette y un lavadero independiente que se integra con discreción. La planta alta alberga un dormitorio suite, diseñado para brindar comodidad y privacidad, junto a dos dormitorios secundarios equipados con placares empotrados de estilo moderno, que comparten un baño completo. Los baños destacan por sus revestimientos de alta calidad, griferías y sanitarios que priorizan tanto la durabilidad como el diseño. En la impresionante terraza, se encuentra un quincho con parrilla y mesada, ideal para reuniones, además de un solarium y piscina que invitan a relajarse y disfrutar de momentos únicos en la privacidad de tu hogar. Este ph, con una superficie total de 154,10 m² cubiertos y 54,40 m² descubiertos, ofrece un entorno versátil, perfecto para el descanso y las actividades sociales, adaptándose a las necesidades de una vida moderna y plena. Con orientación norte, este inmueble también es apto para crédito y profesional, y cuenta con todas las comodidades necesarias, como agua corriente, gas natural, internet y calefacción, asegurando un estilo de vida confortable. Además, permite mascotas y ofrece un jardín, lo que lo convierte en una opción ideal para quienes buscan un espacio único y acogedor en rosario.

Contactar
1/32

15

USD 105.000

Jujuy 2600

PH en Venta en Pichincha, Rosario

REMAX Exclusivo
  • 100 m² cubie.
  • 3 dorm.
  • 50 años

VENTA PH 3 DORMITORIOS 2 BAÑOS PICHINCHA

Corredor responsable: sebastian pellegrini ci mat n° 571 - contacto: silvestre vitale casa de pasillo en el corazón de pichincha – jujuy al 2600 encantadora propiedad desarrollada en dos plantas, ubicada en una de las zonas más buscadas de rosario. Al ingresar, se accede por un pasillo a un amplio patio techado que funciona como galería y distribuidor. Desde este espacio se accede por escalera a la terraza, la cual cuenta con parrillero, ideal para reuniones al aire libre. En planta baja, la casa dispone de una cocina comedor integrada, conectada a un cómodo living. Desde allí se accede a una habitación luminosa y a un baño completo. La planta alta ofrece dos dormitorios adicionales, bien ventilados, y un segundo baño completo, brindando comodidad y funcionalidad para familias o quienes buscan espacios versátiles. Rau s.R.L. No ejerce el corretaje inmobiliario. El presente sitio web es una plataforma en donde cada oficina inmobiliaria independiente que contrata los servicios re/max puede publicar las propiedades a su cargo. Cada oficina es de propiedad y gestión independiente, por lo que rau s.R.L. No interviene en los datos de la publicación, en la operación inmobiliaria, ni en la confección y/o firma del boleto de compraventa y/o escritura y/o contrato de alquiler. En cumplimiento de las leyes vigentes que regulan el corretaje inmobiliario, ley nacional 25.028, ley 22.802 de lealtad comercial, ley 24.240 de defensa al consumidor, las normas del código civil y comercial de la nación y constitucionales, los agentes/gestores no ejercen el corretaje inmobiliario. Todas las operaciones inmobiliarias son objeto de intermediación y conclusión por parte del corredor público inmobiliario colegiado a cargo de la publicación, cuyos datos se exhiben en la presente. La presente publicación describe las características esenciales del inmueble, debiéndose consultar al corredor público inmobiliario responsable de la operación por la eventual actualización de las medidas, descripciones arquitectónicas y funcionales, valores de expensas, servicios, impuestos, precios y demás información, cuyos valores son aproximados.

Contactar
1/20

20

USD 110.000

Brown 2700

PH en Venta en Pichincha, Rosario

REMAX Exclusivo
  • 88 m² cubie.
  • 3 dorm.
  • 50 años

VENTA CASA PASILLO 3 DORMITORIOS C/PATIO PICHINCHA

Corredor responsable: sebastian pellegrini ci mat n° 571 - contacto: mariana rodriguez peña venta de hermoso pasillo en planta baja de 3 dormitorios con patio y acceso a terraza exclusiva – zona pichincha, rosario ubicado sobre calle brown, en una de las zonas más buscadas de rosario, rodeado de espacios verdes, este pasillo en planta baja ofrece comodidad, luz natural y un entorno tranquilo. En el pasillo hay solo 2 unidades. Ingresamos a un living comedor que da a la cocina. Los ambientes son luminosos ya que todos dan al patio con ventanales. En planta baja hay 2 dormitorios con baño completo. En planta alta hay un 3er dormitorio muy luminoso, con posibilidad de hacer un 4to dormitorio. Terraza exclusiva, ideal para hacer un quincho, parrillero. La casa tiene mucho potencial , ya que no es ph, se puede modificar. Es apta credito. Mejoras realizadas recientemente: la propiedad cuenta con la adecuacion de gas. Reciclada la cocina excelente estado general superficies: superficie total: 96 m² superficie cubierta: 88 m² terraza: 30 m² (aprox.) Ubicación privilegiada: pichincha la zona mas buscada, con fácil acceso a parques, restaurantes, centros comerciales, instituciones educativas y transporte público. Una oportunidad única para quienes buscan vivir con independencia y espacios al aire libre, en una de las mejores ubicaciones de la ciudad. Consultanos para coordinar una visita o solicitar más información. Apta credito! Rau s.R.L. No ejerce el corretaje inmobiliario. El presente sitio web es una plataforma en donde cada oficina inmobiliaria independiente que contrata los servicios re/max puede publicar las propiedades a su cargo. Cada oficina es de propiedad y gestión independiente, por lo que rau s.R.L. No interviene en los datos de la publicación, en la operación inmobiliaria, ni en la confección y/o firma del boleto de compraventa y/o escritura y/o contrato de alquiler. En cumplimiento de las leyes vigentes que regulan el corretaje inmobiliario, ley nacional 25.028, ley 22.802 de lealtad comercial, ley 24.240 de defensa al consumidor, las normas del código civil y comercial de la nación y constitucionales, los agentes/gestores no ejercen el corretaje inmobiliario. Todas las operaciones inmobiliarias son objeto de intermediación y conclusión por parte del corredor público inmobiliario colegiado a cargo de la publicación, cuyos datos se exhiben en la presente. La presente publicación describe las características esenciales del inmueble, debiéndose consultar al corredor público inmobiliario responsable de la operación por la eventual actualización de las medidas, descripciones arquitectónicas y funcionales, valores de expensas, servicios, impuestos, precios y demás información, cuyos valores son aproximados.

Contactar
1/9

5

USD 295.000

Brown 2761

PH en Venta en Pichincha, Rosario

 Excellence Servicios Inmobiliarios
  • 154 m² cubie.
  • 3 dorm.
  • A Estrenar

VENTA CASA 3 DORMITORIOS CON PATIO Y TERRAZA A ESTRENAR

[Ragusa-1844] ubicacion emplazada en un entorno activo y de fácil acceso, rodeada de propuestas gastronómicas, culturales y comerciales. Su proximidad a áreas verdes ofrece la posibilidad de disfrutar del aire libre sin alejarse de la ciudad, con excelente conectividad y variedad de servicios. Una vivienda que combina diseño, confort y practicidad, ideal para quienes buscan un hogar moderno con alma cálida y detalles que marcan la diferencia. Descripcion brown 2761 | vivienda nueva de pasillo una propuesta moderna, luminosa y funcional, pensada para disfrutar cada espacio con comodidad y calidez. Esta vivienda de pasillo es una unidad completamente nueva, construida desde sus cimientos y diseñada con un estilo contemporáneo que combina materiales nobles, luz natural y una excelente organización de ambientes. Características generales superficie total: 223,70 m² cubierta: 154,10 m² semicubierta: 15,20 m² descubierta: 54,40 m² desarrollada en tres niveles: planta baja con patio, planta alta y terraza con quincho y piscina. Planta baja al ingresar, un amplio patio de acceso recibe con luz natural y un entorno acogedor, ideal para relajarse al aire libre. La cocina con isla se presenta como un ambiente moderno, funcional y bien equipado, conectando con el estar-comedor, un espacio amplio y versátil para compartir momentos cotidianos en familia o con amigos. Además, cuenta con toilette de recepción y lavadero independiente con acceso desde la cocina, diseñado con orden y discreción. Planta alta la suite principal ofrece comodidad y privacidad, con baño propio y un ambiente cálido y funcional. Los dormitorios secundarios, con placares empotrados de estilo moderno y gran capacidad de guardado, comparten un baño completo. Los detalles y terminaciones se destacan por su diseño y durabilidad: revestimientos de calidad, griferías y sanitarios de primera línea. Terraza un verdadero espacio de disfrute al aire libre. El quincho está equipado con parrilla, mesada con bacha y espacio para una gran mesa, ideal para reuniones y celebraciones. El sector de solárium y piscina invita a relajarse y disfrutar de momentos únicos en la privacidad del hogar. Un entorno versátil y acogedor, pensado tanto para el descanso como para actividades sociales. Entrega estimada 02/2027 excellence servicios inmobiliarios matias jesus ragusa cci mat1269 te brindamos un servicio distinto, personalizado y realmente enfocado en tus necesidades . Los datos de las publicaciones deberan ser corroborados en la visita de la propiedad por la persona interesada . Toda la información y medidas provistas son aproximadas y deberán ratificarse con la documentación pertinente y no compromete contractualmente a nuestra empresa. Los gastos (expensas, api, tgi, aguas, etc.) Expresados, como asi tambien los servicios y el estado de conservacion refieren a la última información recabada y deberán confirmarse. Fotografías no vinculantes ni contractuales.

Contactar