-
Oficina
Oficina
-
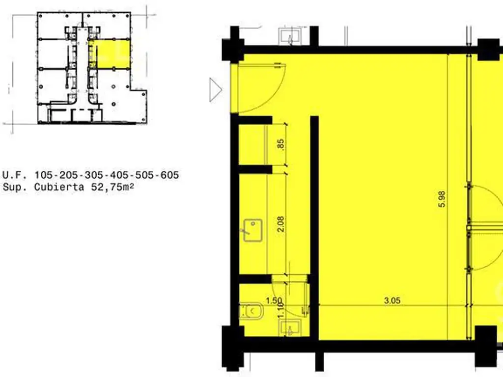
53 m² Cubierta
53 m² cubie.
-
1 baño
1 baño
-
A Estrenar
A Estrenar
-
Monoambiente
Monoam.
-
Con seguridad
seguridad
Oficina - Lomas De Zamora
Consulte Anticipo y 48 Cuotas
Se adapta fácilmente a las necesidades de cada inversor incluyendo a los más pequeños. Consúltenos para mayor información.
Oficinas de 20 m2, 35 m2, 41 m2,58 m2, 100 m2, 145 m2 y 367 m2. Cada una con su baño privado. En PB hay un gran Local comercial con cocheras de uso exclusivo.
Desarrollado en dos subsuelos, Planta Baja y 16 pisos, dos de ellos cuentan con una gran terraza de uso privado.
Edificio dispuesto en la esquina de Av. Hipólito Yrigoyen y Juan José Castelli. Cercano a la plaza principal de Lomas de Zamora, a Juzgados Municipales y Tribunales de Familia. Ubicado a metros del Policlínico de Lomas de Zamora, a tres cuadras del Hospital Británico y a dos cuadras del Consejo Profesional de Ciencias Económicas.
Vea las plantas en las imágenes y brochure adjuntos.
CMCPLZ Mat 3963 / 3964
CUCICBA Mat 8182 / 8184
Las fotos no son vinculantes ni contractuales. Las medidas y superficies son aproximadas y no pueden ser consideradas como definitivas ni tienen carácter contractual entre las partes, las mismas surgen del Estado Parcelario y la documentación correspondientes. Esta información (imágenes, superficies y medidas) se expone y publica a mero efecto orientativo.
Ubicación
Características
-
Seguridad
-
Cant. Baños: 1
-
Apto Profesional
Superficie
-
Sup. Planta: 53 m2
Ambientes de la oficina
- Baño
Servicios de la Oficina
- Agua corriente
- Electricidad
- Seguridad
Código de aviso: 382788