(1) (1)
  • Uruguay

Venta

Negocio Especial

Precio

Buscar solo avisos en moneda:

Dorm|Amb

Más filtros Más filtros

Nombre de calle y altura

Tipo de anunciante

Comparte comisión

45 Negocios Especiales en Venta en Uruguay

1/7

10

USD 2.083.184

25 de Mayo entre Juncal y Ciudadela

Negocio especial en Venta en Ciudad Vieja, Montevideo

Soldati Conecta

Edificio Completo de Oficina en Venta - Ciudad Vieja, Montevideo

Zona veinticinco es un espacio para instalación de oficinas multifuncionales. La dimensión de sus unidades habilita a una real accesibilidad a profesionales de todo tipo. Ubicado en la calle 25 de mayo, la calle con mayor crecimiento edilicio en oficinas de este tipo. Se caracteriza por su luz, su confort y su ubicación. Las dimensiones acotadas del edificio propician de manera relevante su accesibilidad. Es un edificio destinado a oficinas y servicios afines, dentro de los cuales se cuentan salas de reuniones y un nivel de subsuelo destinado a estacionamientos y áreas de servicio. El edificio se organiza en dos crujías que ocupan todo el ancho del terreno, que se vinculan mediante un núcleo central que contiene las circulaciones verticales y las áreas de servicio. El área destinada a oficinas (área a comercializar) se entrega con piso técnico, cielo raso e instalación para aire acondicionado. El baño de cada oficina es completo incluyendo pisos, revestimientos, mesadas, aparatos, griferías, accesorios y espejos. Http: zona25.Net/ aviso legal: los valores de las expensas, impuestos y servicios, las fotos y medidas, y los datos sobre la arquitectura y funcionamiento de esta propiedad son todos aproximados. Pueden no estar actualizados al momento de su visualización, ya que fueron brindados por el propietario a la hora de su publicación. Todo interesado deberá comprobar los datos antes de realizar cualquier operación. Martillero leandro soldati cucicba 1544 martillero alejandro milhas cmcpsi 4437

Contactar
1/10

1

USD 500.000

Cerrito al 300

Negocio especial en Venta en Ciudad Vieja, Montevideo

Situar

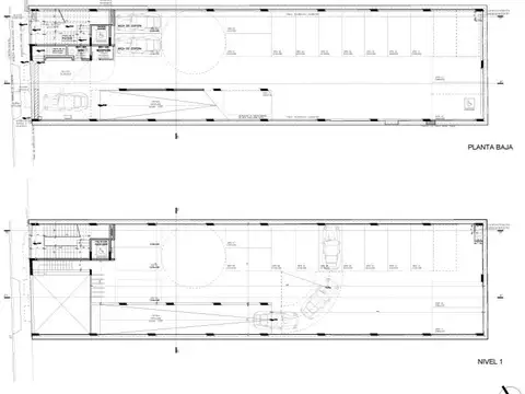
Edificio comercial con cocheras en Montevideo Uruguay.

Garage en venta con disponibilidad para 28 cocheras, ciudad vieja, montevideo, uruguay. Excelente. Se vende importante parking en el corazón de la ciudad vieja de montevideo, zona histórica, rodeada de entidades financieras e instituciones gubernamentales. El parking cuenta con 28 sitios de estacionamientos desarrollados en 2 plantas, planta baja y nivel 1. Incluye servicio lavadero y se proveen lugares de carga para coches híbridos o eléctricos. El proyecto se diseñó recientemente, demoliendo una construcción en su totalidad y dando lugar a este moderno y funcional diseño. Descripción nivel 1. Planta baja 455?M2 en la planta baja se sitúan: estacionamientos cabina de control + servicio del personal 1 escalera interna del estacionamiento hueco para un ascensor (previsión por accesibilidad) reserva inferior de agua en el nivel 1 se sitúan: escalera de acceso a viviendas estacionamientos 1 escalera interna del estacionamiento hueco para un ascensor. Financiacion. Usd250.000 al contado y financiación de u$d250.000 en cuotas en dólares. 48 cuotas u$d6250 o 60 cuotas u$d5208 o 72 cuotas u$d4513.Con posibilidad de pagar/autofinanciarse con la explotación del lugar. *Situar tu lugar en el mundo. Juana manso 1626, puerto madero . Nota: situar propiedades s.A. No ejerce el corretaje inmobiliario. En cumplimiento de las leyes vigentes que regulan el corretaje inmobiliario, ley nacional 25.028, ley 22.802 de lealtad comercial, ley 24.240 de defensa al consumidor, las normas del código civil y comercial de la nación y constitucionales, los agentes/gestores no ejercen el corretaje inmobiliario. Todas las operaciones inmobiliarias son objeto de intermediación y conclusión por parte del corredor público inmobiliario colegiado a cargo de la publicación, cuyos datos se exhiben en la presente. Matrícula cpi 4.518. Situar tu lugar. Matrícula cpi 4.518. En cumplimiento de las leyes vigentes que regulan el corretaje inmobiliario, ley nacional 25.028, ley 22.802 de lealtad comercial, ley 24.240 de defensa al consumidos, las normas del código civil y comercial de la nación y constitucionales, los agentes/gestores no ejercen el corretaje inmobiliario. Todas las operaciones inmobiliarias son objeto de intermediación y conclusión por parte de los corredores públicos inmobiliarios colegiados, cuyos datos se exhiben en cada publicación de propiedad objeto de comercialización. Nota importante: toda la información y medidas provistas son aproximadas y deberán ratificarse con la documentación pertinente y no compromete contractualmente a nuestra empresa. Fotografías no vinculantes ni contractuales.

Contactar
1/10

1

USD 600.000

Espinillo

Negocio especial en Venta en La Pedrera, Rocha

Palacio Viviendas y Galpones

COMPLEJO "LA PEDRERITA" EN VENTA A SOLO UNOS PASOS DEL MAR -

Complejo "la pedrerita" en venta a solo unos pasos del mar - la pedrera, uruguay se trata de una oportunidad única para inversionistas alquiler vacacional con alta rentabilidad, combinable con las propias vacaciones, costo de mantenimiento flexible e infraestructura y management establecidos consta de 3 propiedades de primera calidad en construcción maciza, parte con muros de concreto y canto rodado en construcción encadenada al médano son 2 solares unificados en 1 solo padrón de 800 m 2 abarcando esquina de rambla cabo polonio y espinillo (calle de la playa el desplayado) las 3 propiedades son totalmente independientes con sus exclusivos jardines, terrazas y parkings propios, y son a su vez combinables entre sí según los requerimientos de los huéspedes, brindando múltiples oportunidades de alojamiento: - departamento (capacidad para 2 personas) - chalet (capacidad para 5 6 personas) - jardín de alá (capacidad para 6 personas) el departamento inteligentemente diseñado sobre el médano que baja hacia el jardín de alá y conectado independientemente con portera de madera al quincho del chalet, cuenta con párking y salida a la calle de la playa desplayado, a pasos del mar. Comodidades: - comedor estar con frigobar - espacioso dormitorio integrado con cama matrimonial - tv led - 1 baño con ducha y termotanque eléctrico - kitchenette independiente con anafe de 2 hornallas y microondas - terraza/solarium con horno de barro y parrilla y comedor de exterior - duchero de playa externo - gran terraza panorámica arriba por escalera - parking de auto con pequeño jardín el chalet hermoso chalet elegantemente decorado en estilo portugués y provenzal moderno, pensado en la comodidad y en la vida de playa de la pedrera. Sus características más apreciadas son el gran quincho con parrilla súper size, la privacidad que brindan los jardines hacia la calle de la playa desplayado y su salida directa a la rambla, a pasos del mar. Comodidades: - cocina espaciosa con 2 mesadas de granito, heladera con freezer, cocina con horno de acero inoxidable, microondas, cafetera, etc living comedor con 1 sofá cama hogar a leña, tv, etc - 1 baño con ducha y termotanque eléctrico - 1 dormitorio principal con cama matrimonial y vestidor independiente - 1 dormitorio con 2 camas marineras 1 cama single ( con vestidor - duchero de playa exterior y lavadero - gran parrillero uruguayo - quincho comedor con pileta de mesada de granito - terrazas y jardines - garage con herramientas y jardinería - parking para 3 autos el jardín de alá construcción cubista moderna y de arquitectura elaborada, detalles de gran categoría. La característica más apreciada es la privacidad y libertad que se disfruta en su exclusivo parque arbolado con bosque propio, cercado con muros blancos, filas de árboles y canteros de flores y palmeras, exclusividad única que brinda una total intimidad, tranquilidad y seguridad. Comodidades: - hall de entrada y living con puertas ventanales al jardín con 1 sofá cama y tv. - Cocina comedor espacioso, estar con 1 sofá cama y biblioteca, heladera con freezer, microondas, cafetera, cocina con horno de acero inoxidable, mesada de granito. - 2 baños con ducha y termotanque eléctrico. - 1 dormitorio principal con cama king size, tv y placard empotrado. - 1 dormitorio con 2 camas single. - Terraza con gran parrillero y comedor de exterior. - Duchero de playa externo y lavadero. - Sala multiusos independiente con lavandería. - Terrazas y jardines con muebles de jardín. - Bomba de irrigación de agua para todo el complejo. - Gran parque arbolado y bosque de eucaliptus propio. - Parking para autos. Para más información, contactanos: whatsapp: / e-mail: instagram: @palaciopropiedades facebook: palacio propiedades atención oficina de 10 a 17hs. *Las imágenes son de carácter ilustrativas. Las medidas, superficies y características son orientativas*

Contactar
1/17

1

USD 150.000

AV. ROOSEVELT , Piso 2

Negocio especial en Venta en Punta del Este, Maldonado

ANTONIO MIERES NEGOCIOS INMOBILIARIOS

Venta apartamento en Pozo - Av Roosevelt

Venta de edificio en roosevelt, punta del este. Ubicado sobre avenida roosevelt, golden rise es un moderno desarrollo pensado para quienes buscan confort, calidad y funcionalidad en cada detalle. El proyecto ofrece unidades monoambiente, de 1 y 2 dormitorios, diseñadas con materiales de primera línea y terminaciones superiores, ideales tanto para vivienda propia como para inversión. Los apartamentos cuentan con aberturas en aluminio anodizado europeo con doble vidrio, carpintería interior en madera, pisos y revestimientos de alta calidad, preinstalación de aire acondicionado, y cocinas equipadas con anafe, horno, campana y calefón. Los dormitorios incluyen placares con interiores finamente terminados y los baños presentan artefactos sanitarios y griferías de primer nivel. Las cocheras se comercializan por separado, y los gastos de ocupación, que incluyen alhajamiento y planos, corresponden a un 7%. Además, el proyecto ofrece financiación en hasta 44 cuotas, brindando una excelente oportunidad de acceso a una inversión segura y de gran proyección. Golden rise combina estilo contemporáneo y bienestar, ofreciendo una amplia gama de servicios y amenities premium: recepción 24 hs y sistema de video vigilancia cctv wi-fi en áreas comunes parque privado piscina interior climatizada y piscinas exteriores sauna húmedo y seco sala de spa e hidromasajes gimnasio completamente equipado barbacoas de uso común kid's house, playroom y sala de entretenimiento salas de reuniones y lavandería juegos infantiles, cancha de pádel y parque para mascotas un proyecto pensado para disfrutar cada día, con el equilibrio perfecto entre confort, diseño y calidad de vida.

Contactar
1/10

0

USD 175.425

Migueletes y Defensa LOCAL Comercial 100

Negocio especial en Venta en Tres Cruces, Montevideo

Alpha Realtors

Edificio tres cruces plaza se ubica en la esquina de miguelete y defensa con frente a ambas calles. Contará con unidades al frente y contrafrente de 1 y 2 dormitorios en los primeros 4 niveles, unidades tipo pent house de 2 y 3 dormitorios en el nivel 5, más locales en planta baja y garajes en sub suelo. La obra recién inicio y para la entrega se calculan entre 20 y 24 meses de obra. Respecto a la forma de pago, el formato de fideicomiso propone una financiación durante la obra que se ajusta a un cronograma de pagos. Se integra el costo en cuotas durante la obra y hasta su finalización. La forma de pago es 30% al adherir al fideicomiso 10 cuotas bimestrales de 7% durante la obra. Ten en cuenta que el costo estimado ya incluye gastos de ocupación y conexiones, fondo de garantía post obra. Edificio tres cruces plaza • unidades al frente y contrafrente de 1 y 2 dormitorios. • Unidades penthouse duplex de 2 y 3 dormitorios. • Locales comerciales en planta baja. • Acceso por calle defensa. • Plaza exterior con jardines y juegos para niños. • Salón con parrillero. • Sala de cowork. • Salas de estar y juegos. • Estacionamiento para bicicletas. • Estacionamientos techados de cómodo acceso. • Superficies de apartamentos más amplias que el resto del mercado. • Espacios con distribución funcional y amplias terrazas. • Diseño contemporáneo con excelentes terminaciones. Construcción al costo con beneficios ley 18.795 • invierta en un apartamento al costo por debajo del valor de mercado. • Seguridad jurídica y financiera del sistema de fideicomiso de construcción al costo. • Informes bimestrales de seguimiento de costo y avance de obra. • Financia con un aporte inicial del 30% más 10 cuotas bimestrales. • Exoneración de itp (2% sobre valor de catastro). • Exoneración de iva. • Exoneración de impuesto al patrimonio por 10 años. • Exoneración de impuesto a la renta del alquiler por 10 años (irpf/irae). • Exoneración de impuesto a la renta en la primera venta (irae).

Contactar
1/10

0

USD 289.921

Migueletes y Defensa LOCAL

Negocio especial en Venta en Tres Cruces, Montevideo

Alpha Realtors

Edificio tres cruces plaza se ubica en la esquina de miguelete y defensa con frente a ambas calles. Contará con unidades al frente y contrafrente de 1 y 2 dormitorios en los primeros 4 niveles, unidades tipo pent house de 2 y 3 dormitorios en el nivel 5, más locales en planta baja y garajes en sub suelo. La obra recién inicio y para la entrega se calculan entre 20 y 24 meses de obra. Respecto a la forma de pago, el formato de fideicomiso propone una financiación durante la obra que se ajusta a un cronograma de pagos. Se integra el costo en cuotas durante la obra y hasta su finalización. La forma de pago es 30% al adherir al fideicomiso 10 cuotas bimestrales de 7% durante la obra. Ten en cuenta que el costo estimado ya incluye gastos de ocupación y conexiones, fondo de garantía post obra. Edificio tres cruces plaza • unidades al frente y contrafrente de 1 y 2 dormitorios. • Unidades penthouse duplex de 2 y 3 dormitorios. • Locales comerciales en planta baja. • Acceso por calle defensa. • Plaza exterior con jardines y juegos para niños. • Salón con parrillero. • Sala de cowork. • Salas de estar y juegos. • Estacionamiento para bicicletas. • Estacionamientos techados de cómodo acceso. • Superficies de apartamentos más amplias que el resto del mercado. • Espacios con distribución funcional y amplias terrazas. • Diseño contemporáneo con excelentes terminaciones. Construcción al costo con beneficios ley 18.795 • invierta en un apartamento al costo por debajo del valor de mercado. • Seguridad jurídica y financiera del sistema de fideicomiso de construcción al costo. • Informes bimestrales de seguimiento de costo y avance de obra. • Financia con un aporte inicial del 30% más 10 cuotas bimestrales. • Exoneración de itp (2% sobre valor de catastro). • Exoneración de iva. • Exoneración de impuesto al patrimonio por 10 años. • Exoneración de impuesto a la renta del alquiler por 10 años (irpf/irae). • Exoneración de impuesto a la renta en la primera venta (irae).

Contactar
1/20

0

USD 3.900.000

Ruta 12, Maldonado

Negocio especial en Venta en Maldonado, Departamento de Maldonado

Alpha Realtors

Venta Chacra hotel Boutique en Laguna Del Sauce, Ruta 12

Esta hermosa propiedad se encuentra ubicada sobre la sierra de la ballena, acceso directo por ruta 12, a 5 minutos de viaje en automóvil de playa solanas y del campo de golf club del lago, 10 minutos del aeropuerto internacional de laguna del sauce y a 20 minutos del centro de punta del este. Solar exclusivo de 7.2 hectáreas con vista privilegiada sobre la laguna del sauce. Su ubicación y características lo hacen apto para diversos emprendimientos productivos, de los cuales algunos ya están en explotación. Visión: una forma de vida especial. Exclusivo en uruguay, el emprendimiento reconoce la necesidad de una vida activa para personas mayores de 55 años. Una vida completa, sin los problemas de mantenimiento de una casa familiar y muy diferente a un concepto de residencial para adultos tradicional. Ofrece un estilo de vida de club de campo con variados servicios y actividades disponibles para sus huéspedes permanentes. Chacra boutique - primera etapa del proyecto ejecutada el antiguo casco del año 1977 fue reciclado a nuevo en los años 2013 y 2014. Adicionalmente, en 2014 se han construido dos (2) bungalows de lujo de 92 m2 c/u. Se trata de un emprendimiento productivo en actividad y con proyecto de expansión aprobado - un hermoso casco central alberga 6 suites de lujo con baño + 2 casas de huéspedes. - Sala de recepción con terraza techada. - Salón comedor con estufa a leña tallada en piedra, una verdadera obra de arte, cava de vinos y winebar. - Tallas en piedras de bali y piscina en piedra volcánica y quartizita únicas en uruguay. - Spa completo con vestuarios, sala de relax, sala de masajes y baños terapéuticos. Opción de utilizarse como 2 grandes suites adicionales - coscina profesional equipada y área de servicios. - Patio interior con fuentes - losa radiante eléctrica, calefacción por agua caliente preinstalada, aire acondicionado en todos los ambientes. - Baños en marmol, porcelanatos y estuco veneciano - ventanas dvh en las suites y sala de recepción. La propiedad incluye alarma y circuito cerrado de tv con 16 cámaras. La vida en la finca se mueve a su propio ritmo. El clima siempre es "bueno", porque el entorno es hermoso, llueva o truene. La inspiración para levantarse y moverse está en todas partes, equitación, golf, bicicleta de montaña, natación, viñedos; luego relájese en el spa con piedras de bali. Muy importante : se cuenta con permiso de obra y proyecto detallado para la construcción de 26 suites adicionales. 2 - viñedo, bodega, cannabis - segunda etapa proyecto como elemento característico de época y dejando una huella del pasado, dentro del parque existe una construcción y ruinas en piedra con 200 años de antigüedad. Zona prevista para la futura bodega de vinos, haras y turismo canábico. Area propicia para cultivo de 3 hectáreas, viñedos, cannibis. En resumen, se trata de un área total construida techada de 1.300 m2. Parque de 7.2 hectáreas con 25 variedades de árboles añejos. Consúltenos y le asesoraremos: - información sobre el emprendimiento y su segmento objetivo (único en uruguay) - información adicional sobre el proyecto y permisos ya aprobados - documentación y planos honorarios inmobiliarios: 3% +iva ¡Llámenos para conocer más en detalle esta propiedad! Tel: + email: alpha realtors

Contactar
1/17

0

USD 179.000

Migueletes y Defensa 2 dorm. con

Negocio especial en Venta en Tres Cruces, Montevideo

Alpha Realtors

Venta Apto 2 dormitorios Tres Cruces

Edificio tres cruces plaza se ubica en la esquina de miguelete y defensa con frente a ambas calles. Contará con unidades al frente y contrafrente de 1 y 2 dormitorios en los primeros 4 niveles, unidades tipo pent house de 2 y 3 dormitorios en el nivel 5, más locales en planta baja y garajes en sub suelo. La obra recién inicio y para la entrega se calculan entre 20 y 24 meses de obra. Respecto a la forma de pago, el formato de fideicomiso propone una financiación durante la obra que se ajusta a un cronograma de pagos. Se integra el costo en cuotas durante la obra y hasta su finalización. La forma de pago es 30% al adherir al fideicomiso 10 cuotas bimestrales de 7% durante la obra. Ten en cuenta que el costo estimado ya incluye gastos de ocupación y conexiones, fondo de garantía post obra. Edificio tres cruces plaza • unidades al frente y contrafrente de 1 y 2 dormitorios. • Unidades penthouse duplex de 2 y 3 dormitorios. • Locales comerciales en planta baja. • Acceso por calle defensa. • Plaza exterior con jardines y juegos para niños. • Salón con parrillero. • Sala de cowork. • Salas de estar y juegos. • Estacionamiento para bicicletas. • Estacionamientos techados de cómodo acceso. • Superficies de apartamentos más amplias que el resto del mercado. • Espacios con distribución funcional y amplias terrazas. • Diseño contemporáneo con excelentes terminaciones. Construcción al costo con beneficios ley 18.795 • invierta en un apartamento al costo por debajo del valor de mercado. • Seguridad jurídica y financiera del sistema de fideicomiso de construcción al costo. • Informes bimestrales de seguimiento de costo y avance de obra. • Financia con un aporte inicial del 30% más 10 cuotas bimestrales. • Exoneración de itp (2% sobre valor de catastro). • Exoneración de iva. • Exoneración de impuesto al patrimonio por 10 años. • Exoneración de impuesto a la renta del alquiler por 10 años (irpf/irae). • Exoneración de impuesto a la renta en la primera venta (irae).

Contactar
1/17

0

USD 248.000

Migueletes y Defensa 3 dorm. con

Negocio especial en Venta en Tres Cruces, Montevideo

Alpha Realtors

Venta Apto 2 dormitorios Tres Cruces

Edificio tres cruces plaza se ubica en la esquina de miguelete y defensa con frente a ambas calles. Contará con unidades al frente y contrafrente de 1 y 2 dormitorios en los primeros 4 niveles, unidades tipo pent house de 2 y 3 dormitorios en el nivel 5, más locales en planta baja y garajes en sub suelo. La obra recién inicio y para la entrega se calculan entre 20 y 24 meses de obra. Respecto a la forma de pago, el formato de fideicomiso propone una financiación durante la obra que se ajusta a un cronograma de pagos. Se integra el costo en cuotas durante la obra y hasta su finalización. La forma de pago es 30% al adherir al fideicomiso 10 cuotas bimestrales de 7% durante la obra. Ten en cuenta que el costo estimado ya incluye gastos de ocupación y conexiones, fondo de garantía post obra. Edificio tres cruces plaza • unidades al frente y contrafrente de 1 y 2 dormitorios. • Unidades penthouse duplex de 2 y 3 dormitorios. • Locales comerciales en planta baja. • Acceso por calle defensa. • Plaza exterior con jardines y juegos para niños. • Salón con parrillero. • Sala de cowork. • Salas de estar y juegos. • Estacionamiento para bicicletas. • Estacionamientos techados de cómodo acceso. • Superficies de apartamentos más amplias que el resto del mercado. • Espacios con distribución funcional y amplias terrazas. • Diseño contemporáneo con excelentes terminaciones. Construcción al costo con beneficios ley 18.795 • invierta en un apartamento al costo por debajo del valor de mercado. • Seguridad jurídica y financiera del sistema de fideicomiso de construcción al costo. • Informes bimestrales de seguimiento de costo y avance de obra. • Financia con un aporte inicial del 30% más 10 cuotas bimestrales. • Exoneración de itp (2% sobre valor de catastro). • Exoneración de iva. • Exoneración de impuesto al patrimonio por 10 años. • Exoneración de impuesto a la renta del alquiler por 10 años (irpf/irae). • Exoneración de impuesto a la renta en la primera venta (irae).

Contactar
1/19

0

USD 588.000

Consultar dirección

Negocio especial en Venta en Ciudad Vieja, Montevideo

Alpha Realtors

Ubicado en un punto estratégico de la ciudad vieja, a tan solo 2 cuadras de la emblemática plaza independencia, se encuentra este edificio en venta, ideal para inversionistas que buscan un retorno inmediato. Con una estructura sólida de hormigón y un excelente estado de conservación, la propiedad se distribuye en tres plantas más un subsuelo que alberga un local comercial de 200 m², equipado con un depósito y bodega de seguridad. En la planta baja, se presenta un amplio vestíbulo que da acceso a un área de oficinas, cocina- comedor, sala de reuniones y 2 baños, ofreciendo la opción de reformar este espacio y convertirlo en 2 apartamentos turísticos. El 1er piso cuenta con 3 oficinas funcionales, cada una con su propio baño, actualmente alquiladas, lo que garantiza una rentabilidad inmediata. En el 2do piso se encuentran 2 monoambientes amplios y luminosos, uno de los cuales también está alquilado la propiedad ofrece un total de 656 m² cubiertos, con servicios como agua corriente, internet, aire acondicionado, cámaras de cctv y un sistema de desagüe cloacal, lo que la convierte en un espacio apto para uso profesional y comercial. Además es apta para créditos, lo que facilita aún más su adquisición. Esta es una oportunidad única para aquellos que buscan invertir en una de las zonas más dinámicas de la ciudad. ¡Llámenos para conocer más en detalle esta propiedad! Tel: email: alpha realtors www.Alpharealtors.Uy

Contactar
1/10

0

USD 136.620

Av.Gral Rivera 4100

Negocio especial en Venta en Buceo, Montevideo

Alpha Realtors

Venta apartamento 1 dormitorio

Lumen es una propuesta innovadora que redefine el estilo de vida urbano en montevideo, ofreciendo apartamentos de alta calidad que destacan por su diseño moderno y funcionalidad. Con acabados de primer nivel y una distribución inteligente que maximiza la luz natural, lumen se convierte en el espacio perfecto para quienes buscan confort y elegancia en su hogar. Ubicado a solo dos cuadras de la rambla, este proyecto goza de una ubicación privilegiada que combina la vitalidad de la vida urbana con la serenidad del entorno costero. Rodeado de emblemáticos barrios como pocitos, buceo y malvín, lumen ofrece acceso inmediato a montevideo shopping, centros educativos, comercios y servicios, convirtiéndose en un punto estratégico para aquellos que desean disfrutar de la comodidad de la ciudad sin renunciar a la tranquilidad. La unidad de referencia 102 se ubica al frente y cuenta con una superficie total de 41.66 m², de los cuales 35 m² son cubiertos, posee 1 dormitorio y 1 baño, además, se ofrece financiación, lo que facilita la inversión en este excepcional proyecto en construcción. Lumen es el lugar ideal para quienes buscan calidad, confort y proyección en su inversión inmobiliaria. Consulte por otras unidades. Entrega mayo 2027 costos de conexión 4,5% honorarios inmobiliarios 3% + iva ¡Llámenos para conocer más en detalle esta propiedad! Tel: email: alpha realtors www.Alpharealtors.Uy

Contactar