(1) (1)
  • Turdera

Venta

Local

Precio

Buscar solo avisos en moneda:

Dorm|Amb

Más filtros Más filtros

Características

Superficie total

Nombre de calle y altura

Expensas

$

Tipo de urbanización

Plantas

Servicios

Tipos de ambientes

Estado de obra

Tipo de anunciante

Comparte comisión

11 Locales en Venta en Turdera

1/1

2

USD 35.000

Esquiu 300

Local en Venta en Turdera, Lomas De Zamora

CASTINEIRAS PROPIEDADES
  • 28 m² Total
  • 1 planta
  • 1 baño

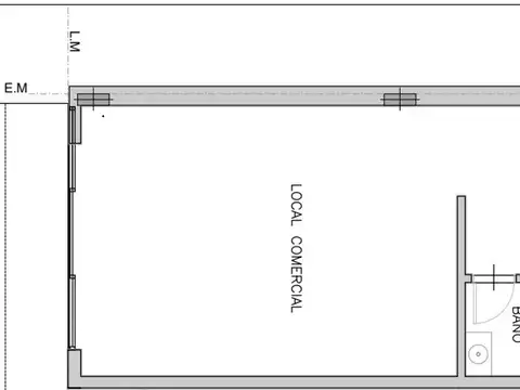
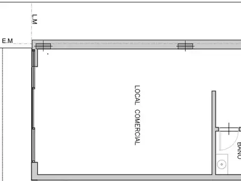
Venta - 2 Locales frente a estación de Turdera - A 150 mts. de Av. H. Irigoyen - Sin Expensas

2 locales por u$s 70.000.- 1 local por u$s 35.000.- Local lado derecho:  u$s 35.000.- Al ingreso, cortina ciega con puerta ciega de ingreso, y luego, frente de vidreado con otra puerta de ingreso. Ambiente principal ( 3.20 x 7 ) +  salon privado ( 2 x 2 ) = 26.40 m2        baño ( 1.20 x 1.15 ) con pileta de lavado e inodoro. Altura: 3.50 metros.  Falta mantenimiento general y mejorar la instación eléctrica. Sin expensas ex zapatería     ( años trabajando en el mismo lugar ) local lado izquierdo: u$s 35.000.- Al ingreso, cortina ciega con puerta ciega de ingreso, y luego, frente de vidreado con otra puerta de ingreso. Ambiente principal ( 7 x 3 ) + ambiente privado ( 3 x 3,70 ) =  32,1 m2 ( incluye el baño ) baño ( 1 x 1 ) con pileta de lavado e inodoro. Altura: 3,50 m2. Ex casa de informatica     ( años trabajando en el mismo lugar )   y   bicicletería los ultimos 2 años. No dude en consultarnos, es una buena oportunidad   ubicacion: a 150 metros de avda. Hipólito yrigoyen, frente a la estación de ferrocarril de turdera, 400 metros de plaza de turdera y con varios colegios en la zona. (( Distancias y medidas aproximadas. Fotos y videos a modo ilustrativo. Los artefactos y accesorios de la propiedad serán a negociar con el vendedor, no necesariamente quedan en la propiedad )). Castiñeiras propiedades o

Contactar
1/8

0

USD 64.239

Avenida 9 de Julio 500

Local en Venta en Turdera, Lomas De Zamora

  • 35 m² Total
  • 1 año
  • 1 baño

EMPRENDIMIENTO DE POZO - LOCAL COMERCIAL AL FRENTE

Corredor responsable: luciano anfuso cmcpdjlz 4311 / cpi 8325 - contacto: candela valdez bienvenido a tu nuevo hogar en temperley; donde el confort y diseño se hacen realidad. Ubicación: sobre la avenida 9 de julio; a pocos metros del bajo nivel manuel belgrano, a 400m de la av. Hipólito yrigoyen, a 500m del parque finky y cercano de la estación de trenes de temperley. Localización muy buscada por usuarios finales de vivienda o rentistas. Planta baja: -1 local comercial al frente de 35m2 cubiertos. -6 cocheras 1er piso y 2do piso: - 2 departamentos (2 ambientes de 42m cubiertos + 3m de balcón al frente y pulmón de edificio) - 2 departamentos (2 ambientes de 42m cubiertos + 5,5m de balcón al frente y pulmón de edificio) - 2 departamentos (3 ambientes de 53m cubiertos + 5m de balcón al contra-frente.) 3er piso - 1 departamento (4 ambientes de 79m cubiertos + 16m de balcón al frente y pulmón de edificio + terraza privada de 55m2) - 1 departamentos (3 ambientes de 53m cubiertos + 5m de balcón al contrafrente.) Terminación y detalles: -excelente calidad de terminaciones con piso revestidos de cerámica en balcones y porcelanato en baños y sala. -Todas las unidades contaran en sus ambientes con a/a frío-calor instalado. -Terraza compartida al contrafrente. Tiempo de obra: -entrega en 2027. Observación: -el valor corresponde a un local comercial al frente de 35m2 cubiertos de preventa. Forma de pago: -anticipo del 30% a la firma del boleto , refuerzos anuales y el saldo en cuotas a tasa 0%. -Descuento del 8% por venta anticipada. *Te hacemos una propuesta; te invitamos a nuestra oficina comercial a tomar un rico café, donde te informaremos de las facilidades y metodologías de pago para que puedas acceder al departamentos que soñas! Rau s.R.L. No ejerce el corretaje inmobiliario. El presente sitio web es una plataforma en donde cada oficina inmobiliaria independiente que contrata los servicios re/max puede publicar las propiedades a su cargo. Cada oficina es de propiedad y gestión independiente, por lo que rau s.R.L. No interviene en los datos de la publicación, en la operación inmobiliaria, ni en la confección y/o firma del boleto de compraventa y/o escritura y/o contrato de alquiler. En cumplimiento de las leyes vigentes que regulan el corretaje inmobiliario, ley nacional 25.028, ley 22.802 de lealtad comercial, ley 24.240 de defensa al consumidor, las normas del código civil y comercial de la nación y constitucionales, los agentes/gestores no ejercen el corretaje inmobiliario. Todas las operaciones inmobiliarias son objeto de intermediación y conclusión por parte del corredor público inmobiliario colegiado a cargo de la publicación, cuyos datos se exhiben en la presente. La presente publicación describe las características esenciales del inmueble, debiéndose consultar al corredor público inmobiliario responsable de la operación por la eventual actualización de las medidas, descripciones arquitectónicas y funcionales, valores de expensas, servicios, impuestos, precios y demás información, cuyos valores son aproximados. Comprá la casa que querés! No la que podés. Accedé a un préstamo por hasta el 30% del valor de esta propiedad. Simulá tu cuota en lendar

Contactar
1/18

0

USD 80.000

Avenida Hipólito Yrigoyen 11800

Local en Venta en Turdera, Lomas De Zamora

REMAX Actitud
  • 75 m² Total
  • 8 años
  • 1 baño

VENTA LOCAL TURDERA sobre Avenida y Cerca Estación

Corredor responsable: alejandra e. Gurgone cpmclz 4355 / luisa pereda cpi 7092 - contacto: ignacio foti venta inmueble comercial 75m2 totales local a la calle sobre avenida hipólito yrigoyen construido en dos plantas y remodelado con entrepiso para deposito u oficinas a pasos de la estación de trenes de turdera (linea gral roca) se compone - salón principal de venta 45m2 aprox libres sin columnas - baño - entrepiso por escalera de 33m2 aprox con más de 1.80m de altura (ideal para oficinas, deposito, etc) - cortina manual - puertas de vidrio de 3 paños que pueden abrirse todos - electricidad y agua en qué cambiaría tu vida? Que proyectos pueden potenciarse? Estamos para ayudarte! La propiedad es ph y documentación es con escritura sobre la ubicación: avenida hipolito yrigoyen 11864 entre esquiú y patricios turdera - a 100m de la estación turdera de trenes sentido plaza constitución - a 50m paseo de compras turdera y 500m de la plaza principal - colectivos cercanos a pasos de distancia: 51, 318, 561 la propiedad está ubicada en uno de los sectores buscados de la localidad. Exclusivo clientes re/max préstamo hipotecario lendar hasta el 30% del valor de la propiedad se deja constancia que las medidas, superficies, m2 y proporciones consignadas son aproximados, al igual que las medidas parciales y/o de los ambientes está sujeto a verificación y/o ajuste. Mudate a la vida que queres rau s.R.L. No ejerce el corretaje inmobiliario. El presente sitio web es una plataforma en donde cada oficina inmobiliaria independiente que contrata los servicios re/max puede publicar las propiedades a su cargo. Cada oficina es de propiedad y gestión independiente, por lo que rau s.R.L. No interviene en los datos de la publicación, en la operación inmobiliaria, ni en la confección y/o firma del boleto de compraventa y/o escritura y/o contrato de alquiler. En cumplimiento de las leyes vigentes que regulan el corretaje inmobiliario, ley nacional 25.028, ley 22.802 de lealtad comercial, ley 24.240 de defensa al consumidor, las normas del código civil y comercial de la nación y constitucionales, los agentes/gestores no ejercen el corretaje inmobiliario. Todas las operaciones inmobiliarias son objeto de intermediación y conclusión por parte del corredor público inmobiliario colegiado a cargo de la publicación, cuyos datos se exhiben en la presente. La presente publicación describe las características esenciales del inmueble, debiéndose consultar al corredor público inmobiliario responsable de la operación por la eventual actualización de las medidas, descripciones arquitectónicas y funcionales, valores de expensas, servicios, impuestos, precios y demás información, cuyos valores son aproximados. Comprá la casa que querés! No la que podés. Accedé a un préstamo por hasta el 30% del valor de esta propiedad. Simulá tu cuota en lendar

Contactar
1/30

0

USD 260.000

Avenida hipolito yrigoyen 11000

Local en Venta en Turdera, Lomas De Zamora

VIGORE PROPIEDADES
  • 415 m² Total
  • 2 baños
  • 2 cocheras

Local comercial en venta en Turdera Super oportunidad Propiedad destacada

Excelente local comercial ubicado en estrategica esquina en el corazón de turdera, lomas de zamora. Se ofrece en venta un local comercial sobre la transitada avenida hipólito yrigoyen, con un precio de u$d 260.000. Esta propiedad cuenta con una superficie cubierta 105 m² y 415 m2 el terreno, ideales para desarrollar diversas actividades comerciales. Además, dispone de 6 amplios ambientes y 2 baños, brindando un espacio versátil para adaptarse a las necesidades de cualquier negocio. El local se complementa con 2 cocheras descubiertas y estacionamiento para visitantes, asegurando comodidad tanto para clientes como para empleados. La propiedad está equipada con todos los servicios necesarios, incluyendo agua corriente, luz, gas natural e internet, lo que facilita su operatividad desde el primer día. Apto crédito, lo que representa una excelente opción para quienes buscan financiar su inversión en un entorno comercial en constante crecimiento. No pierda la oportunidad de establecer su negocio en una ubicación estratégica, rodeado de un entorno accesible y con alta visibilidad. Esta es una propuesta ideal para aquellos que buscan establecerse en una de las zonas más dinámicas de lomas de zamora. Todas las propiedades que figuran en nuestra cartera se encuentran a cargo del profesional matriculado de la oficina, la intermediación y la conclusión de las operaciones serán llevadas exclusivamente por él *las medidas indicadas son aproximadas asi como las fotos y tienen solo efectos orientativos y no son vinculantes. Las superficies definitivas serán las que resulten conforme al plano definitivo de subdivisión definitivo en la escritura publica la marca “vigore propiedades” identifica únicamente un espacio de coworking y servicios administrativos/comerciales donde distintos profesionales matriculados en cucicba y en cpmclz alquilan puestos de trabajo y realizan sus operaciones en forma independiente, bajo su exclusiva responsabilidad profesional, conforme lo establece el artículo 15 de la ley 2.340 de la ciudad autónoma de buenos aires y la ley 10.973 (modif. 14.085) de la provincia de buenos aires. Vigore argentina sa (vigore propiedades) no realiza ni ha realizado actos de corretaje inmobiliario, ni participa en la intermediación, tasación o negociación de bienes inmuebles, dentro ni fuera de la jurisdicción de caba, provincia de buenos aires ni otras jurisdicciones de la republica argentina. Su función se limita a brindar servicios de marketing, diseño, comunicación digital y asistencia administrativa a corredores matriculados. Mariano colla cpmclz 4081

Contactar