(1) (1)
  • Almagro

Venta

Local

Precio

Buscar solo avisos en moneda:

Dorm|Amb

Más filtros Más filtros

Características

Superficie total

Nombre de calle y altura

Expensas

$

Tipo de urbanización

Plantas

Servicios

Tipos de ambientes

Estado de obra

Tipo de anunciante

Comparte comisión

165 Locales en Venta en Almagro

1/11

0

USD 670.000

Av Boedo al 300

Local en Venta en Almagro, Capital Federal

Zipcode SA
  • 380 m² Total
  • A Estrenar

Local venta en Almagro

Inmueble único por su superficie, versatilidad de usos y posibilidades comerciales, ubicado sobre la transitada av. Boedo al 300. Se trata de una propiedad desarrollada en planta baja sobre lote propio de 8,66 x 40,7 m, con una superficie total construida de 380 m2 y una superficie de parcela de 352,4 m2. Composición del inmueble: - local al frente con persiana metálica automatizada y excelente visibilidad comercial. Superficie: 80 m2. - Gran local al fondo con ingreso independiente desde la calle y salida adicional a colombres. Superficie: 300 m2. - En primer piso 3 cuartos (40 m2) ambos sectores están integrados internamente, pero permiten usos separados o complementarios. Ideal para venta minorista, propuestas gastronómicas, culturales, educativas, centros de estética, estudios de grabación, eventos o como locación multifuncional. Zonificación: área de alta mixtura de usos del suelo 4 habilita múltiples rubros (residencia, comercio, servicios, equipamiento, depósitos). Gran afluencia peatonal y vehicular, con múltiples líneas de colectivos. Estado general: muy bueno salón principal con doble altura y buena ventilación. Patio con parrilla y conexión a un salón adicional. Cocina, baños y depósitos equipados. Instalación eléctrica reforzada, luminarias, sistema de sonido y escenario en uno de los salones. Sin unidades funcionales registradas (100% ph libre o lote propio sin subdivisión), lo que brinda flexibilidad para desarrollos futuros o refuncionalización integral. Potencial: posibilidad de subdividir y generar renta por duplicado. Perfecto para quien busca espacio amplio sobre avenida, con ingreso alternativo desde calle paralela. Gran ancho de frente (8,66 m) y fondo utilizable para expansión. Datos clave: sup. Construida: 380 m2 sup. Terreno: 352,4 m2 frente: 8,66 m zonificación: usam - área de alta mixtura de usos del suelo 4 altura permitida según normativa: consultar factibilidad para desarrollo (sin restricciones de unidades funcionales) en cumplimiento a la ley 5115, se informa que el inmueble es accesible para personas con movilidad reducida o discapacidad física. Corredor interviniente: milagros sarachaga cucicba 7799 paolo menghi cucicba 9171 cmcpdjlm 1005 la tasación, intermediación y la conclusión de las operaciones sobre esta propiedad son actividades exclusivas de este corredor matriculado, conforme las previsiones de la ley 20.266, la ley caba 2340, la ley provincial 10.973 y sus modif. Y las normas reglamentarias dictadas por los colegios departamentales.

Contactar
1/3

0

USD 350.000

Avenida Estado de Israel 4600

Local en Venta en Almagro, Capital Federal

REMAX Vincit
  • 90 m² Total
  • 1 año
  • 1 baño

LOCAL 95 M2 EN VENTA ALMAGRO POZO

Corredor responsable: fernando muñoz cucicba 6573 / pablo daniel vicente cmcpsi 6437 - contacto: paola roxana correa en venta: local al frente superficie total 90,45 m2 entrega diciembre 2026 financiacion: 30% y 24 cuotas en pesos con el ajuste del indice cac. Proyecto edi 4620 se encuentra ubicado en avenida estado de israel entre las calles guardia vieja y humanuaca. Rau s.R.L. No ejerce el corretaje inmobiliario. El presente sitio web es una plataforma en donde cada oficina inmobiliaria independiente que contrata los servicios re/max puede publicar las propiedades a su cargo. Cada oficina es de propiedad y gestión independiente, por lo que rau s.R.L. No interviene en los datos de la publicación, en la operación inmobiliaria, ni en la confección y/o firma del boleto de compraventa y/o escritura y/o contrato de alquiler. En cumplimiento de las leyes vigentes que regulan el corretaje inmobiliario, ley nacional 25.028, ley 22.802 de lealtad comercial, ley 24.240 de defensa al consumidor, las normas del código civil y comercial de la nación y constitucionales, los agentes/gestores no ejercen el corretaje inmobiliario. Todas las operaciones inmobiliarias son objeto de intermediación y conclusión por parte del corredor público inmobiliario colegiado a cargo de la publicación, cuyos datos se exhiben en la presente. La presente publicación describe las características esenciales del inmueble, debiéndose consultar al corredor público inmobiliario responsable de la operación por la eventual actualización de las medidas, descripciones arquitectónicas y funcionales, valores de expensas, servicios, impuestos, precios y demás información, cuyos valores son aproximados. El inmueble no es accesible para personas con discapacidades físicas. El inmueble es accesible para personas con discapacidades físicas. Comprá la casa que querés! No la que podés. Accedé a un préstamo por hasta el 30% del valor de esta propiedad. Simulá tu cuota en lendar

Contactar
1/34

0

USD 320.000

Rio de Janeiro 800, Piso 0

Local en Venta en Almagro, Capital Federal

C21 Szlit
  • A Estrenar

Venta Local 130 m2 Almagro A Estrenar Edificio de la Flor 2

Entrega: inmediata el local: cuenta con 130 m2 cubiertos y totales. Las unidades son aptas para vivienda multifamiliar, uso profesional y local comercial, y cuentan con cocheras, además de las áreas comunes y de servicios. Servicios y amenities - solarium con duchas - deck con piscina - sky lounge y pérgola - sum ideal para eventos - ascensores inteligentes - cámaras de seguridad - increíble vista panorámica ubicación sobre la calle río de janeiro, entre las calles franklin y cangallo, y el contrafrente hacia la calle ramos mejía. Acceso a transporte público (a dos cuadras del subte b - est. Ángel gallardo y múltiples paradas de colectivo en la zona). Transportes cercanos colectivos: 15, 19, 24, 36, 65, 71, 90, 92, 99, 105, 109, 119, 124, 127, 141, 146, 168 subtes (metro): angel gallardo (línea b) todas las medidas son aproximadas al solo efecto orientativo. Las medidas exactas serán las que surjan del título de propiedad. Las fotografías y videos no son contractuales. No se encuentran incluidos en el precio publicado los equipos de aire acondicionado, electrodomésticos ni artefactos de iluminación y/o ningún otro accesorio que pudieran estar mencionados en la descripción o ilustrados en fotografías con excepción de los que queden expresamente identificados en la reserva a conformar entre las partes. Si hubiera valores de expensas y/o impuestos detallados, los mismos son aproximados y sujetos a modificación. "Cada oficina es propiedad y operación independiente. Todas las operaciones de intermediación inmobiliaria son realizadas a través de la corredora matriculada g. Sabrina szlit cucicba 9306". Sabrina szlit matrícula c.U.C.I.C.B.A. 9306 teléfonos de contacto todas las propiedades que figuran en esta publicación se encuentran a cargo del profesional matriculado sabrina szlit, matrícula c.U.C.I.C.B.A. 9306 por lo tanto la intermediación y la conclusión de las operaciones serán llevadas exclusivamente por él. En cumplimiento de la ley 10.973 de la provincia de buenos aires, ley nacional 25.028, ley nacional 20.266, ley 22.802 de lealtad comercial, ley 24.240 de defensa al consumidor, las normas del código civil y comercial de la nación y constitucionales, los asesores o agentes no ejercen el corretaje inmobiliario. Todas las operaciones inmobiliarias son objeto de intermediación y conclusión por parte del martillero y corredor colegiado, cuyos datos se exhiben en el nombre de la inmobiliaria. Ley 5115: excepto que en la descripción de la propiedad se indique lo contrario, el edificio puede no contar con rampa para personas con movilidad reducida, y no ser accesible para personas con discapacidades físicas. Venta sujeta a la obtención del coti por parte del propietario. Las medidas son aproximadas, las reales surgen del título o plano de mensura. Las reservas se toman exclusivamente en la inmobiliaria con el matriculado c.U.C.I.C.B.A. 9306

Contactar
1/5

0

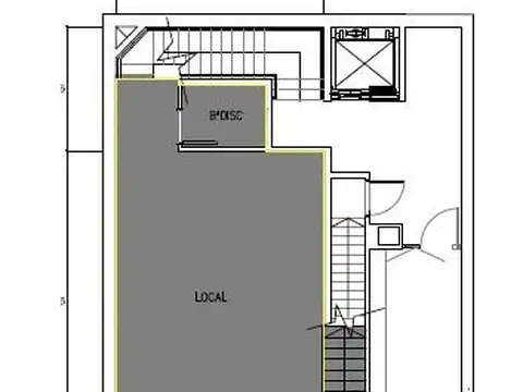
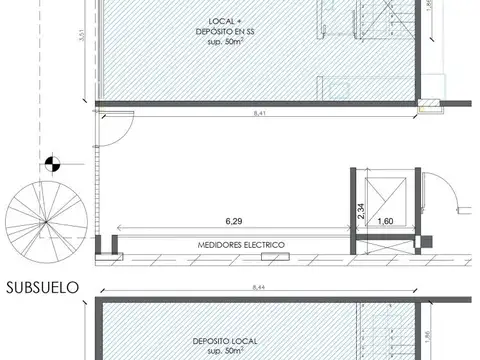
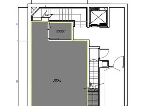
USD 87.000

GALLO 800, Piso PB*

Local en Venta en Almagro, Capital Federal

LEPORE PROPIEDADES SA
  • 45 m² Total
  • 1 baño
  • Bueno

Local - Venta - Argentina, Capital Federal - GALLO 812

Venta local almagro localen posición estratégica lindante con palermo y recoleta. Muy cercano al microcentro porteño, comunicado con el subte y rodeado de propuestas comerciales, culturales, educativas, artísticas y gastronómicas que se conjugan en un ambiente de gran calidad urbana. Ubicado a 200 mtrs. De av. Córdoba y a 4 cuadras de av. Corrientes. Se desarrolla en 45 metros cuadrados en planta baja, con vidriera y acceso directo desde la calle. Cuenta con: - baño completo - equipo de aire acondicionado opcional con subsuelo de 70 metros cuadrados: usd 120.000.- Al subsuelo puede ingresarse desde la calle, desde el local en pb y/o del ascensor con llave de seguridad y reja. Cuenta con portero individual, una cocina equipada, un baño completo, sistema de ventilación mecánica/forzada e iluminación por claraboya. Apto todo rubro. Lepore propiedades almagro tel. / Lepore propiedades s.A. Cuit : -9 c.U.C.I.C.B.A. Matrícula nº 931 (sucursales caballito - palermo - centro) aviso legal: las descripciones arquitectónicas y funcionales, valores de expensas y/o gastos comunes, impuestos y servicios, fotos y medidas de este inmueble son aproximados. Los datos fueron proporcionados por el propietario y pueden no estar actualizados a la hora de la visualización de este aviso por lo cual pueden arrojar inexactitudes y discordancias con las que surgen de las facturas, títulos y planos legales del inmueble. El interesado deberá realizar las verificaciones respectivas con carácter previo a la realización de cualquier operación, requiriendo por sí o sus profesionales de confianza las copias necesarias de la documentación que corresponda. Esta unidad es apta para personas con movilidad reducida.

Contactar
1/3

0

USD 380.000

GALLO 500

Local en Venta en Almagro, Capital Federal

LEPORE PROPIEDADES SA
  • 128 m² Total
  • 1 baño
  • Bueno

VENTA LOCAL ALMAGRO

Venta de local, almagro local comercial en esquina. Sup.Total : 128m². 18m de vidriera. Con arquitectura y fachada vanguardista. Ubicación: -cercanía al microcentro porteño, próximo a palermo y recoleta, vecino al shopping del abasto y a las 5 torres del barrio (torres del abasto y torres human) -accesible a subte y medios de transporte publico. -Zona comercial , cultural , educativa, artística y gastronomica. Con renta "the coffe store" financiación privada lepore propiedades tel. / Lepore propiedades s.A. Cuit : -9 c.U.C.I.C.B.A. Matrícula nº 931 (sucursales caballito - palermo - centro) aviso legal: las descripciones arquitectónicas y funcionales, valores de expensas, impuestos y servicios, fotos y medidas de este inmueble son aproximados. Los datos fueron proporcionados por el propietario y pueden no estar actualizados a la hora de la visualización de este aviso por lo cual pueden arrojar inexactitudes y discordancias con las que surgen de los las facturas, títulos y planos legales del inmueble. El interesado deberá realizar las verificaciones respectivas previamente a la realización de cualquier operación, requiriendo por sí o sus profesionales las copias necesarias de la documentación que corresponda. Venta supeditada al cumplimiento por parte del propietario de los requisitos de la resolución general nº 2371 de la afip (pedido de coti) esta unidad es apta para personas con movilidad reducida.

Contactar
1/7

0

USD 87.000 + $30.000 expensas

Pringles 200, Piso PB

Local en Venta en Almagro, Capital Federal

Lavagna Propiedades
  • Via Pública
  • 36 m² Total
  • 1 planta

VENTA - LOCAL - ALMAGRO - Pringles 294 - 36 Metros Cuadrados - A PASOS DE LA ESQUINA

Local a la venta pringles 288 con ingreso independiente por pringles 294 medidas aproximadas 3.00 de ancho 12 de largo (menos baño 1,5mt2) ultimo destino peluquería se puede construín un entrepiso lo que duplicaria practicamente la superficie. Expensas de octubre $30.000.- Lavagna propiedades junín 1311 c.A.B.A. Te: ++54.11 9. Www.Lavagnapropiedades.Ar aviso legal: las medidas, superficies y datos consignados son aproximados, sujetos a verificación por el interesado en adquirir. Los datos exactos constan en los correspondientes documentos legales, los cuales se encuentran disponibles. El precio del inmueble puede ser modificado sin previo aviso. Fotos de carácter no contractual. Aviso en preparación. En cumplimiento de la leyes provinciales vigentes que regulan el corretaje inmobiliario, ley nacional 25.028, ley 22.802 de lealtad comercial, ley 24.240 de defensa al consumidor, las normas del código civil y comercial de la nación y constitucionales, los agentes/gestores no ejercen el corretaje inmobiliario. Todas las operaciones inmobiliarias son objeto de intermediación y conclusión por parte de los martilleros y corredores colegiados, cuyos datos se exhiben debajo del nombre de la inmobiliaria. El valor del inmueble indicado en el presente puede ser modificado sin previo aviso. Venta supeditada al cumplimiento por parte del propietario de los requisitos de la resolución general nº 2371 de la afip (pedido de coti). Conforme ley 2340 subsiguientes y concordantes se hace saber debida inscripción lavagna propiedades - cucicba 53.

Contactar
1/5

1

USD 87.000

GALLO 800, Piso PB*

Local en Venta en Almagro, Capital Federal

LEPORE PROPIEDADES SA
  • 45 m² Total
  • A Estrenar
  • 1 baño

Local - Venta - Argentina, Capital Federal - GALLO 812

Venta local almagro localen posición estratégica lindante con palermo y recoleta. Muy cercano al microcentro porteño, comunicado con el subte y rodeado de propuestas comerciales, culturales, educativas, artísticas y gastronómicas que se conjugan en un ambiente de gran calidad urbana. Ubicado a 200 mtrs. De av. Córdoba y a 4 cuadras de av. Corrientes. Se desarrolla en 45 metros cuadrados en planta baja, con vidriera y acceso directo desde la calle. Cuenta con: - baño completo - equipo de aire acondicionado opcional con subsuelo de 70 metros cuadrados: usd 120.000.- Al subsuelo puede ingresarse desde la calle, desde el local en pb y/o del ascensor con llave de seguridad y reja. Cuenta con portero individual, una cocina equipada, un baño completo, sistema de ventilación mecánica/forzada e iluminación por claraboya. Apto todo rubro. Lepore propiedades almagro tel. / Lepore propiedades s.A. Cuit : -9 c.U.C.I.C.B.A. Matrícula nº 931 (sucursales caballito - palermo - centro) aviso legal: las descripciones arquitectónicas y funcionales, valores de expensas y/o gastos comunes, impuestos y servicios, fotos y medidas de este inmueble son aproximados. Los datos fueron proporcionados por el propietario y pueden no estar actualizados a la hora de la visualización de este aviso por lo cual pueden arrojar inexactitudes y discordancias con las que surgen de las facturas, títulos y planos legales del inmueble. El interesado deberá realizar las verificaciones respectivas con carácter previo a la realización de cualquier operación, requiriendo por sí o sus profesionales de confianza las copias necesarias de la documentación que corresponda. Esta unidad es apta para personas con movilidad reducida.

Contactar