Caseros 2900

USD 295.000

Venta en Parque Patricios, Capital Federal

USD 295.000

  • Local

    Local

  • 112 m² Total

    112 m² Total

  • 2 plantas

    2 plantas

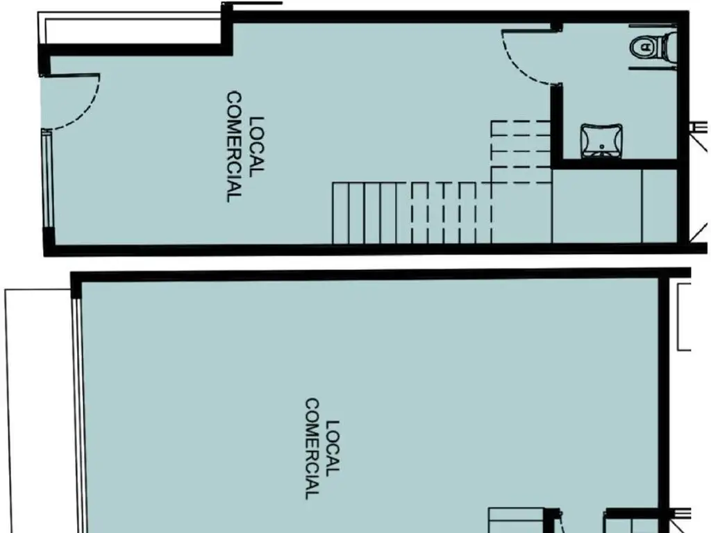
En Construcción! Local Comercial en Parque Patricios!

ENTREGA MEDIADOS 2027! Local en Construcción con 2 pisos y Balcón!

El local contara con un Toilette en la planta baja.
En la Planta Alta contara con un balcón al frente y un 2do Toilette.

El emprendimiento contara con 12 pisos y planta baja.
Unidades de 1 y 2 ambientes con sus respectivas expansiones + Local Comercial + Oficina.
En el piso 13 contara con una Terraza de uso común.

Ubicado en Parque Patricios, un barrio emblemático por su historia y cultura.
Rodeado de espacios verdes, locales comerciales y gastronómicos.
Zona tranquila y residencial.
A media cuadra del Parque de los Patricios y amplio acceso al transporte publico como Subte y Colectivo.

Todas las unidades contaran con preinstalación de Aire Acondicionado. Calefacción por losa radiante y/o radiadores. Sistema de agua caliente individual.

Matias Psevoznik
MATRíCULA CUCICBA N 7733

Aviso legal: Las medidas, superficies y proporciones consignadas son aproximadas y al sólo efecto orientativo y pueden variar respecto del plano y titulo de propiedad respectivos, al igual que las medidas parciales y/o de los ambientes que están sujetas a verificación y/o ajuste.- El valor indicado de expensas, si las hubiere, está sujeto a variación.- Los valores pueden ser modificados sin previo aviso.- Las fotos publicadas son ilustrativas, no contractuales y propiedad de Tovado Propiedades.-
.

Ubicación

Parque Patricios, Capital Federal

Características

  • Cant. Plantas: 2

  • Sup. Cubierta: 104 m2

  • Precio: USD 295.000

  • Agua cloaca
  • Agua corriente
  • Calefacción
  • Agua corriente
  • Electricidad
  • Internet
  • Teléfono
  • Video cable

Código de aviso: PRO-1622277

Contactá al anunciante

Tovado Propiedades