-
Local
-
139 m² Total
-
1 año
-
1 baño
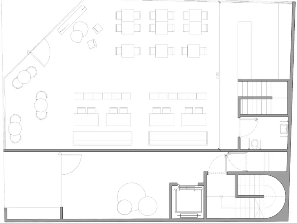
LOCAL COMERCIAL
Contacto: Carolina Distefano
El edificio Crámer 680 ofrece un variado mix de unidades residenciales y comerciales. En la Planta Baja se encuentra un Local Comercial, ubicado estratégicamente sobre Crámer y Federico Lacroze.
FECHA ESTIMADA DE ENTREGA DICIEMBRE 2028
Modalidad de pago: 20/40% de anticipo y el importe restante en 36 cuotas.
RAU S.R.L. no ejerce el corretaje inmobiliario. El presente sitio web es una plataforma en donde cada oficina inmobiliaria independiente que contrata los servicios RE/MAX puede publicar las propiedades a su cargo. Cada oficina es de propiedad y gestión independiente, por lo que RAU S.R.L. no interviene en los datos de la publicación, en la operación inmobiliaria, ni en la confección y/o firma del boleto de compraventa y/o escritura y/o contrato de alquiler. En cumplimiento de las leyes vigentes que regulan el corretaje inmobiliario, Ley Nacional 25.028, Ley 22.802 de Lealtad Comercial, Ley 24.240 de Defensa al Consumidor, las normas del Código Civil y Comercial de la Nación y Constitucionales, los agentes/gestores NO ejercen el corretaje inmobiliario. Todas las operaciones inmobiliarias son objeto de intermediación y conclusión por parte del corredor público inmobiliario colegiado a cargo de la publicación, cuyos datos se exhiben en la presente. La presente publicación describe las características esenciales del inmueble, debiéndose consultar al corredor público inmobiliario responsable de la operación por la eventual actualización de las medidas, descripciones arquitectónicas y funcionales, valores de expensas, servicios, impuestos, precios y demás información, cuyos valores son aproximados.
El inmueble no es accesible para personas con discapacidades físicas.
El inmueble es accesible para personas con discapacidades físicas.
Comprá la casa que querés! No la que podés. Accedé a un préstamo por hasta el 30% del valor de esta propiedad. Simulá tu cuota en Lendar
Ubicación
Colegiales, Capital Federal
Características
-
Sup. Cubierta: 139 m2
-
Antiguedad: -3
-
Cant. Baños: 1
Datos básicos
-
Precio: USD 300.000
Ambientes del local
- Terraza
Servicios del local
- Agua corriente
- Electricidad
- Gas natural
Código de aviso: AR.42.43.39.926
Propiedades Similares
-
USD 270.000
Palpa al 3500, entre Av. Álvarez Thomas y Giribone
- 94 m² Total
-
USD 270.000
Palpa 3500
- 94 m² Total
- 1 planta
-
USD 270.000
+ $ 260000 expensas
Ciudad De La Paz 1100
- Via Publica
- 86 m² Total
- 2 plantas
-
USD 270.000
+ $ 150000 expensas
Forest al 600
- 138 m² Total
- 2 plantas