Rio de Janeiro 800

USD 320.000

Venta en Caballito Norte, Caballito

USD 320.000

  • Local

  • 130 m² Total

  • 1 planta

  • A Estrenar

Local a estrenar en Caballito Norte

Excelente local- Para venta o alquiler - al frente, desarrolado con una excelente calidad constructiva.
ALQUILER: U$S3200.-
NO DUDES EN CONSULTARNOS ESTAMOS A TU DISPOSICION.
Río de Janeiro 850, CABA Acceso a transporte público (a dos cuadras del Subte B - Est. ángel Gallardo y múltiples paradas de colectivo en la zona).
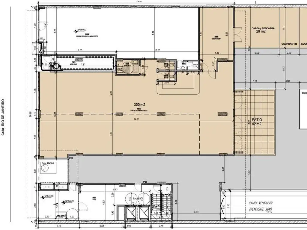
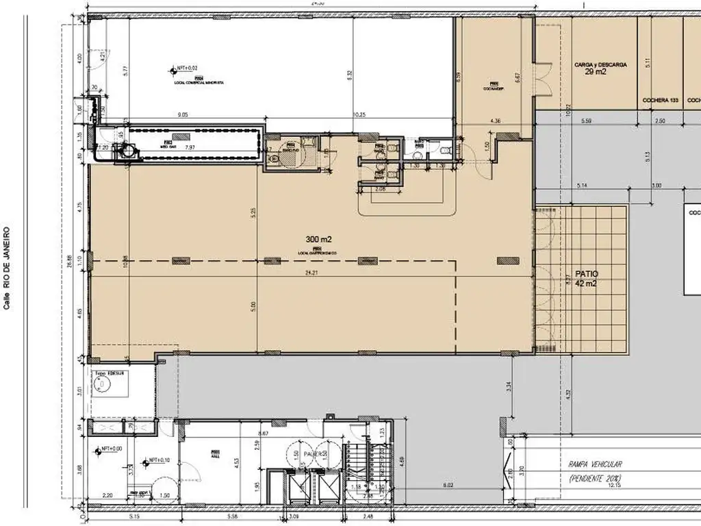
El proyecto se encuentra ubicado sobre la calle Rio de Janeiro, entre las calles Franklin y Cangallo, y el contrafrente hacia la calle Ramos Mejía. El tejido actual prevaleciente en la manzana es de tipologías edilicias varias con alturas entre 2 a 10 niveles. La tipología elegida para el proyecto es de EDIFICIO ENTRE MEDIANERAS desde la L.O. hasta la L.F.I. ubicada a 27,16 m. El lote se encuentra comprendido en un área de Alta Mixtura de Usos del Suelo 4, los usos definidos son de VIVIENDA MULTIFAMILIAR, ESTUDIOS PROFESIONALES, LOCAL COMERCIAL y COCHERAS además de las áreas comunes y de servicios. El proyecto tiene 2 subsuelos de cocheras y servicios, en la planta baja 1 local a la calle y cocheras descubiertas, y en los pisos altos 134 viviendas entre 36,5 y 61 m2, que están distribuidos en plantas del 1o al 8o piso, un primer retiro del frente en el 9o piso, y un segundo retiro en el 10o piso. La superficie cubierta total es de 10.515 m2, las tipologías de unidades y superficies propias están detalladas más abajo.

Edificio triple frente con amplios departamentos a una cuadra y media de Parque Centenario.

MEMORIA DESCRIPTIVA DEL PROYECTO El proyecto se encuentra ubicado sobre la calle Río de Janeiro, entre las calles Franklin y Cangallo, y el contrafrente hacia la calle Ramos Mejía.

Las unidades son aptas para: VIVIENDA MULTIFAMILIAR USO PROFESIONAL LOCAL COMERCIAL

Cocinas equipadas: Mesada simil Silestone Muebles bajo mesada y alacena en melamina Cocinas a gas de primera marca y campanas de extracción de acero inoxidable. Espacio para lavarropa.
Especificaciones Unidades de categoría de 1 y 2 ambientes. Terminaciones de calidad. Increíble vista panorámica - Ascensores inteligentes y cámaras de seguridad - Solarium con duchas Deck - con piscina Sky lounge y pérgola SUM ideal para evento.
2025 Coldwell Banker. Todos los derechos reservados. Coldwell Banker y los logotipos de Coldwell Banker son marcas de servicio de propiedad de Coldwell Banker Real Estate LLC. El sistema Coldwell Banker está compuesto por oficinas propias de propiedad de una subsidiaria de Anywhere Advisors LLC y por oficinas adheridas al Sistema Coldwell Banker que son de propiedad y operación independientes. En cumplimiento con la normativa vigente, los asistentes NO ejercen el corretaje inmobiliario. La intermediación y conclusión de las operaciones inmobiliarias es desarrollada por Martilleros y Corredores Públicos. Esta Oficina Inmobiliaria se encuentra a cargo de Alejandra González Carmona CUCICBA 8444 tomo 2 folio 15 adherida al Sistema Coldwell Banker Desiderio Group.

2025 Coldwell Banker. Todos los derechos reservados. Coldwell Banker y los logotipos de Coldwell Banker son marcas de servicio de propiedad de Coldwell Banker Real Estate LLC. El sistema Coldwell Banker está compuesto por oficinas propias de propiedad de una subsidiaria de Anywhere Advisors LLC y por oficinas adheridas al Sistema Coldwell Banker que son de propiedad y operación independientes. En cumplimiento con la normativa vigente, los asistentes NO ejercen el corretaje inmobiliario. La intermediación y conclusión de las operaciones inmobiliarias es desarrollada por Martilleros y Corredores Públicos. Esta Oficina Inmobiliaria se encuentra a cargo de Alejandra Gonzalez Carmona CUCICBA 8444 adherida al Sistema Coldwell Banker Desiderio Group, CUIT -5., Av. Directorio 709 CABA. y Ferreyra Patricia Alejandra CMCPSI 6409 Libro 10 Folio 8 adherida al Sistema Coldwell Banker Desiderio Group, CUIT 86-4., Av. Centenario 2211 Beccar, Partido de San Isidro, Pcia. de Buenos Aires.

Ubicación

Caballito, Capital Federal

Características

  • Cant. Plantas: 1

  • Sup. Cubierta: 130 m2

  • Precio: USD 320.000

  • Agua corriente
  • Agua corriente
  • Electricidad
  • Gas natural

Código de aviso: PRO-1428764

Contactá al anunciante

Coldwell Banker Desiderio Group