Amador Lucero 100

$ 1.900.000

Alquiler en San Miguel De Tucuman, Tucuman Capital

$ 1.900.000

Cotizá gratis tu garantía
  • Local

  • 135 m² Total

  • Bueno

  • En edificio

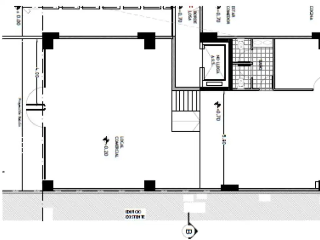
Local - Alquiler - Argentina, San Miguel de Tucumán - Amador Lucero 44

ALQUILER

Amador Lucero 44

Local comercial de135 m2

52 m2 de patio

Ubicación

San Miguel De Tucuman, Tucuman Capital, Tucuman

Características

  • Estado: Bueno

  • Sup. Cubierta: 135 m2

  • Precio: $ 1.900.000

Código de aviso: ELP-ELP-2808

Contactá al anunciante

ELGART PROPIEDADES