(1) (1)
  • Castelar

Venta

Galpón

Precio

Buscar solo avisos en moneda:

Dorm|Amb

Más filtros Más filtros

Características

Superficie cubierta

Nombre de calle y altura

Fot

Servicios

Tipo de anunciante

Comparte comisión

25 Galpones en Venta en Castelar

1/14

0

USD 189.000

MAXIMO PAZ 800, Piso 0

Galpón en Venta en Castelar Sur, Castelar

C21 DAdam CUCICBA 6943  CMCPSI 6371
  • 243 m² cubie.
  • 10 mts Frente
  • 52 mts Fondo

EXCELENTE GALPON EN VENTA CON LOCAL A LA CALLE EN CASTELAR. APTO CREDITO

El galpón emplazado en una zona estratégica de castelar a metros de avda. Estanislao zeballos. La propiedad cuenta con: - local a la calle que actualmente funciona como deposito. -Dos baños -portón con dimensiones ideales para el ingreso de camiones, - cortina metálica con motor. - Instalación trifásica. -Fondo libre de aproximadamente 35 metros. Opcional: en el primer piso del edificio por escalera hay dos departamentos de dos ambientes. Los cuales se pueden vender en forma individual o en bloque nota: se escuchan ofertas de permutas - se acepta vehículos en parte de pago no dudes en consultar. Ximena d'adam matrícula c.U.C.I.C.B.A. 6943 / cmcpsi 6371 teléfonos de contacto todas las propiedades que figuran en esta publicación se encuentran a cargo del profesional matriculado ximena d'adam, matrícula c.U.C.I.C.B.A. 6943 / cmcpsi 6371 por lo tanto la intermediación y la conclusión de las operaciones serán llevadas exclusivamente por él. En cumplimiento de la ley 10.973 de la provincia de buenos aires, ley nacional 25.028, ley nacional 20.266, ley 22.802 de lealtad comercial, ley 24.240 de defensa al consumidor, las normas del código civil y comercial de la nación y constitucionales, los asesores o agentes no ejercen el corretaje inmobiliario. Todas las operaciones inmobiliarias son objeto de intermediación y conclusión por parte del martillero y corredor colegiado, cuyos datos se exhiben en el nombre de la inmobiliaria. Ley 5115: excepto que en la descripción de la propiedad se indique lo contrario, el edificio puede no contar con rampa para personas con movilidad reducida, y no ser accesible para personas con discapacidades físicas. Venta sujeta a la obtención del coti por parte del propietario. Las medidas son aproximadas, las reales surgen del título o plano de mensura. Las reservas se toman exclusivamente en la inmobiliaria con el matriculado c.U.C.I.C.B.A. 6943 / cmcpsi 6371

Contactar
1/23

0

USD 299.000

Máximo Paz 800, Piso 0

Galpón en Venta en Castelar Sur, Castelar

C21 DAdam CUCICBA 6943  CMCPSI 6371
  • 340 m² cubie.
  • 10 mts Frente
  • 52 mts Fondo

GALPON EN VENTA CON LOCAL A LA CALLE + 2 DEPARTAMENTOS DE 2 AMBIENTES EN CASTELAR

Excelente galpon en venta con local a la calle en castelar -apto credito el galpón emplazado en una zona estratégica de castelar a metros de avda. Estanislao zeballos. La propiedad cuenta con: - local a la calle que actualmente funciona como deposito. -Dos baños -portón con dimensiones ideales para el ingreso de camiones, - cortina metálica con motor. - Instalación trifásica. -Fondo libre de aproximadamente 35 metros. En el primer piso del edificio por escalera hay dos departamentos, ambos de dos ambientes con balcon a la calle . Departamentos el departamento de dos ambientes con patio y balcón a la calle, emplazado en primer piso por escalera. La propiedad consta de un living comedor con cocina integrada. El dormitorio con salida al balcón. En el cuarto encontramos un placard enorme de pared a pared y de piso a techo. Nota: se escuchan ofertas de permutas. Se aceptan vehículos en parte de pago. El reglamento de co propiedad está en trámite. ¡No dudes en consultar la propiedad es ideal para empresas de logistica. Los departamentos pueden se habitacionales o bien oficinas nota: se escuchan ofertas de permutas - se acepta vehículos en parte de pago no dudes en consultar. Ximena d'adam matrícula c.U.C.I.C.B.A. 6943 / cmcpsi 6371 teléfonos de contacto todas las propiedades que figuran en esta publicación se encuentran a cargo del profesional matriculado ximena d'adam, matrícula c.U.C.I.C.B.A. 6943 / cmcpsi 6371 por lo tanto la intermediación y la conclusión de las operaciones serán llevadas exclusivamente por él. En cumplimiento de la ley 10.973 de la provincia de buenos aires, ley nacional 25.028, ley nacional 20.266, ley 22.802 de lealtad comercial, ley 24.240 de defensa al consumidor, las normas del código civil y comercial de la nación y constitucionales, los asesores o agentes no ejercen el corretaje inmobiliario. Todas las operaciones inmobiliarias son objeto de intermediación y conclusión por parte del martillero y corredor colegiado, cuyos datos se exhiben en el nombre de la inmobiliaria. Ley 5115: excepto que en la descripción de la propiedad se indique lo contrario, el edificio puede no contar con rampa para personas con movilidad reducida, y no ser accesible para personas con discapacidades físicas. Venta sujeta a la obtención del coti por parte del propietario. Las medidas son aproximadas, las reales surgen del título o plano de mensura. Las reservas se toman exclusivamente en la inmobiliaria con el matriculado c.U.C.I.C.B.A. 6943 / cmcpsi 6371

Contactar
1/8

0

USD 220.000

Salvador Maria del Carril al 100

Galpón en Venta en Castelar, Moron

ADRIAN MERCADO REAL ESTATE
  • 350 m² cubie.
  • 9 mts Frente
  • 32 mts Fondo

Venta Deposito en Castelar

Depósito en castelar, zona industrial a minutos de autopista acceso oeste, excelente ubicación. Tenemos el depósito ideal para vos! El inmueble esta desarrollado en dos plantas de 175m2 cada una, implantado en un lote de 292 metros la construcción es de losa maciza en los dos niveles, conectados por escalera. Retiro de frente semicubierto ideal para estacionamiento, carga y descarga. Fondo libre. Todos los servicios querés más info? Comunicate con nosotros y coordinamos una visita. Los datos contenidos en esta publicación (precios, medidas, superficies, imágenes, etc.) Sólo se proporcionan con fines informativos y no generan ninguna obligación contractual para adrián mercado gestión inmobiliaria s.A. Adrián mercado real estate no asume responsabilidad derivada del uso incorrecto, inapropiado o ilícito de la información publicada. Adrián mercado real estate no garantiza explícita ni implícitamente la exactitud de la información publicada. Toda la información deberá ser confirmada oportunamente con los correspondientes documentos registrales. La información contenida en la presente publicación está sujeta a modificaciones sin previo aviso. Se prohíbe cualquier reproducción total o parcial, por cualquier medio, sin la previa autorización de adrián mercado real estate. Cucicba mat. No 5604 leandro mercado | cmcpsi mat. No 5712 adrián mercado

Contactar
1/58

0

USD 590.000

Tucumán 2500

Galpón en Venta en Castelar, Moron

REMAX Data Work
  • 667,52 m² cubie.
  • 10 años
  • Excelente

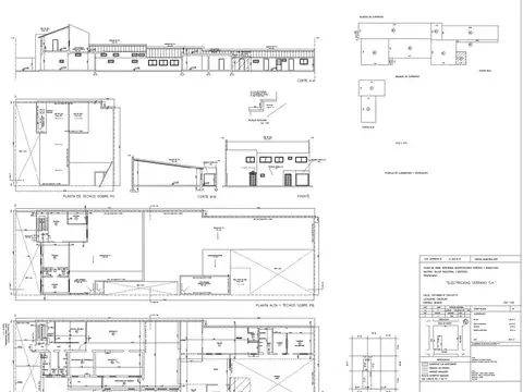
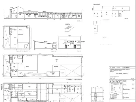
Venta depósito/galpón en Castelar Apto Crédito

Corredor responsable: leonardo misuraca cmcpsm 2568 / cucicba 7970 - contacto: valentino ragolía venta/alquiler de depósito apto crédito en dos plantas con oficinas ubicado en castelar, morón. Te presentamos este depósito en venta, ubicado en tucumán 2569, entre italia y san pedro, en castelar, partido de morón. Apto crédito, esta propiedad se encuentra disponible tanto para la venta como para el alquiler. Desarrollado en dos plantas, combina espacios amplios, funcionales y versátiles, ideales para múltiples usos industriales, comerciales o logísticos. ? Características generales del inmueble: • superficie cubierta total: 667,51 m². • Superficie total del terreno: 765,48 m². • Oficinas ubicadas en distintos sectores del inmueble. • Espacio descubierto en planta baja, ideal para maniobras, carga, descarga o circulación interna. • Cocina/comedor para personal. • Baños en ambos niveles. • Ingreso independiente con portón de acceso. • Excelente distribución, adaptable a distintos rubros. ? Ideal para: • empresas logísticas. • Comercios mayoristas. • Distribuidoras. • Talleres o industrias livianas. • Centros operativos con necesidad de oficinas + depósito. ? Condiciones comerciales: • disponible para venta. • Disponible para alquiler mensual. (Consultar valor de venta o alquiler.) ? Consultanos para coordinar una visita y obtener más información. Una oportunidad única en una zona estratégica del oeste. Rau s.R.L. No ejerce el corretaje inmobiliario. El presente sitio web es una plataforma en donde cada oficina inmobiliaria independiente que contrata los servicios re/max puede publicar las propiedades a su cargo. Cada oficina es de propiedad y gestión independiente, por lo que rau s.R.L. No interviene en los datos de la publicación, en la operación inmobiliaria, ni en la confección y/o firma del boleto de compraventa y/o escritura y/o contrato de alquiler. En cumplimiento de las leyes vigentes que regulan el corretaje inmobiliario, ley nacional 25.028, ley 22.802 de lealtad comercial, ley 24.240 de defensa al consumidor, las normas del código civil y comercial de la nación y constitucionales, los agentes/gestores no ejercen el corretaje inmobiliario. Todas las operaciones inmobiliarias son objeto de intermediación y conclusión por parte del corredor público inmobiliario colegiado a cargo de la publicación, cuyos datos se exhiben en la presente. La presente publicación describe las características esenciales del inmueble, debiéndose consultar al corredor público inmobiliario responsable de la operación por la eventual actualización de las medidas, descripciones arquitectónicas y funcionales, valores de expensas, servicios, impuestos, precios y demás información, cuyos valores son aproximados. Comprá la casa que querés! No la que podés. Accedé a un préstamo por hasta el 30% del valor de esta propiedad. Simulá tu cuota en lendar

Contactar