(1) (1)
  • La Reja

Alquiler

Galpón

Precio

Buscar solo avisos en moneda:

Dorm|Amb

Más filtros Más filtros

Características

Superficie cubierta

Nombre de calle y altura

Fot

Servicios

Tipo de anunciante

Comparte comisión

20 Galpones en Alquiler en La Reja

1/45

5

USD 26.500

José Cortejarena 3700

Galpón en Alquiler en La Reja, Moreno

Dambolena
  • 3.600 m² cubie.
  • A Estrenar
  • Muy Bueno

Depósito en Alquiler en La Reja, Moreno

Depósito en venta - moreno ubicación: josé cortejarena 3700 - la reja superficie terreno : 4.8has galpón : 3600m2 frente: 30m fondo: 119m altura: 15m planta baja: cocina baños vestuario planta alta: 2 oficinas comunicadas baños zona de estacionamiento playa de maniobras garita de seguridad-funciona como parque industrial-sin expensas zonificación: industrial 1 - i1. Carácter: destinada a la localización de actividades industriales y como usos complementarios comercios mayoristas y depósitos de grandes superficies, servicios, equipamientos relacionados con la actividad principal.- Intensidad de uso y morfología: fos: 0.6 fot: 1.0 densidad neta: 80hab./Ha parcela mínima: 20mts.de frente y 600.00m2 de superficie altura máxima: 12.00mts.retiros: frente: .00mts.fondo: 0.5 (l-20) con un máximo exigible de 10 mts.lateral: 4.00mts.en los predios con un ancho de parcela menor a 20,00 mts se exigirá un retiro lateral mínimo de 1,15 mts.por cada eje edianero.- Ai valor máximo de altura podrán incrementarse hasta un máximo de 3 metros según se incremente el retiro lateral exigido a razón de un metro más de retiro lateral por cada eje, incrementa un metro más de altura.- Los retiros laterales en predios de frente menor a 20 mts, podrán exceptuarse uando el interesado demuestre mediante propuesta constructiva que garantice la indemnidad de los predios linderos.- Puntos de interés: a 150m de colectora acceso oeste a 1.4km de puente belisario roldan a 1.6km de cruce luis de camoens se escucha oferta de contado acepta permuta de interés en parte de pago tenemos más propiedades disponibles, no dudes en contactarnos . . Las superficies son aproximadas, la definitiva surgirá del estado parcelario que realice el agrimensor. Corredor responsable: martín dambolena cmcpdjmgr 205 - cucicba 7176 martillero: martín dambolena cmcpdjmgr 205 - cucicba 7176. - Mat.

Contactar
1/12

0

USD 60.000

Ruta Provincial 25

Galpón en Alquiler en La Reja, Moreno

Francesco Tucci Negocios Inmobiliarios
  • 10.000 m² cubie.
  • A Estrenar
  • 1 baño

Galpón en alquiler PIR 25 La Reja, Moreno

Nave industrial en alquiler en pir 25, sobre la ruta 25 moreno, a pocos metros del cruce con la ruta 24 y a 5 minutos del acceso oeste. La zona es industrial 1 según el código de zonificación de moreno. Admite las categorías 1 y 2 según ley 11459 de la provincia de buenos aires. Cuenta con fos 0.6 / fot 1.2, retiros laterales 3 metros, retiros frontales 3 metros, retiros traseros 3 metros, aptitud hidráulica, pavimentos externos, cerco perimetral, pórtico de acceso, cortina forestal, aptitud ambiental y pavimentos internos. Coordina tu visita francesco tucci negocios inmobiliarios actúa conforme a la normativa vigente que regula el corretaje inmobiliario (ley nacional 25.028, ley 22.802 de lealtad comercial, ley 24.240 de defensa al consumidor, y las disposiciones del código civil y comercial de la nación). Todas las operaciones inmobiliarias son objeto de intermediación y conclusión por parte del corredor público inmobiliario matriculado responsable de la operación, cuyos datos se encuentran disponibles en la publicación. La presente publicación describe las características esenciales del inmueble. Las medidas, superficies, descripciones arquitectónicas y funcionales, valores de expensas, servicios, impuestos, precios y demás datos son aproximados y sujetos a modificación sin previo aviso. Las imágenes, planos y renders son de carácter ilustrativo y no constituyen oferta definitiva.

Contactar
1/12

0

USD 13.500

Ruta Provincial 25

Galpón en Alquiler en La Reja, Moreno

Francesco Tucci Negocios Inmobiliarios
  • 2.250 m² cubie.
  • A Estrenar
  • 1 baño

Galpón en alquiler PIR 25 La Reja, Moreno

Nave industrial en alquiler en pir 25, sobre la ruta 25 moreno, a pocos metros del cruce con la ruta 24 y a 5 minutos del acceso oeste. La zona es industrial 1 según el código de zonificación de moreno. Admite las categorías 1 y 2 según ley 11459 de la provincia de buenos aires. Cuenta con fos 0.6 / fot 1.2, retiros laterales 3 metros, retiros frontales 3 metros, retiros traseros 3 metros, aptitud hidráulica, pavimentos externos, cerco perimetral, pórtico de acceso, cortina forestal, aptitud ambiental y pavimentos internos. Coordina tu visita francesco tucci negocios inmobiliarios actúa conforme a la normativa vigente que regula el corretaje inmobiliario (ley nacional 25.028, ley 22.802 de lealtad comercial, ley 24.240 de defensa al consumidor, y las disposiciones del código civil y comercial de la nación). Todas las operaciones inmobiliarias son objeto de intermediación y conclusión por parte del corredor público inmobiliario matriculado responsable de la operación, cuyos datos se encuentran disponibles en la publicación. La presente publicación describe las características esenciales del inmueble. Las medidas, superficies, descripciones arquitectónicas y funcionales, valores de expensas, servicios, impuestos, precios y demás datos son aproximados y sujetos a modificación sin previo aviso. Las imágenes, planos y renders son de carácter ilustrativo y no constituyen oferta definitiva.

Contactar
1/4

1

USD 6

Ruta Provincial 25

Galpón en Alquiler en La Reja, Moreno

Rubica Inmobiliaria
  • 2.250 m² cubie.
  • A Estrenar
  • Agua corri.

Terreno en PIR 25

Parque industrial r25 nave industrial de 4.500/2500 m2 a estrenar 12 m de altura libre de columnas construcción con paredes y techo de chapa, alma llena con paneles de aislación térmica cometidas para baños y vestuarios bonificación de expensas por el primer año de contrato. Bascula antes del ingreso al parque en la estación de servicio axion posibilidad de cuenta corriente en combustible y comedor . El inmueble no cuenta con red de incendio ni spinklers, se hace a pedido del cliente con costo extra en el valor de alquiler. Localización ruta provincial 25 y calle don bosco, localidad la reja, partido de moreno. A 10 minutos de acceso oeste zonificacion la zona es industrial 1 según el código de zonificación de moreno. Admite las categorías 1 y 2 según ley 11459 de la provincia de buenos aires. Proyecto de parque industrial aprobado por di-2018-4-gdeba-dpimpgp de la dirección provincial de industria. Dicha aprobación fue otorgada en el marco de lo establecido por la ley provincial 13744 de parques industriales de la provincia de buenos aires. Aptitud hidráulica otorgada por la autoridad del agua a través de la resfc-. Aptitud ambiental otorgada por el organismo provincial de desarrollo sostenible a través de la reso-2021-20-gdeba-ssfyeaopds plano de subdivisión como conjunto inmobiliario plano 74-01-2021, subdivisión aprobada por arba como conjunto inmobiliario. Superficie total, 272.612,31 m2 espacios comunes, 85.806,06 m2 espacios de uso privativos (unidades funcionales), 186.806,25 m2 cantidad de unidades funcionales, 60. Superficie promedio de las unidades privativas, 3.113 m2. Obras de infraestructura pavimentos internos tipo: hormigón h30, de alto transito ancho de calzada: 8,34 m (incluye cordón) tipo de hormigón: h30 espesor de calzada: 0,20 m radios de giro: 13 m pavimentos externos calle de acceso desde la ruta provincial 25 (200m) tipo: hormigón h30, de alto transito espesor de calzada: 0,20 m cerco perimetral tipo: antivandálico altura del cerco: 3 metros construido con placas de hormigón pretensado de 9,5 cm de espesor pórtico de acceso portón de acceso. Único acceso. Oficina de control de acceso (peatonal y vehicular). Oficinas para la administración. Sanitarios. Cortina forestal se compone de dos hileras de árboles plantadas en tresbolillo en todo el perímetro del parque industrial. Redes de servicio y distribución interna línea aérea de media tensión la línea aérea de media tensión aprobada por edenor. Se encuentra cedida e integrada a la red de distribución de la prestataria edenor. Línea de alumbrado común luminarias tipo led de 14.000 a 17.000 lúmenes. Cantidad 61. Columnas de 9 metros de altura brazo desmontable de 1,5 m instalación dividida en 4 circuitos alimentados desde un tablero de alimentación y comando con fotocélula central para minimizar el mantenimiento del sistema. Pozo de explotación de agua subterránea pozo de explotación con capacidad de extracción de 30 m3/hora. Diámetro del pozo: 115 mm, profundidad: 60 metros potencia de la electrobomba: 7,5 hp red de distribución de agua subterránea cañería de policloruro de vinilo (pvc), clase 10, con diámetros nominales que van entre 75 (mínimo) y 110 mm. La red cuenta con 17 válvulas exclusas, 2 válvulas de aire, 15 hidrantes y 3 tapones de cierre. Posee una tapada mínima de 0,80 m. Red colectora de desagues cloacales la red colectora de desagues cloacales tiene una longitud de 3.717 metros. Cañería de policloruro de vinilo (pvc) de 200mm de diámetro. Posee 42 bocas de registro construidas en hormigón armado, con tapa de hormigón y marco y contramarco, de hierro fundido (tipo liviano). Tapada mínima = 1.00 m pendiente mínima = 3 %o planta de tratamiento de efluentes cloacales capacidad: 750 personas caudal per cápita: 0.250 m3/día/pers caudal total día: 187 m3/día caudal horario: 7.8 m3/hora caudal pico: 1.4 m3/hora factor pico: 1.8 carga orgánica: 45 kg/día sistema de tratamiento por barros activados, aireación prolongada. Pretratamiento con cámara de líquidos crudos: cámara sedimentadora digestora oms. Red colectora de desagues industriales la red colectora de desagues industriales tiene una longitud de 3.887 metros está constituida con una cañería de policloruro de vinilo (pvc), con diámetro de 200mm bocas de registro construidas en hormigón armado, con tapa de hormigón, con marco y contramarco de hierro fundido (tipo liviano). Cantidad de bocas de registro, 45. Tapada mínima = 1.00 m pendiente mínima = 3 %o el sistema cuenta con una planta elevadora de efluentes industriales tratados. En el punto de salida del parque industrial el efluente industrial pasa por una cámara de aforo de carácter general. Instalación subterránea para pasaje de fibra óptica longitud es 2.893 metros. 54 miniarquetas. Final de obras otorgado por la dirección provincial de industria a través de if-2755-gdeba-dpimpceitgp. Dicha aprobación se otorgó conforme a lo requerido por la di-2018-4-gdeba-dpimpgp de la dirección provincial de industria. Reglamento interno el proyecto cuenta con la aprobación de la dirección provincial de industria a través de la dispo-2021-22-gdeba-dpdimpceitgp. Inscripción en el registro nacional de parques industriales se encuentra inscripto a través de legajo n rl-8616-apn-cpi#mdp de fecha 06/08/2021. El número de expediente es ex-6426. Valor alquiler ; us$ 6 x m2 +iva honorarios gestion inmobiliaria: 5% +iva sobre el valor total de contrato la venta de este inmueble está sujeta a la tramitación del código de transferencia de inmuebles (coti) de conformidad con la normativa vigente (res afip 2371/08, 2439/08 y ccs) por parte del propietario. Rubica inmobiliaria cmcpsi 4475

Contactar
1/17

1

USD 5

Ruta Provincial 25

Galpón en Alquiler en La Reja, Moreno

Rubica Inmobiliaria
  • 3.200 m² cubie.
  • A Estrenar

Terreno en PIR 25

Parque industrial r25 nave industrial de 10.000 m2 a estrenar modulos en alquiler de 3.200m2 / 2.00 m2 y 4.200m2 12 m de altura libre de columnas 10 docks 5 de ellos con rampa construcción con paredes y techo de chapa, alma llena con paneles de aislación térmica oficinas y vestuarios con posibilidad de ampliación bonificación de expensas por el primer año de contrato. Bascula antes del ingreso al parque en la estación de servicio axion posibilidad de cuenta corriente en combustible y comedor . El inmueble no cuenta con red de incendio ni spinklers, se hace a pedido del cliente con costo extra en el valor de alquiler. Localización ruta provincial 25 y calle don bosco, localidad la reja, partido de moreno. A 10 minutos de acceso oeste zonificacion la zona es industrial 1 según el código de zonificación de moreno. Admite las categorías 1 y 2 según ley 11459 de la provincia de buenos aires. Proyecto de parque industrial aprobado por di-2018-4-gdeba-dpimpgp de la dirección provincial de industria. Dicha aprobación fue otorgada en el marco de lo establecido por la ley provincial 13744 de parques industriales de la provincia de buenos aires. Aptitud hidráulica otorgada por la autoridad del agua a través de la resfc-. Aptitud ambiental otorgada por el organismo provincial de desarrollo sostenible a través de la reso-2021-20-gdeba-ssfyeaopds plano de subdivisión como conjunto inmobiliario plano 74-01-2021, subdivisión aprobada por arba como conjunto inmobiliario. Superficie total, 272.612,31 m2 espacios comunes, 85.806,06 m2 espacios de uso privativos (unidades funcionales), 186.806,25 m2 cantidad de unidades funcionales, 60. Superficie promedio de las unidades privativas, 3.113 m2. Obras de infraestructura pavimentos internos tipo: hormigón h30, de alto transito ancho de calzada: 8,34 m (incluye cordón) tipo de hormigón: h30 espesor de calzada: 0,20 m radios de giro: 13 m pavimentos externos calle de acceso desde la ruta provincial 25 (200m) tipo: hormigón h30, de alto transito espesor de calzada: 0,20 m cerco perimetral tipo: antivandálico altura del cerco: 3 metros construido con placas de hormigón pretensado de 9,5 cm de espesor pórtico de acceso portón de acceso. Único acceso. Oficina de control de acceso (peatonal y vehicular). Oficinas para la administración. Sanitarios. Cortina forestal se compone de dos hileras de árboles plantadas en tresbolillo en todo el perímetro del parque industrial. Redes de servicio y distribución interna línea aérea de media tensión la línea aérea de media tensión aprobada por edenor. Se encuentra cedida e integrada a la red de distribución de la prestataria edenor. Línea de alumbrado común luminarias tipo led de 14.000 a 17.000 lúmenes. Cantidad 61. Columnas de 9 metros de altura brazo desmontable de 1,5 m instalación dividida en 4 circuitos alimentados desde un tablero de alimentación y comando con fotocélula central para minimizar el mantenimiento del sistema. Pozo de explotación de agua subterránea pozo de explotación con capacidad de extracción de 30 m3/hora. Diámetro del pozo: 115 mm, profundidad: 60 metros potencia de la electrobomba: 7,5 hp red de distribución de agua subterránea cañería de policloruro de vinilo (pvc), clase 10, con diámetros nominales que van entre 75 (mínimo) y 110 mm. La red cuenta con 17 válvulas exclusas, 2 válvulas de aire, 15 hidrantes y 3 tapones de cierre. Posee una tapada mínima de 0,80 m. Red colectora de desagues cloacales la red colectora de desagues cloacales tiene una longitud de 3.717 metros. Cañería de policloruro de vinilo (pvc) de 200mm de diámetro. Posee 42 bocas de registro construidas en hormigón armado, con tapa de hormigón y marco y contramarco, de hierro fundido (tipo liviano). Tapada mínima = 1.00 m pendiente mínima = 3 %o planta de tratamiento de efluentes cloacales capacidad: 750 personas caudal per cápita: 0.250 m3/día/pers caudal total día: 187 m3/día caudal horario: 7.8 m3/hora caudal pico: 1.4 m3/hora factor pico: 1.8 carga orgánica: 45 kg/día sistema de tratamiento por barros activados, aireación prolongada. Pretratamiento con cámara de líquidos crudos: cámara sedimentadora digestora oms. Red colectora de desagues industriales la red colectora de desagues industriales tiene una longitud de 3.887 metros está constituida con una cañería de policloruro de vinilo (pvc), con diámetro de 200mm bocas de registro construidas en hormigón armado, con tapa de hormigón, con marco y contramarco de hierro fundido (tipo liviano). Cantidad de bocas de registro, 45. Tapada mínima = 1.00 m pendiente mínima = 3 %o el sistema cuenta con una planta elevadora de efluentes industriales tratados. En el punto de salida del parque industrial el efluente industrial pasa por una cámara de aforo de carácter general. Instalación subterránea para pasaje de fibra óptica longitud es 2.893 metros. 54 miniarquetas. Final de obras otorgado por la dirección provincial de industria a través de if-2755-gdeba-dpimpceitgp. Dicha aprobación se otorgó conforme a lo requerido por la di-2018-4-gdeba-dpimpgp de la dirección provincial de industria. Reglamento interno el proyecto cuenta con la aprobación de la dirección provincial de industria a través de la dispo-2021-22-gdeba-dpdimpceitgp. Inscripción en el registro nacional de parques industriales se encuentra inscripto a través de legajo n rl-8616-apn-cpi#mdp de fecha 06/08/2021. El número de expediente es ex-6426. Honorarios gestion inmobiliaria: 5% +iva sobre el valor total de contrato la venta de este inmueble está sujeta a la tramitación del código de transferencia de inmuebles (coti) de conformidad con la normativa vigente (res afip 2371/08, 2439/08 y ccs) por parte del propietario. Rubica inmobiliaria cmcpsi 4475

Contactar
1/13

2

USD 11.250

Belisario Roldán 2600

Galpón en Alquiler en La Reja, Moreno

Girgola
  • 1.500 m² cubie.
  • 15 años
  • 1 baño

Depósito en alquiler de 1500m2 Acceso Oeste

Depósito premium en alquiler acceso oeste moreno alquiler pago en pesos al dólar oficial. Ubicación premium y espacio perfecto 1500 m² tu empresa característica del depósito depósito: 1500 m² de espacio libre ubicado estratégicamente sobre acceso oeste este depósito se destaca por su visibilidad desde la autopista y un entorno pensado para operaciones logísticas eficientes. Características del depósito: • estructura sólida de mampostería • techo con aislación térmica y la entrada de luz natural • piso interior tipo industrial • servicio de agua y cloacas • electricidad • puerta de salida de emergencia • dock de carga y playa de maniobras iluminadas para operar durante 24hs • estacionamiento de camiones para operatoria • sistema de prevención de incendios el espacio ideal para su empresa: • 12.000 m2 de playa de maniobras de hormigón iluminada para operaciones nocturnas • servicio de balanza sin cargo para locatarios • estacionamiento cubierto • generador que alimenta aéreas comunes seguridad 24 horas: • vigilancia privada y servicio nocturno de policía adicional armado • sistema de cctv con grabación y monitoreo. • Perímetro cercado con alambrado olímpico y barreras infrarrojas. • Sistema de control de acceso • sanitarios y vestuarios con duchas • servicio de limpieza y mantenimiento de aéreas comunes • salón comedor, con microondas, dispenser de agua fría/caliente , parrilla, tv cable y wifi gratis , parrillas con un contrato de 3 años y un precio de alquiler de u$d 11.250 , se realizará la conversión del monto oficial a pesos al momento de la firma, con un incremento trimestral por ipc. Esta propiedad es apta para uso de almacenamiento, y está equipada con servicios como agua corriente, luz y pavimento, garantizando el mejor entorno para su empresa. Nota: las medidas mencionadas son aproximadas. ¡Una oportunidad única en logística: consulte hoy mismo! Martillera responsable agustina scalese cpi8928 mgr313 ¡Llámenos para conocer más en detalle esta propiedad! Tel: email: gírgola

Contactar
1/29

5

USD 6.700

Colectora Sur Acceso Oeste km 38 100

Galpón en Alquiler en La Reja, Moreno

Dambolena
  • 670 m² cubie.
  • A Estrenar
  • Excelente

Depósito en Alquiler en La Reja, Moreno

Depósito en venta - moreno ubicación: colectora acceso oeste km38 - la reja intersección belisario roldan superficie cubierta: 670m2 zonificación - industrial 1 destinada a la localización de actividades industriales y como usos complementarios comercios mayoristas y depósitos de grandes superficies, servicios, equipamientos relacionados con la actividad principal.- Intensidad de uso y morfología: fos: 0.6 fot: 1.0 densidad neta: 80hab./Ha parcela mínima: 20mts.de frente y 600.00m2 de superficie altura máxima: 12.00mts.retiros: frente: 5.00mts.fondo: 0.5 (l-20) con un máximo exigible de 10 mts.lateral: 4.00mts.en los predios con un ancho de parcela menor a 20,00 mts se exigirá un retiro lateral mínimo de 1,15 mts.por cada eje medianero.- Ai valor máximo de altura podrán incrementarse hasta un máximo de 3 metros según se incremente el retiro lateral exigido a razón de un metro más de retiro lateral por cada eje, incrementa un metro más de altura.- Los retiros laterales en predios de frente menor a 20 mts, podrán exceptuarse cuando el interesado demuestre mediante propuesta constructiva que garantice la indemnidad de los predios linderos.- A estrenar final de obra: mediados de abril 2025 puntos de interés: a metros de estación de servicio ypf a 100m de acceso oeste intersección belisario roldan tenemos más propiedades, no dudes en contactarnos . . . Las superficies son aproximadas, la definitiva surgirá del estado parcelario que realice el agrimensor. Corredor responsable: martín dambolena cmcpdjmgr 205 - cucicba 7176 martillero: martín dambolena cmcpdjmgr 205 - cucicba 7176. - Mat.

Contactar
1/43

0

USD 21.000

Avenida Gaona 10100

Galpón en Alquiler en La Reja, Moreno

  • 3.252 m² cubie.
  • 5 años
  • Excelente

ALQUILER GALPON DEPÓSITO 3252M COLECTORA ACC OESTE

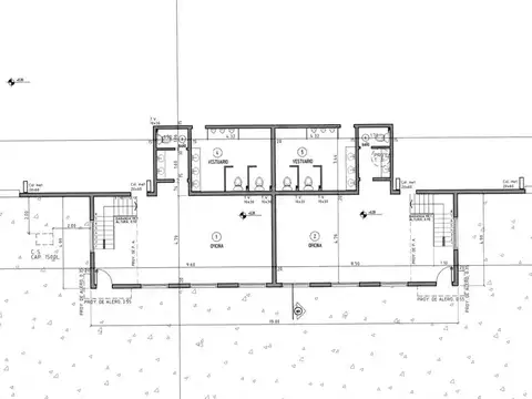
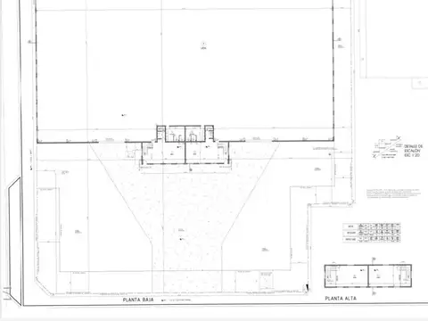
Corredor responsable: maria de los angeles meade cpi 9172 cmcpm 3083 - contacto: jonathan castelli deposito en alquiler 3252 m² la reja buenos aires zona oeste depósito logístico de última generación ubicado estratégicamente sobre avenida gaona en la reja, partido de moreno. Inmueble industrial construido en 2020 con diseño moderno y funcional, que ofrece una superficie total de 3252 m² cubiertos sobre un terreno de 5504 m². Cuenta con baños y vestuarios modernos en planta baja y dos oficinas en planta alta. Con acceso a balcón. Infraestructura de primer nivel con excelente estado de conservación, preparado para operaciones logísticas y almacenamiento industrial. Cuenta con accesos amplios, altura reglamentaria y pavimento perimetral que facilita la circulación de camiones y contenedores. Servicios disponibles: red eléctrica trifásica, iluminación led, sistema contra incendios, portón de acceso automatizado y perímetro completamente cerrado. Ubicación privilegiada con conexión directa a principales rutas de acceso del área metropolitana de buenos aires. Ideal para empresas de logística, distribución, almacenamiento y producción que requieran un espacio funcional y estratégicamente localizado. Posibilidad de adaptación según necesidades específicas del potencial inquilino. Valor alquiler: u$d 21.000 + i.V.A características técnicas: - superficie cubierta: 3252 m² - superficie total de terreno: 5504 m² - año de construcción: 2020 - estado general: excelente - zonificación: industrial consulte condiciones de alquiler y visitas programadas. Rau s.R.L. No ejerce el corretaje inmobiliario. El presente sitio web es una plataforma en donde cada oficina inmobiliaria independiente que contrata los servicios re/max puede publicar las propiedades a su cargo. Cada oficina es de propiedad y gestión independiente, por lo que rau s.R.L. No interviene en los datos de la publicación, en la operación inmobiliaria, ni en la confección y/o firma del boleto de compraventa y/o escritura y/o contrato de alquiler. En cumplimiento de las leyes vigentes que regulan el corretaje inmobiliario, ley nacional 25.028, ley 22.802 de lealtad comercial, ley 24.240 de defensa al consumidor, las normas del código civil y comercial de la nación y constitucionales, los agentes/gestores no ejercen el corretaje inmobiliario. Todas las operaciones inmobiliarias son objeto de intermediación y conclusión por parte del corredor público inmobiliario colegiado a cargo de la publicación, cuyos datos se exhiben en la presente. La presente publicación describe las características esenciales del inmueble, debiéndose consultar al corredor público inmobiliario responsable de la operación por la eventual actualización de las medidas, descripciones arquitectónicas y funcionales, valores de expensas, servicios, impuestos, precios y demás información, cuyos valores son aproximados.

Contactar
1/9

1

USD 21.000

Colectora acceso oeste

Galpón en Alquiler en La Reja, Moreno

MELOGNO PROPIEDADES
  • 3.252 m² cubie.
  • 5 años
  • Agua corri.

Galpón en La Reja

Alquiler galpon depósito 3252m colectora acc oestedeposito en alquiler 3252 m2 la reja buenos aires zona oeste depósito logístico de última generación ubicado estratégicamente sobre avenida gaona en la reja, partido de moreno. Inmueble industrial construido en 2020 con diseño moderno y funcional, que ofrece una superficie total de 3252 m2 cubiertos sobre un terreno de 5504 m2. Cuenta con baños y vestuarios modernos en planta baja y dos oficinas en planta alta. Con acceso a balcón. Infraestructura de primer nivel con excelente estado de conservación, preparado para operaciones logísticas y almacenamiento industrial. Cuenta con accesos amplios, altura reglamentaria y pavimento perimetral que facilita la circulación de camiones y contenedores. Servicios disponibles: red eléctrica trifásica, iluminación led, sistema contra incendios, portón de acceso automatizado y perímetro completamente cerrado. Ubicación privilegiada con conexión directa a principales rutas de acceso del área metropolitana de buenos aires. Ideal para empresas de logística, distribución, almacenamiento y producción que requieran un espacio funcional y estratégicamente localizado. Posibilidad de adaptación según necesidades específicas del potencial inquilino. Valor alquiler: u$d 21.000 + i.V.A características técnicas: - superficie cubierta: 3252 m2 - superficie total de terreno: 5504 m2 - año de construcción: 2020 - estado general: excelente - zonificación: industrial mgl7570164

Contactar