USD 178.200
Tucumán 3300
Departamento en Venta en Chauvin, Mar Del Plata
-
77 m² cubie.
-
2 dorm.
-
A Estrenar
VENTA DEPARTAMENTO 3 AMB BALCON TERRAZA CHAUVIN
Corredor responsable: gilda f. Clauso reg. 3350 -
contacto: paula junker
desde grupo re/max presentamos una nueva oportunidad de inversión en pozo, tanto para quienes buscan su vivienda como para quienes evalúan una alternativa destinada a renta.
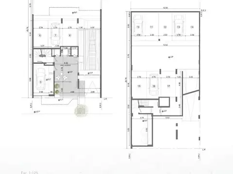
El desarrollo se ubica sobre calle tucumán, entre rodríguez peña y roca, en el corazón de barrio chauvin. Se trata de una zona residencial con alta demanda, a tan solo siete cuadras de la calle güemes, eje comercial y gastronómico de relevancia en la ciudad.
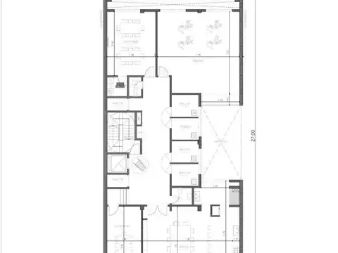
La unidad se sitúa en el segundo piso al contrafrente. Cuenta con dormitorio principal en suite con salida a un balcón terraza, con vista abierta, segundo dormitorio con vista al pulmón del edificio, baño completo, lavadero, y un amplio espacio de living comedor con cocina integrada y barra desayunadora.
Especificaciones técnicas:
-estructura de hormigón visto
-pisos de porcelanato de primera calidad
-sistema de calefacción individual por losa radiante
-aberturas de aluminio color con doble vidriado hermético (dvh) y ruptura de puente térmico.
Los interiores se complementan con amoblamientos de diseño y carpintería de madera hecha a
medida.
Además, incorpora tecnología de punta con portero visor, un sistema de cámaras de
seguridad y un ascensor de última generación.
El edificio cuenta con quincho de uso común ubicado en planta baja; un
penthouse con terraza privada y un espacio de terraza común y bauleras.
Unidades de cocheras disponibles:
cochera descubierta usd 12.000
cochera semi-cubierta usd 15.000
fecha de entrega: abril 2026
el valor es en efectivo, opción de financiamiento con entrega del 50% y 11 cuotas fijas en dólares.
Rau s.R.L. No ejerce el corretaje inmobiliario. El presente sitio web es una plataforma en donde cada oficina inmobiliaria independiente que contrata los servicios re/max puede publicar las propiedades a su cargo. Cada oficina es de propiedad y gestión independiente, por lo que rau s.R.L. No interviene en los datos de la publicación, en la operación inmobiliaria, ni en la confección y/o firma del boleto de compraventa y/o escritura y/o contrato de alquiler. En cumplimiento de las leyes vigentes que regulan el corretaje inmobiliario, ley nacional 25.028, ley 22.802 de lealtad comercial, ley 24.240 de defensa al consumidor, las normas del código civil y comercial de la nación y constitucionales, los agentes/gestores no ejercen el corretaje inmobiliario. Todas las operaciones inmobiliarias son objeto de intermediación y conclusión por parte del corredor público inmobiliario colegiado a cargo de la publicación, cuyos datos se exhiben en la presente. La presente publicación describe las características esenciales del inmueble, debiéndose consultar al corredor público inmobiliario responsable de la operación por la eventual actualización de las medidas, descripciones arquitectónicas y funcionales, valores de expensas, servicios, impuestos, precios y demás información, cuyos valores son aproximados.