-
Departamento
-
38 m² Cubierta
-
1 dormitorio
-
28 años
-
1 baño
-
2 ambientes
-
Bueno
Venta Departamento de 2 Ambientes con Balcón Piso Alto Vista Abierta
El departamento está ubicado en un 9° Piso al frente (no es último piso) sobre la calle Salta al 1100 entre Humberto Primo y San Juan en el barrio de Constitución de la Ciudad Autónoma de Buenos Aires.
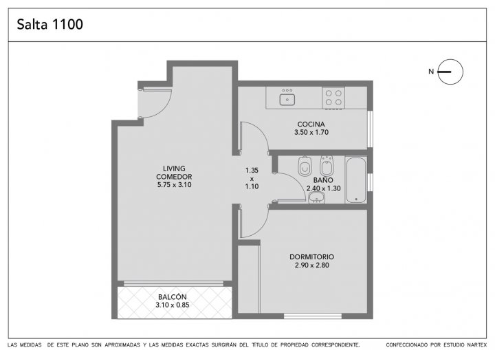
Consta de: living comedor, balcón, cocina, baño y dormitorio.
Living comedor: Amplio y luminoso. Con ventanal hacia el balcón. Persiana plástica. Dimensiones suficientes para sectorizarlo en living y comedor. Una amplia arcada da a un distribuidor que nos conduce a la cocina, el baño y el dormitorio del departamento.
Balcón: Con vista abierta hacia la ciudad. Reja de protección y rejilla de desagüe.
Cocina: Amplia ventana que le otorga a este ambiente luminosidad durante todo el día. Mesada de granito con bacha. Bajo mesa sobrio y en impecable estado. Cocina a gas y termotanque. Espacio para ubicar heladera. Piso de granito con rejilla de desagüe. Pileta de lavado con agua fría y caliente y mueble de guardado para enseres. Revestimiento de azulejos.
Baño: Completo, con bañera y ventana hacia el exterior. Pisos y paredes con revestimiento cerámico. Todo en muy buen estado.
Dormitorio: Con ventana hacia el exterior. Persiana plástica. Placard empotrado amplio. Ambiente luminoso.
El departamento es apto profesional.
Superficie Cubierta: 38 m2 aprox.
Superficie Semicubierta: 3 m2 aprox.
Superficie Total: 41 m2 aprox.
Edificio: El edificio está en muy buenas condiciones. Oficinas de Futbolistas Agremiados. Tiene 16 pisos, con 5 departamentos por nivel, haciendo un total de 55 unidades funcionales. Las expensas son de $140.000 aprox. (Diciembre 2025). Tiene encargado. 2 Ascensores. Muy buena ambientación en el hall de entrada con juego de sillones, pared espejada, plantas ornamentales y pisos de parquet. Puerta de acceso al edificio de vidrios.
Barrio: La propiedad se haya emplazada sobre la calle Salta al 1100 entre Humberto Primo y San Juan en el barrio de Constitución de la Ciudad Autónoma de Buenos Aires. Pertenece a la Comuna N° 1.
Zona de amplia conectividad a través de numerosas líneas de colectivos, subtes y tren. Muy cerca de la Facultad de Ciencias Sociales, la Universidad Argentina de la Empresa (UADE), el Círculo de Suboficiales de la Prefectura Naval, la Universidad Abierta Interamericana (UAI), la Plaza Constitución, colegios, hoteles, bares y negocios de cercanía.
Paradas de Colectivos: Líneas 126, 129, 60, 39, 56, 96, 102, 168 entre otras.
Subte: Línea C (Estación San Juan) y Línea E (Estación San José).
Ferrocarril: F.C. Gral. Roca (Estación Constitución).
Si te interesa la propiedad y necesitás vender para comprar, también podemos ayudarte.
Esta propiedad cuenta con plano digital, tour virtual 360° y video recorrido a pie.
Los metros aquí publicados son aproximados. Los reales surgen de la escritura o plano de mensura. Accesible: No (Ley 5115).
...
-
-
Toda la información del aviso, incluyendo medidas, precio, impuestos, servicios, etc. son estimativos, sujetos a modificación y no vinculantes, según lo dispuesto en el art. 973, Cód. Civ. y Com.
- KP474061 - KPT020221 -
- Publicado usando KiteProp CRM Inmobiliario
Ubicación
San Cristobal, Capital Federal
Características
-
Cant. Ambientes: 2
-
Cant. Dormitorios: 1
-
Cant. Baños: 1
-
Estado: Bueno
-
Antiguedad: 28
-
Expensas: $ 140.000
Datos básicos
-
Tipo de operación: Venta
-
Precio: USD 70.000
Superficie
-
Sup. Cubierta: 38 m2
-
Sup. Total: 41 m2
Código de aviso: 36KP474061
Propiedades Similares
-
USD 79.500
24 De Noviembre 1600
- 43,41 m² Cubierta
- 1 dormitorio
- 15 años
-
USD 65.000
+ $ 168000 expensas
San Juan 1874
- 33 m² Cubierta
- 1 dormitorio
- 5 años
-
USD 51.000
+ $ 20000 expensas
Bat De Rincon 1200
- 50 m² Cubierta
- 2 dormitorios
-
USD 60.000
+ $ 2300 expensas
Av. Independencia 1800
- 31 m² Cubierta
- 1 dormitorio
- 45 años