-
Departamento
Departamento
-
139 m² Cubierta
139 m² cubie.
-
3 dormitorios
3 dorm.
-
2 baños
2 baños
-
4 ambientes
4 ambientes
-
Frente
Frente
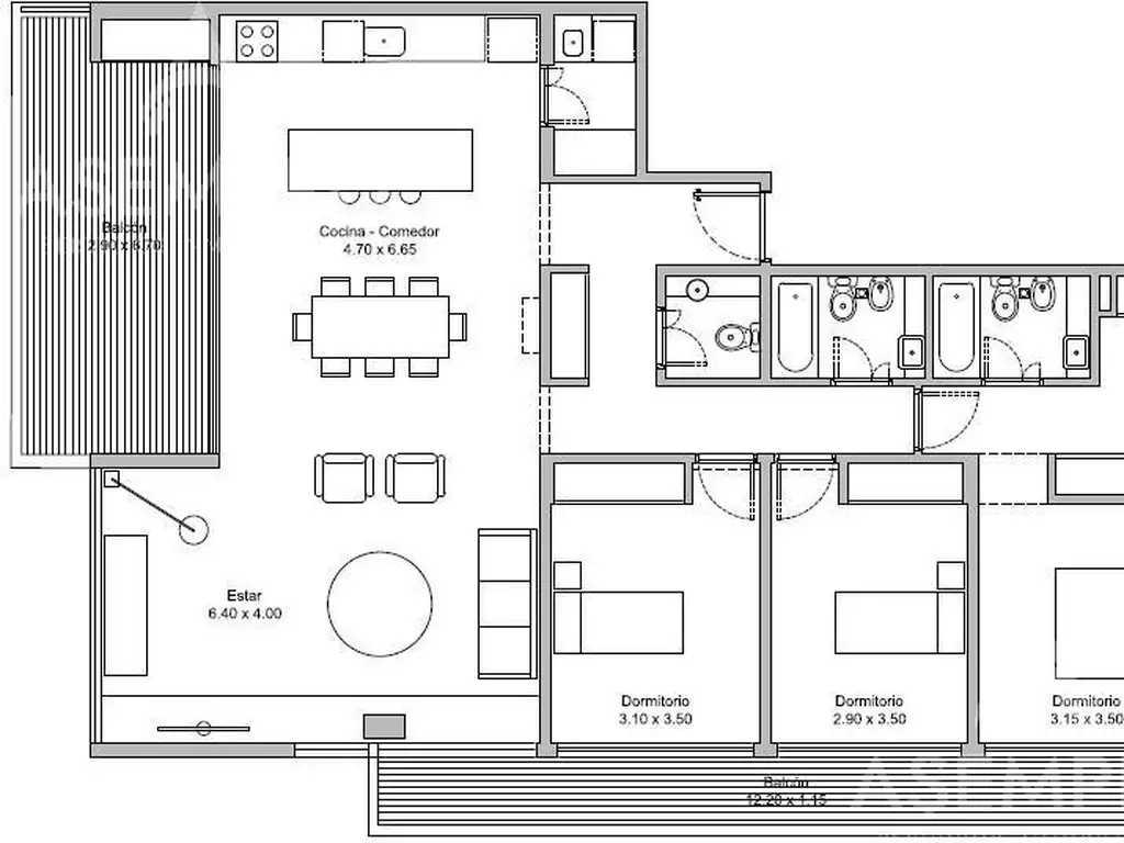
Departamento en Saavedra
La unidad se destaca por su gran estar de 6,40 x 4,00 m y una amplia cocina comedor de 4,70 x 6,65 m, dos espacios integrados que ofrecen amplitud, luminosidad y versatilidad para la vida social y familiar. Desde ambos sectores se accede al balcón de 1,30 x 11,70 m, un verdadero espacio exterior para disfrutar al aire libre.
Cuenta con tres dormitorios:
Principal de 3,15 x 3,50 m, con excelente disposición para placard.
Segundo dormitorio de 3,10 x 3,50 m.
Tercer dormitorio de 2,90 x 3,50 m.
Todos con acceso al balcón corrido, lo que brinda luz natural y ventilación cruzada.
La unidad se completa con dos baños completos y un toilette de recepción, asegurando comodidad tanto para la vida diaria como para recibir visitas.
Corredor Inmobiliario: Mariano Rico Alcázar CPI 1984 / COMADO 1526
Nota importante: Toda la información y medidas provistas son aproximadas y deberán ratificarse con la documentación pertinente. Los gastos (expensas, ABL, AySA) expresados refieren a la última información recabada y deberán confirmarse.
Codigo Propiedad: ABU65924 AP7261349
Ubicación
Saavedra, Capital Federal
Características
-
Cant. Ambientes: 4
-
Cant. Dormitorios: 3
-
Cant. Baños: 2
-
Disposición: Frente
Datos básicos
-
Tipo de operación: Venta
-
Precio: USD 590.000
Superficie
-
Sup. Cubierta: 139 m2
-
Sup. Descubierta: 33 m2
-
Sup. Total: 172 m2
Ambientes del departamento
- Baño
- Dormitorio
Instalaciones del departamento
- Agua corriente
- Electricidad
Servicios del departamento
- Agua corriente
- Electricidad
Caracteristicas del edificio
-
Antiguedad: -1
Servicios del edificio
- Agua corriente
- Electricidad
Código de aviso: PRO-1571322
Propiedades Similares
-
USD 612.000
Paroissien al 2900
- 117 m² Cubierta
- 3 dormitorios
-
USD 420.000
Paroissien al 2900
- 117 m² Cubierta
- 3 dormitorios
- A Estrenar
-
USD 445.000
Paroissien al 2900
- 117 m² Cubierta
- 3 dormitorios
-
USD 561.000
Ruiz Huidobro al 3000
- 110 m² Cubierta
- 3 dormitorios