Arias 2966 , Piso 4

USD 280.000

Venta en Saavedra, Capital Federal

+ $290.000 expensas

USD 280.000

+ $290.000 expensas
  • Departamento

    Departamento

  • 58 m² Cubierta

    58 m² cubie.

  • 2 dormitorios

    2 dorm.

  • 4 años

    4 años

  • 1 baño

    1 baño

  • 3 ambientes

    3 ambientes

  • 1 cocheras

    1 cocheras

  • Bueno

    Bueno

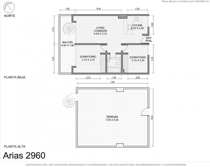
Venta. Departamento 3 amb. Apto Crédito. Gran Terraza. Nuñez

Departamento de tres ambientes al frente con gran terraza. Amplio y luminoso living comedor. Cocina semi integrada . Dos Dormitorios con placard , un baño completos . Cochera doble fija y cubierta. El Edificio cuenta con SUM equipado, piscina, GYM, solarium parquizado. En cuanto a la seguridad, tiene un sistema de portero visor, cámaras de control en el acceso y cerradura electrónica. Edificio ubicado a metros de Av San Isidro Labrador, a cinco cuadras de Av. Cabildo, A una cuadra de plaza Vicuña, a siete cuadras de parque Saavedra, y próximo a los mejores Clubes y espacios de verdes de la ciudad, . Zona con gran variedad de Colegios, Clubes, Oficinas, comercios, Shoppings, Casas con Jardín, transportes y accesos a casi todos los puntos de la capital, en el residencial barrio de Saavedra. AySA: - ABL -. Accesible: Si (Ley 5.115).
...

Toda la información del aviso, incluyendo medidas, precio, impuestos, servicios, etc. son estimativos, sujetos a modificación y no vinculantes, según lo dispuesto en el art. 973, Cód. Civ. y Com.

- KP455098 - KPT120417 -
- Publicado usando KiteProp CRM Inmobiliario

Ubicación

Saavedra, Capital Federal

Características

  • Cant. Ambientes: 3

  • Cant. Dormitorios: 2

  • Cant. Baños: 1

  • Cant. Cocheras: 1

  • Estado: Bueno

  • Antiguedad: 4

  • Expensas: $ 290.000

  • Apto Crédito

  • Tipo de operación: Venta

  • Precio: USD 280.000

  • Sup. Cubierta: 58 m2

  • Sup. Descubierta: 58 m2

  • Sup. Total: 131 m2

  • Pileta

Código de aviso: 31KP455098

Contactá al anunciante

Exequiel Petagna Compromiso Inmobiliario