MOLINA ARROTEA al 700

USD 72.000

Venta en Lomas de Zamora, Buenos Aires

USD 72.000

  • Departamento

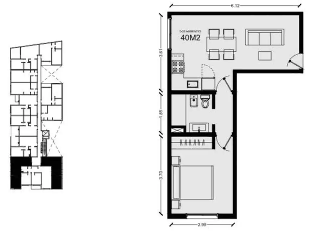
  • 40 m² Cubierta

  • 1 dormitorio

  • A Estrenar

  • 1 baño

  • 2 ambientes

  • Frente

  • Noreste

Departamento en Lomas De Zamora

GAUDI- Dos ambientesVenta en Pozo, departamento dos ambientes de 40 M2 totales al frente-
Edificio, con disposición de planta baja y 2 pisos, locales comerciales y cocheras.
La unidad publicada se encuentra en primer piso frente.
Carpinterías de aluminio con DVH.
Pisos de porcelanato de primera calidad.
Instalaciones eléctricas y sanitarias según normas vigentes.
Cocinas equipadas y terminaciones cuidadosamente seleccionadas.
Consulte por unidades disponibles, de unidades de 1 y 2 ambientes con balcón.
Cocheras disponibles, opcionales.

Ubicación

Lomas de Zamora, G.B.A. Zona Sur

Características

  • Cant. Ambientes: 2

  • Cant. Dormitorios: 1

  • Cant. Baños: 1

  • Disposición: Frente

  • Orientación: NE

  • Tipo de operación: Venta

  • Precio: USD 72.000

  • Sup. Cubierta: 40 m2

  • Sup. Total: 40 m2

  • Baño
  • Cocina
  • Dormitorio
  • Agua corriente
  • Cable
  • Electricidad
  • Instalación parrilla
  • Agua corriente
  • Electricidad
  • Internet
  • Seguridad
  • Video cable
  • Agua corriente
  • Cocina
  • Electricidad
  • Internet
  • Seguridad
  • Video cable
  • Gimnasio

Código de aviso: PRO-1825721

Contactá al anunciante

APESTEGUIA BIENES RAICES