-
Departamento
-
42 m² Cubierta
-
1 dormitorio
-
A Estrenar
-
1 baño
-
2 ambientes
-
1 cocheras
-
Contra frente
-
Este
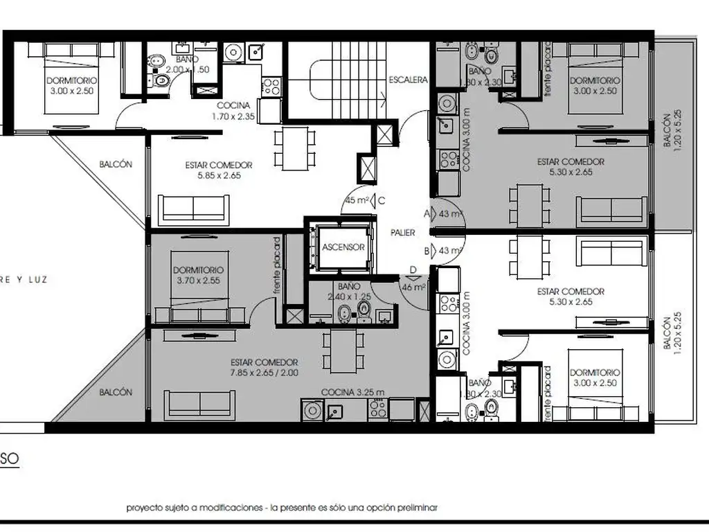
Departamentos de pozo
Empresa constructora con una trayectoria de más de 10 años en la ciudad de Rosario.
Edificio de 8 plantas con departamentos de 1 dormitorio.-
ESPECIFICACIONES TéCNICAS
PLANTA BAJA.
INGRESO DE CATEGORíA CON PAREDES REVESTIDAS EN MADERA Y PISO DE PORCELLANATO O GRANíTICO.
INGRESO A COCHERAS CON PORTóN AUTOMáTICO INDEPENDIENTE.
LUMINARIAS CON SENSOR DE MOVIMIENTO EN ESPACIOS COMUNES.
FRENTE DE PLACARDS EN DORMITORIOS.
BAñOS COMPLETOS CON SANITARIOS LíNEA ROCA Y ACCESORIOS INSTALADOS, GRIFERIAS FV O SIMILAR, DUCHA Y VANITORY.
PISOS Y PAREDES REVESTIDAS EN BAñOS Y BALCóN.
PISO DE MADERA FLOTANTE EN ESTAR COMEDOR, DORMITORIOS Y PASOS.
PAREDES ENDUíDAS EN YESO.
ABERTURAS EXTERIORES EN ALUMINIO LíNEA ALUAR O SIMILAR CON DOBLE VIDRIO CON CERTIFICACIóN HIGROTéRMICA.
PAREDES EXTERIORES CON CERTIFICACIóN HIGROTéRMICA DE AISLACIóN.
MESADAS DE COCINA DE MáRMOL Y BACHA DE ACERO JOHNSON CON GRIFERíA MONOCOMANDO FV O SIMILAR.
ALACENAS Y BAJO MESADAS DE MADERA MDF INSTALADOS.
COCINA A GAS Y TERMOTANQUE ELéCTRICO INSTALADOS.
INSTALACIóN PARA AIRE ACONDICIONADOS SPLIT EN CADA AMBIENTE.
TERRAZA
QUINCHO Y TERRAZA DE USO COMúN CON PARRILLA.
BAñO DE USO COMúN.
TERRAZA DE USO EXCLUSIVO.
FECHA ESTIMADA DE ENTREGA DICIEMBRE 2028
PROYECTO PRELIMINAR, SUJETO A MODIFICACIONES.
Ubicación
Centro, Rosario, Departamento de Rosario, Santa Fe
Características
-
Cant. Ambientes: 2
-
Cant. Dormitorios: 1
-
Cant. Baños: 1
-
Cant. Cocheras: 1
-
Disposición: Contrafrente
-
Orientación: E
Datos básicos
-
Tipo de operación: Venta
-
Precio: USD 73.600
Superficie
-
Sup. Cubierta: 42 m2
-
Sup. Descubierta: 20 m2
-
Sup. Total: 62 m2
Ambientes del departamento
- Baño
- Cochera
- Dormitorio
Instalaciones del departamento
- Agua corriente
- Cable
- Electricidad
- Instalación parrilla
- Teléfono
Servicios del departamento
- Agua corriente
- Electricidad
- Internet
- Teléfono
- Video cable
Caracteristicas del edificio
-
Cant. Cocheras: 1
Servicios del edificio
- Agua corriente
- Electricidad
- Internet
- Teléfono
- Video cable
Código de aviso: PRO-1575030
Propiedades Similares
-
USD 95.200
Av. Pellegrini al 1400
- 56 m² Cubierta
- 1 dormitorio
- A estrenar
-
USD 65.000
+ $ 40000 expensas
Francisco De Laprida 1600
- 55 m² Cubierta
- 2 dormitorios
- 50 años
-
USD 89.000
+ $ 85000 expensas
Corrientes 1462 '10 C
- 67 m² Cubierta
- 2 dormitorios
- 38 años
-
USD 65.000
Paraguay al 1500 - monoambiente
- 33 m² Cubierta
- A Estrenar
- 1 baño