Rojas al 300

USD 85.000

Venta en Caballito, Capital Federal

USD 85.000

  • Departamento

  • 30 m² Cubierta

  • A Estrenar

  • 1 baño

  • Monoambiente

  • Contra frente

Departamento en Caballito

No es apto credito
Sup. cubierta 30,18
semi cubierta 11:00
total : 41:18

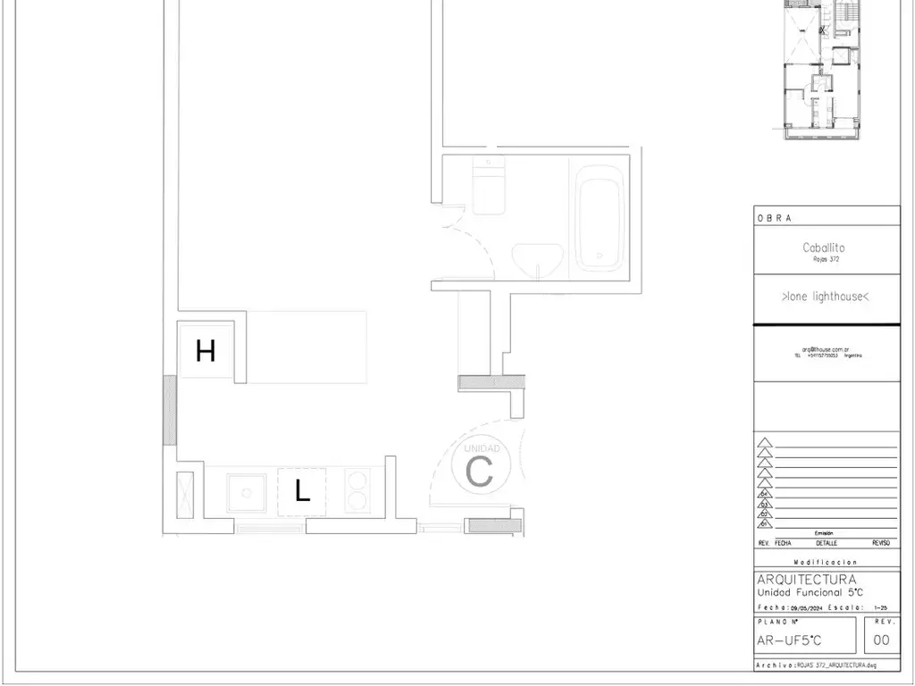
En el 5 piso al contrafrente, se encuentra este monoambiente amplio y moderno, ubicado en un edificio de estética escandinava que se destaca por su diseño y calidad constructiva.

El ambiente principal ofrece una superficie generosa y luminosa, con una cocina equipada de gran diseño y excelente integración al espacio. El baño completo cuenta con terminaciones de calidad y una disposición cómoda.

El balcón, de muy buenas dimensiones, suma un espacio ideal para disfrutar del exterior y está equipado con parrilla eléctrica, un diferencial poco habitual en esta categoría.

Detalles que elevan la experiencia:

Puerta blindada

Losa radiante

Aire acondicionado instalado

Terminaciones modernas y de calidad

Se entrega listo para entrar, con equipamiento completo y un nivel de detalle difícil de encontrar en un monoambiente.

-
Las medidas, superficies y valores definitivos surgirán del título de propiedad.
Los datos consignados son aproximados y fueron proporcionados por el propietario.
La presente publicación es informativa y se encuentra sujeta a verificación y disponibilidad.

Mat. CUCICBA 6187 Facundo Nicolás Blanco

Ubicación

Caballito, Capital Federal

Características

  • Cant. Ambientes: 1

  • Cant. Baños: 1

  • Disposición: Contrafrente

  • Tipo de operación: Venta

  • Precio: USD 85.000

  • Sup. Cubierta: 30 m2

  • Sup. Total: 30 m2

  • Balcón
  • Baño
  • Agua corriente
  • Electricidad
  • Instalación parrilla
  • Agua corriente
  • Electricidad
  • Agua corriente
  • Electricidad

Código de aviso: PRO-1781347

Contactá al anunciante

AJB BIENES RAICES