Moreno 1865 , Piso 2

USD 128.000

Venta en Balvanera, Capital Federal

+ $130.000 expensas

USD 128.000

+ $130.000 expensas
  • Departamento

    Departamento

  • 77 m² Cubierta

    77 m² cubie.

  • 3 dormitorios

    3 dorm.

  • 50 años

    50 años

  • 2 baños

    2 baños

  • 3 ambientes

    3 ambientes

  • Bueno

    Bueno

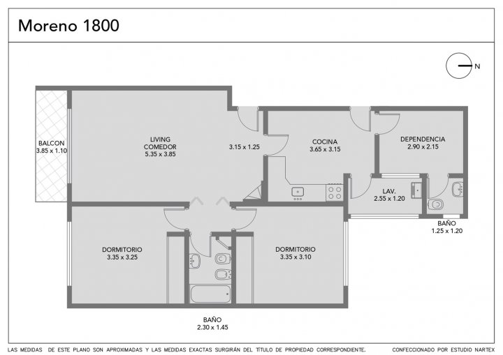
DEPARTAMENTO 3 AMBIENTES + DEPENDENCIA. BALCON AL FRENTE. BALVANERA ZONA CONGRESO

Departamento de tres ambientes más dependencia, ubicado en un segundo piso al frente. Living comedor, cocina separada (tiene espacio para uso de comedor diario), Lavadero independiente. Dos dormitorios con placard y un baño completo con bañera, un escritorio o dormitorio pequeño y un baño de servicio. El edificio cuenta con encargado. La propiedad está ubicada a metros de Av. Entre Ríos con variedad de transportes.

Es un amplio segundo piso a la calle, con un balcón con vista a la copa de los arboles.

El edificio cuenta con un generador de energía propia y un pulmón de parque verde de uso común.

Toda la información del aviso, incluyendo medidas, precio, impuestos, servicios, etc. son estimativos, sujetos a modificación y no vinculantes, según lo dispuesto en el art. 973, Cód. Civ. y Com.

- KP427833 - KPT120417 -
- Publicado usando KiteProp CRM Inmobiliario

Ubicación

Balvanera, Capital Federal

Características

  • Cant. Ambientes: 3

  • Cant. Dormitorios: 3

  • Cant. Baños: 2

  • Estado: Bueno

  • Antiguedad: 50

  • Expensas: $ 130.000

  • Apto Crédito

  • Tipo de operación: Venta

  • Precio: USD 128.000

  • Sup. Cubierta: 77 m2

  • Sup. Descubierta: 3,68 m2

  • Sup. Total: 84,28 m2

Código de aviso: 20KP427833

Contactá al anunciante

Rodrigo Jamardo