Colón 100

Consultar precio

Venta en Rafaela, Departamento de Castellanos

Consultar precio

  • Cochera

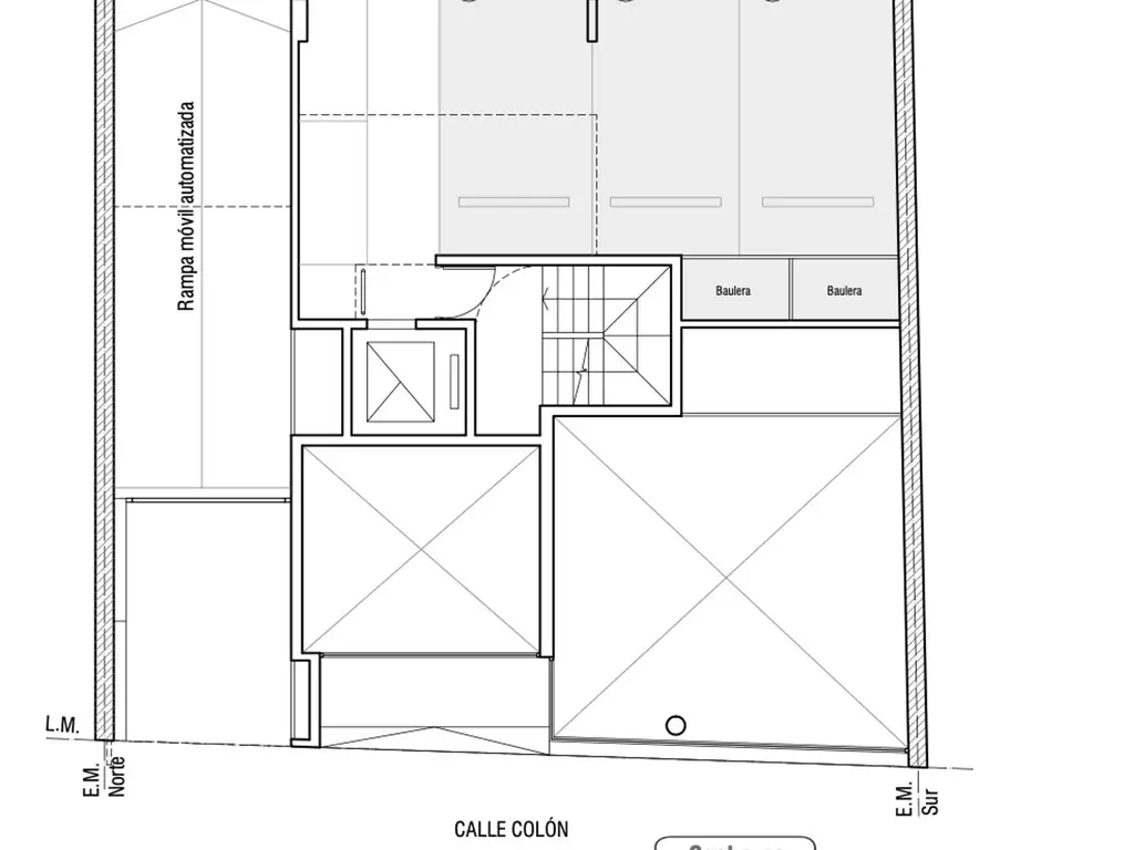
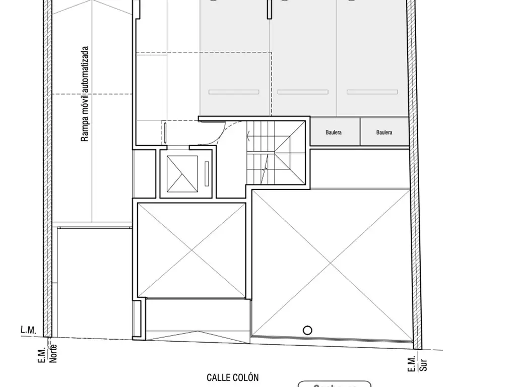
COCHERA MICROCENTRO E0-04- RAFAELA

Corredor Responsable: Joaquín Eguiazu CCI 859 -
Contacto: Daniel Yost
Remax vende cochera para los pisos exclusivos de edificio los Robles.
Unidad de cochera E0-04 COCHERA
RAU S.R.L. no ejerce el corretaje inmobiliario. El presente sitio web es una plataforma en donde cada oficina inmobiliaria independiente que contrata los servicios RE/MAX puede publicar las propiedades a su cargo. Cada oficina es de propiedad y gestión independiente, por lo que RAU S.R.L. no interviene en los datos de la publicación, en la operación inmobiliaria, ni en la confección y/o firma del boleto de compraventa y/o escritura y/o contrato de alquiler. En cumplimiento de las leyes vigentes que regulan el corretaje inmobiliario, Ley Nacional 25.028, Ley 22.802 de Lealtad Comercial, Ley 24.240 de Defensa al Consumidor, las normas del Código Civil y Comercial de la Nación y Constitucionales, los agentes/gestores NO ejercen el corretaje inmobiliario. Todas las operaciones inmobiliarias son objeto de intermediación y conclusión por parte del corredor público inmobiliario colegiado a cargo de la publicación, cuyos datos se exhiben en la presente. La presente publicación describe las características esenciales del inmueble, debiéndose consultar al corredor público inmobiliario responsable de la operación por la eventual actualización de las medidas, descripciones arquitectónicas y funcionales, valores de expensas, servicios, impuestos, precios y demás información, cuyos valores son aproximados.

Ubicación

Rafaela, Departamento de Castellanos, Santa Fe

  • Tipo de operación: Venta

  • Sup. Cubierta: 10 m2

  • Sup. Total: 10 m2

Código de aviso: AR.42.52.44.370

Contactá al anunciante

RE/MAX Confianza