san lucas , Piso 1

USD 50.000

Venta en San Lucas, Canning

USD 50.000

  • Casa

  • 167 m² Cubierta

  • 3 dormitorios

  • A Estrenar

  • 2 baños

  • 4 ambientes

  • 3 cocheras

  • Bueno

Casa en Obra Barrio San Lucas entrega en Diciembre 2025

VALOR FINAL $210.000 APROX (50.000usd + CUOTAS)

¡Tu próximo hogar te espera en el barrio de San Lucas! Esta impresionante casa en construcción es una oportunidad única para aquellos que buscan calidad y comodidad en un entorno en desarrollo.

Con entrega programada para diciembre de 2025, este maravilloso proyecto cuenta con una sólida calidad constructiva, diseñado para satisfacer cada una de tus expectativas. Con una inversión inicial de solo USD 50.000, más cuotas, esta propiedad se convierte en una opción accesible para quienes sueñan con un espacio propio.

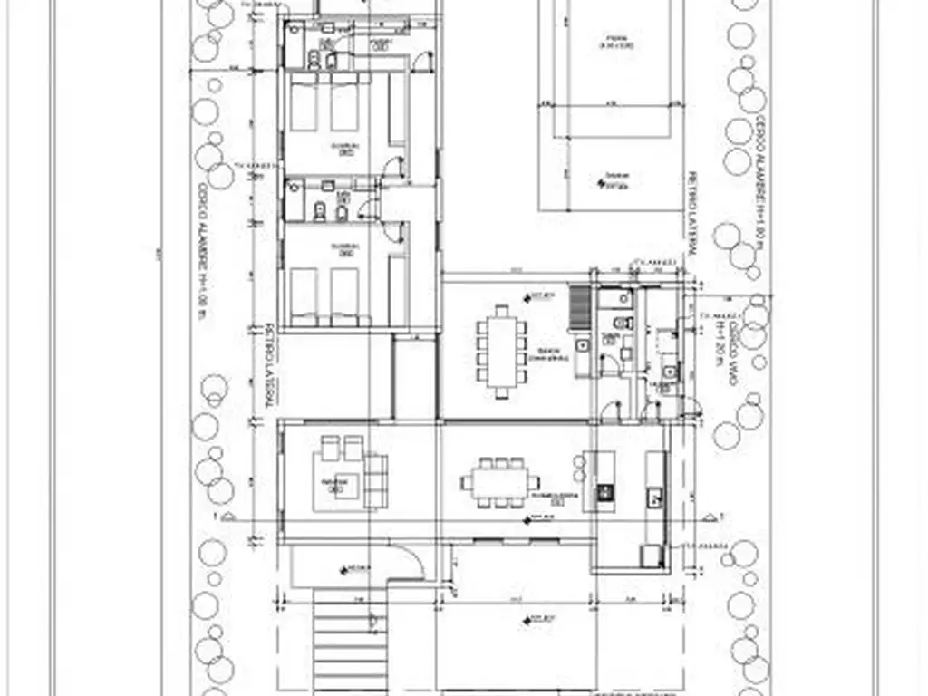
La casa ofrece 3 amplios dormitorios y 2 baños equipados, además de un conveniente baño de servicio. Su diseño funcional y moderno abarca 4 ambientes, perfectos para toda la familia.

Con una impresionante superficie total de 800 m², la propiedad se distribuye en un terreno de 20 x 40 metros, proporcionando espacios descubiertos de esparcimiento, ideales para disfrutar de actividades al aire libre. Además, cuenta con suficiente espacio para estacionar hasta 3 vehículos.

¡No dejes pasar esta oportunidad! Ven y visita la obra para comenzar a planear tu futuro en esta excepcional vivienda en San Lucas. ¡La casa de tus sueños está a la vuelta de la esquina!

- KP347126 - KPT022321 -
- Publicado usando KiteProp CRM Inmobiliario

Ubicación

San Lucas, Canning, San Vicente, G.B.A. Zona Sur

Características

  • Cant. Baños: 2

  • Cant. Ambientes: 4

  • Cant. Dormitorios: 3

  • Long. Frente: 20 m

  • Long. Fondo: 40 m

  • Estado: Bueno

  • Cant. Plantas: 1

  • Cant. Cocheras: 3

  • Tipo de operación: Venta

  • Precio: USD 50.000

  • Sup. Cubierta: 167 m2

  • Sup. Descubierta: 633 m2

  • Sup. Total: 800 m2

  • Amoblado

Código de aviso: 78KP347126

Contactá al anunciante

Red Inmobiliaria