-
Casa
Casa
-
166 m² Cubierta
166 m² cubie.
-
3 dormitorios
3 dorm.
-
2025 años
2025 años
-
4 ambientes
4 ambientes
-
500 m² Terreno
500 m² terren.
Casa en venta
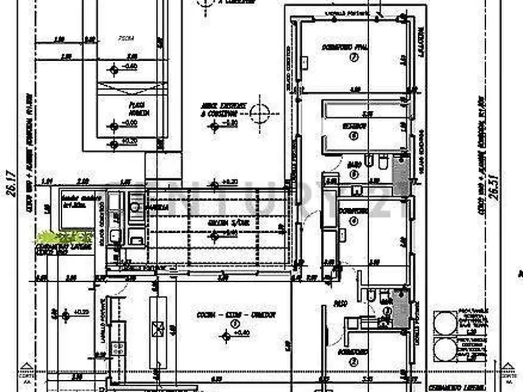
Distribución:
- Hall de acceso
- Living comedor con cocina integrada y barra desayunadora (amplios ventanales con salida a la galería y Jardín)
- Acceso de servicio por la cochera.
- Galería/pérgola de grandes dimensiones con Parrilla, bacha y bajo mesadas
- Lavadero independiente
- Área de Tender
- 2 dormitorios en semi-suite (1 con placard)
- Comparten 1 baño completo
- Dormitorio en suite con vestidor y vista al jardín.
- Vestidor y Baño completo
- Cochera para 2 autos
- Jardín de 334 m2
- Pileta de 8 x 3 m
Metros:
- Terreno de 500.10 m2 (aprox. 19 m de frente y fondo x 26 m laterales o de largo)
- Superficie cubierta de 160.55 m2
- Superficie Semicubierta 5 m2
- Pileta a Construir: 24 m2
- Superficie Libre: 334.55 m2
Las fotos corresponden al lote más los renders de la casa. Mira los planos, tiene un diseño de vanguardia, muy funcional.
Detalles de calidad:
Construcción Tradicional. Excelentes terminaciones.
Aberturas doble vidrio línea módena o similar.
Pisos de porcelanato.
Equipamiento de cocina.
Caldera.
Calefacción.
Griferías y artefactos de baño de primera calidad.
Preinstalaciones de Aire Acondicionado
Proyecto aprobado, todo listo para iniciar la construcción de tu casa.
Si tenes lote armamos tu proyecto a medida. Diseño de proyecto, presentación de planos, materiales, mano de obra, dirección de obra, ingeniería, y arquitectura. Opción obra llave en mano mixta.
Pilar de Este tiene un masterplan compuesto por 10 barrios consolidados, entre los que se encuentra el Barrio San Ramon.
Logra la combinación ideal entre un entorno de calidad y valores bajos, con un esquema innovador que se implementa en países como Chile y Estados Unidos, con lotes de 500 m2 de superficie promedio, con frentes amplios.
Dentro de Pilar del Este hay una sede del colegio Saint Mary of the Hills.
Se pueden practicar deportes como fútbol, tenis, natación, rugby y hockey.
Dentro de su infraestructura encontramos:
-1 Club House
-1 Gimnasio
-1 Piscina
-4 Canchas de Tenis
-2 Canchas de Fútbol 11
-2 Canchas Rugby y Hockey
-3 Canchas de Fútbol
-5 de Básquet
-1 Pista de Semi-Atletismo y Patinaje
-1 Salón de usos múltiples
-1 Restaurant.
Cuenta con todos los servicios: gas, cloacas, agua potable, red eléctrica subterránea. Se accede por la Av. Caamaño bajada km 46 del ramal Pilar; o por el ramal Escobar, y luego ruta 25.
El área de Pilar posee amplia variedad de propuestas comerciales, deportivas, sociales, complejos de oficinas y un parque industrial.
Consultanos!
Estamos disponibles para asesorarte y que encuentres la propiedad que buscas.
Contactanos por WhatsApp, por mail o por teléfono.
Hernan Barrero, Matrícula: CUCICBA 7224 | Esteban Kolef, Matrícula: CMCPDJLP 7414 Teléfonos de contacto
Todas las propiedades que figuran en esta publicación se encuentran a cargo del profesional matriculado Hernan Barrero, Matrícula: CUCICBA 7224 | Esteban Kolef, Matrícula: CMCPDJLP 7414 por lo tanto la intermediación y la conclusión de las operaciones serán llevadas exclusivamente por él. En cumplimiento de la Ley 10.973 de la Provincia de Buenos Aires, Ley Nacional 25.028, Ley Nacional 20.266, Ley 22.802 de Lealtad Comercial, Ley 24.240 de Defensa al Consumidor, las normas del Código Civil y Comercial de la Nación y Constitucionales, los asesores o agentes NO ejercen el corretaje inmobiliario. Todas las operaciones inmobiliarias son objeto de intermediación y conclusión por parte del martillero y corredor colegiado, cuyos datos se exhiben en el nombre de la inmobiliaria.
Ley 5115: EXCEPTO que en la descripción de la propiedad se indique lo contrario, el edificio puede no contar con rampa para personas con movilidad reducida, y no ser Accesible para personas con discapacidades físicas.
Venta sujeta a la obtención del COTI por parte del propietario. Las medidas son aproximadas, las reales surgen del título o plano de mensura.
Las reservas se toman exclusivamente en la inmobiliaria con el matriculado Matrícula: CUCICBA 7224 | CMCPDJLP 7414
Ubicación
Pilar Centro, Pilar, G.B.A. Zona Norte
Características
-
Antiguedad: 2025
-
Cant. Ambientes: 4
-
Cant. Dormitorios: 3
Datos básicos
-
Tipo de Unidad: Casa
-
Tipo de operación: Venta
-
Precio: USD 163.000
Superficie
-
Sup. Cubierta: 166 m2
-
Sup. Terreno: 500 m2
-
Sup. Total: 166 m2
Código de aviso: 5FAD_105572-1
Propiedades Similares
-
USD 130.000
Manuela Pedraza 0
- 100 m² Cubierta
- 3 dormitorios
- 10 años
-
USD 135.000
Gral San Martin 1000
- 84 m² Cubierta
- 2 dormitorios
- 50 años
-
USD 125.000
Nazarre 1200
- 140 m² Cubierta
- 3 dormitorios
- 30 años
-
USD 128.000
Las Truchas 1100
- 100 m² Cubierta
- 3 dormitorios
- A Estrenar