Santa Fe y Pueyrredón

USD 368.467

Venta en Pichincha, Rosario

USD 368.467

  • Casa

    Casa

  • 128 m² Cubierta

    128 m² cubie.

  • 3 dormitorios

    3 dorm.

  • 2 baños

    2 baños

  • 6 ambientes

    6 ambientes

  • 1 cochera

    1 cochera

  • Sur

    Sur

Departamento - Pichincha

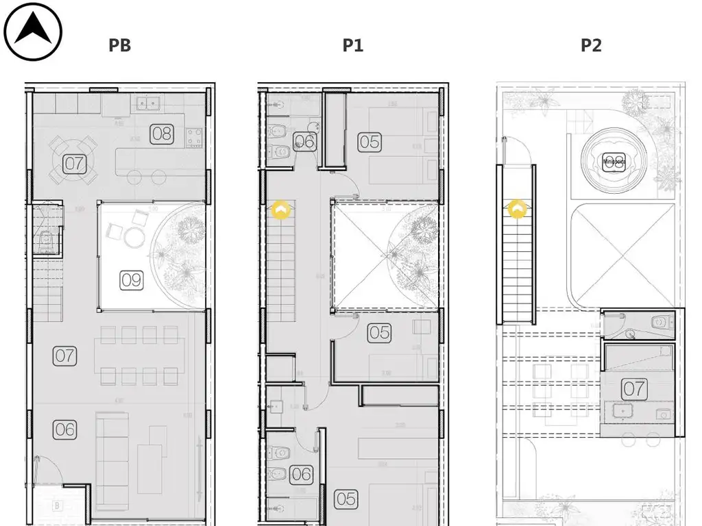
Excelente tríplex con diseño de vanguardia. En planta baja se ingresa a un imponente estar comedor con ventilación cruzada, solado al frente y patio interno al Norte. Excelente asoleamiento y ventilación natural. Cocina independiente con salida al patio. Toilette asistiendo al sector social. En planta alta el sector íntimo cuenta con tres habitaciones. La suite principal con ventanal sobre los amenities, Dos dormitorios ventilando al solado interno y asistidos por baño completo. Finalmente, la terraza de uso exclusivo cuenta con una mini pileta, parrillero cubierto y pérgola. Toilette y lavadero completando la azotea.

Ubicación

Pichincha, Rosario, Departamento de Rosario, Santa Fe

Características

  • Cant. Baños: 2

  • Cant. Ambientes: 6

  • Cant. Dormitorios: 3

  • Cant. Plantas: 3

  • Cant. Cocheras: 1

  • Orientación: S

  • Tipo de operación: Venta

  • Precio: USD 368.467

  • Sup. Cubierta: 128 m2

  • Sup. Descubierta: 61 m2

  • Sup. Total: 189 m2

  • Balcón
  • Baño
  • Cochera
  • Cocina comedor
  • Comedor diario
  • Dormitorio
  • Lavadero
  • Living comedor
  • Patio
  • Terraza
  • Vestidor
  • Agua cloaca
  • Cable
  • Electricidad
  • Gas natural
  • Pileta
  • Electricidad
  • Gas natural
  • Internet
  • Video cable

Código de aviso: PRO-826240

Contactá al anunciante

CRESTALE PROPIEDADES S.A.