Barrio Bologne Sur Mer - Las Heras - Mendoza

USD 55.000

Venta en Las Heras, Mendoza

USD 55.000

  • Casa

  • 74 m² Cubierta

  • 2 dormitorios

  • A Estrenar

  • 1 baño

  • 3 ambientes

  • 1 cochera

Casa - Las Heras

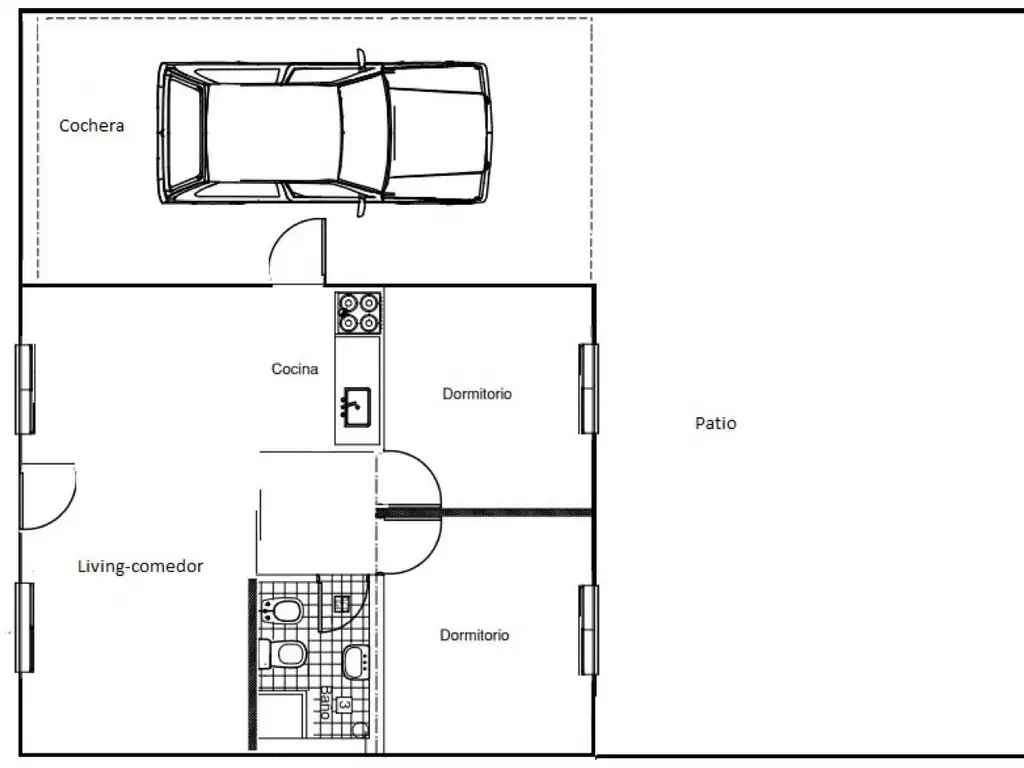
Se vende cómoda y luminosa casa ubicada en el tranquilo y residencial barrio Bologne Sur Mer, en Las Heras, Mendoza. Una excelente opción para quienes buscan confort, practicidad y espacios verdes para disfrutar en familia.

Características principales:

Livingcomedorcocina integrados en un solo ambiente amplio y funcional, ideal para compartir momentos en familia o con amigos.
2 habitaciones bien distribuidas, con excelente iluminación natural.
1 baño completo de diseño práctico y moderno.
Cochera cubierta para un vehículo, con fácil acceso.
Gran jardín con múltiples posibilidades o expansión futura de la la vivienda Ubicado en una zona residencial consolidada de Las Heras, con entorno tranquilo, buena conectividad y cercanía a comercios, escuelas y servicios.
Ideal para: vivienda familiar, primera casa o inversión segura en una zona en constante crecimiento.

No dejes pasar esta oportunidad! Contáctanos!

2025 Coldwell Banker. Todos los derechos reservados. Coldwell Banker y los logotipos de Coldwell Banker son marcas de servicio de propiedad de Coldwell Banker Real Estate LLC. El sistema Coldwell Banker está compuesto por oficinas propias de propiedad de una subsidiaria de Anywhere Advisors LLC y por oficinas adheridas al Sistema Coldwell Banker que son de propiedad y operación independientes. En cumplimiento con la normativa vigente, los asistentes NO ejercen el corretaje inmobiliario. La intermediación y conclusión de las operaciones inmobiliarias es desarrollada por Martilleros y Corredores Públicos. Esta Oficina Inmobiliaria se encuentra a cargo de Merino Maria Silvia Matricula CCPIM 1568 Tomo 11 Folio 385 - 386, adherida al Sistema Coldwell Banker Cuyo Real, CUIT ?-8, Avenida Emilio Civit 754. Ciudad capital, Mendoza.

Ubicación

Las Heras, Mendoza

Características

  • Cant. Baños: 1

  • Cant. Ambientes: 3

  • Cant. Dormitorios: 2

  • Cant. Plantas: 2

  • Cant. Cocheras: 1

  • Tipo de operación: Venta

  • Precio: USD 55.000

  • Sup. Cubierta: 74 m2

  • Sup. Total: 74 m2

  • Baño
  • Cochera
  • Dormitorio

Código de aviso: PRO-1615643

Contactá al anunciante

Cuyo Lands SA