-
Casa
-
64 m² Cubierta
-
2 dormitorios
-
70 años
-
1 baño
-
4 ambientes
-
Sur
-
205 m² Terreno
EN VENTA - CASA 2 DORMITORIOS A RECICLAR - BARRIO BELLA VISTA
OPORTUNIDAD A REFACCIONAR
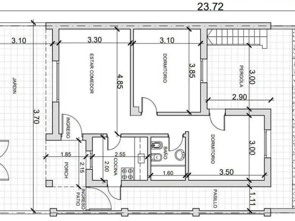
Casa al frente con retiro de jardín ingreso y amplio terreno descubierto.
Porch de ingreso con acceso al estar comedor, cocina separada, pasillo distribuidor que conecta con el primer dormitorio, principal, con ventana con vista a la pérgola de la casa.
El segundo dormitorio comunica con la salida al espacio abierto de la casa y al patio de la misma, posee escalera para acceder a la terraza, amplio terreno descubierto como patio.
La casa necesita un mantenimiento general en interiores, mejoras en membranas de la terraza, adecuaciones en los estilos y distribuciones de ambientes, se observan filtraciones en techos, paredes internas, detalles observables también en baño, cocina, y el terreno descubierto necesita de un mantenimiento en jardín.
Tiene un pasillo de servicio con salida directa a la entrada de retiro de la casa, al frente.
La ubicación del inmueble está en el vértice sur entre las avenidas principales, es decir, a 1 cuadra de Bv. Avellaneda por Riobamba, y a 2 cuadras de Presidente Perón por calle Río de Janeiro.
Antiguedad: estas casas presentan determinadas estructuras, pero con necesidades de actualización de instalaciones (eléctricas, cloacales, de agua, gas), instalaciones de carpintería, revestimientos y adecuaciones en sus instalaciones de griferías y sanitarios.
Distribución: los ambientes a veces no se ajustan a las actuales, como cocinas pequeñas, y que hoy suelen estar integradas, esta casa ofrece posibilidades y oportunidades de rediseñar sus espacios.
Metros cuadrados: es un terreno atractivo, que permite ampliaciones. La propiedad se centra en la búsqueda de clientes que se centran en encontrar espacios con patios, terrazas, retiros al frente y diseños que les permita mejorar en su estructura.
Potencial: Es un inmuble que puede transformarse de una casa antigua a un hogar moderno y funcional, reciclar para alquilar o vender a un precio superior siempre y cuando el mercado acompañe en el proyecto. También apto para usos comerciales o para algún emprendimiento en el barrio.
Este enfoque está dirigido a personas que buscan un proyecto para renovar, ya sea para vivir, alquilar o revender. Utiliza un lenguaje directo y se centra en los beneficios financieros y de diseño.
"Gran Oportunidad de Inversión en Barrio Bella Vista
Pon a prueba tu visión y creatividad en esta casa con un potencial ilimitado, ubicada estratégicamente en Bella Vista. Con una distribución ideal de 2 dormitorios, amplio jardín al frente y un gran patio trasero, esta propiedad es perfecta para quienes buscan un proyecto con un retorno de inversión asegurado.
Imagina rediseñar y modernizar cada espacio para transformarla en la casa de tus sueños o convertirla en un rentable proyecto de reciclaje. La estructura sólida y el generoso metraje del terreno permiten ampliaciones y cambios de distribución para crear ambientes modernos y funcionales.
Su inmejorable ubicación, a solo 1 cuadra de Bv. Avellaneda y 2 de Presidente Perón, la hace apta tanto para uso residencial como comercial.
Si buscas un proyecto para transformar una casa antigua en un hogar moderno, esta es tu oportunidad!
Ubicación
Bella Vista, Rosario, Santa Fe
Características
-
Antiguedad: 70
-
Cant. Baños: 1
-
Cant. Ambientes: 4
-
Cant. Dormitorios: 2
-
Long. Frente: 8 m
-
Long. Fondo: 23 m
-
Orientación: S
Datos básicos
-
Tipo de operación: Venta
-
Precio: USD 30.000
Superficie
-
Sup. Cubierta: 64 m2
-
Sup. Terreno: 205 m2
-
Sup. Descubierta: 141 m2
-
Sup. Total: 205 m2
Ambientes de la casa
- Baño
- Dormitorio
- Living comedor
Instalaciones de la casa
- Agua cloaca
- Agua corriente
- Electricidad
- Gas envasado
Servicios de la casa
- Agua corriente
- Electricidad
- Gas envasado
Código de aviso: PRO-1830240
Propiedades Similares
-
USD 35.000
Amenabar 4100
- 113 m² Cubierta
- 2 dormitorios
- A Estrenar
-
USD 34.000
Boman al 3500
- 150 m² Cubierta
- 3 dormitorios
- 45 años
-
USD 39.000
La Paz al 3200
- 105 m² Cubierta
- 2 dormitorios
- 60 años
-
USD 31.000
Presidente Perón al 4000
- 57 m² Cubierta
- 2 dormitorios
- 58 años