Alicia Santaló - CUCICBA 2675

Alicia Santaló - CUCICBA 2675

  • Solicitar tasación
  • Ubicación: Palermo, Capital Federal

  • Horarios de atención: lunes a viernes de 10 a 17

  • Inmuebles publicados: 52

Contactá al anunciante

(1)

Operación

Propiedad

Precio

Buscar solo avisos en moneda:

Dorm|Amb

Dormitorios

  • 1
  • 2
  • 3
  • 4
  • 5+

Ambientes

  • Mono.
  • 2
  • 3
  • 4
  • 5+

Más filtros Más filtros

Dormitorios

  • 1
  • 2
  • 3
  • 4
  • 5+

Ambientes

  • Mono.
  • 2
  • 3
  • 4
  • 5+

Características

Superficie cubierta

Cocheras

Baños

Nombre de calle y altura

Tipo de urbanización

Tipos de ambientes

Tipo de anunciante

Comparte comisión

52 Propiedades e Inmuebles de Alicia Santaló - CUCICBA 2675

1/23

1

Consultar precio + $1.000.000 expensas

Arroyo 800

Departamento en Venta en Microcentro, Centro

Alicia Santalo - CUCICBA 2675
  • 226 m² cubie.
  • 3 dorm.
  • 50 años

Hermoso Departamento en Calle Arroyo

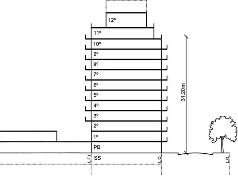
Este departamento está ubicado sobre una calle de apenas 200 m. Que tiene un trazado curvo particular destacándose sobre el rígido damero de la ciudad. Se encuentra en recoleta, muy cerca de la plaza san martin y de los parques, es uno de los mejores lugares para vivir en buenos aires. El edificio tiene 50 años y es de gran calidad y moderno para su época. Los espacios comunes son amplios, la planta baja es una planta libre que remata con un jardín, la seguridad 24 hs. Y el excelente funcionamiento del edificio, lo hacen muy valioso. El hall del piso, es amplio y con puerta doble, todo el departamento es muy luminoso y con excelentes vistas abiertas, en especial el living que es apaisado y el comedor que se encuentra a continuación. La terraza contigua es encantadora y tiene un cerramiento de vidrio sin carpintería, muy moderno. Los placares y muebles de guardado empotrados, son únicos y los baños y la cocina muy cuidados y de buen diseño. La gran calidad de las carpinterías, puertas, pisos y revestimientos hace que sea muy fácil darle un toque contemporáneo al departamento. Somos una inmobiliaria de arquitectas, en muchas de nuestras propiedades tenemos proyectos para adecuarlas a las necesidades del comprador. Alicia santalo matrícula cucicba n.º 2675 ley n.º 5151. El edificio si es accesible para personas con movilidad reducida.

Contactar
1/21

1

Consultar precio + $1.000.000 expensas

Arroyo 800

Departamento en Venta en Recoleta, Capital Federal

Alicia Santalo - CUCICBA 2675
  • 226 m² cubie.
  • 3 dorm.
  • 50 años

Semipiso Super Luminoso

Este departamento está ubicado sobre una calle de apenas 200 m. Que tiene un trazado curvo particular destacándose sobre el rígido damero de la ciudad. Se encuentra en recoleta, muy cerca de la plaza san martin y de los parques, es uno de los mejores lugares para vivir en buenos aires. El edificio tiene 50 años y es de gran calidad y moderno para su época. Los espacios comunes son amplios, la planta baja es una planta libre que remata con un jardín, la seguridad 24 hs. Y el excelente funcionamiento del edificio, lo hacen muy valioso. El hall del piso, es amplio y con puerta doble, todo el departamento es muy luminoso y con excelentes vistas abiertas, en especial el living que es apaisado y el comedor que se encuentra a continuación. La terraza contigua es encantadora y tiene un cerramiento de vidrio sin carpintería, muy moderno. Los placares y muebles de guardado empotrados, son únicos y los baños y la cocina muy cuidados y de buen diseño. La gran calidad de las carpinterías, puertas, pisos y revestimientos hace que sea muy fácil darle un toque contemporáneo al departamento. Somos una inmobiliaria de arquitectas, en muchas de nuestras propiedades tenemos proyectos para adecuarlas a las necesidades del comprador. Alicia santalo matrícula cucicba n.º 2675 ley n.º 5151. El edificio si es accesible para personas con movilidad reducida.

Contactar
1/21

1

Consultar precio + $1.000.000 expensas

Suipacha y Arroyo

Departamento en Venta en Retiro, Capital Federal

Alicia Santalo - CUCICBA 2675
  • 226 m² cubie.
  • 3 dorm.
  • 50 años

Semipiso Super Luminoso

Este departamento está ubicado sobre una calle de apenas 200 m. Que tiene un trazado curvo particular destacándose sobre el rígido damero de la ciudad. Se encuentra en recoleta, muy cerca de la plaza san martin y de los parques, es uno de los mejores lugares para vivir en buenos aires. El edificio tiene 50 años y es de gran calidad y moderno para su época. Los espacios comunes son amplios, la planta baja es una planta libre que remata con un jardín, la seguridad 24 hs. Y el excelente funcionamiento del edificio, lo hacen muy valioso. El hall del piso, es amplio y con puerta doble, todo el departamento es muy luminoso y con excelentes vistas abiertas, en especial el living que es apaisado y el comedor que se encuentra a continuación. La terraza contigua es encantadora y tiene un cerramiento de vidrio sin carpintería, muy moderno. Los placares y muebles de guardado empotrados, son únicos y los baños y la cocina muy cuidados y de buen diseño. La gran calidad de las carpinterías, puertas, pisos y revestimientos hace que sea muy fácil darle un toque contemporáneo al departamento. Somos una inmobiliaria de arquitectas, en muchas de nuestras propiedades tenemos proyectos para adecuarlas a las necesidades del comprador. Alicia santalo matrícula cucicba n.º 2675 ley n.º 5151. El edificio si es accesible para personas con movilidad reducida.

Contactar